Waterview says ..
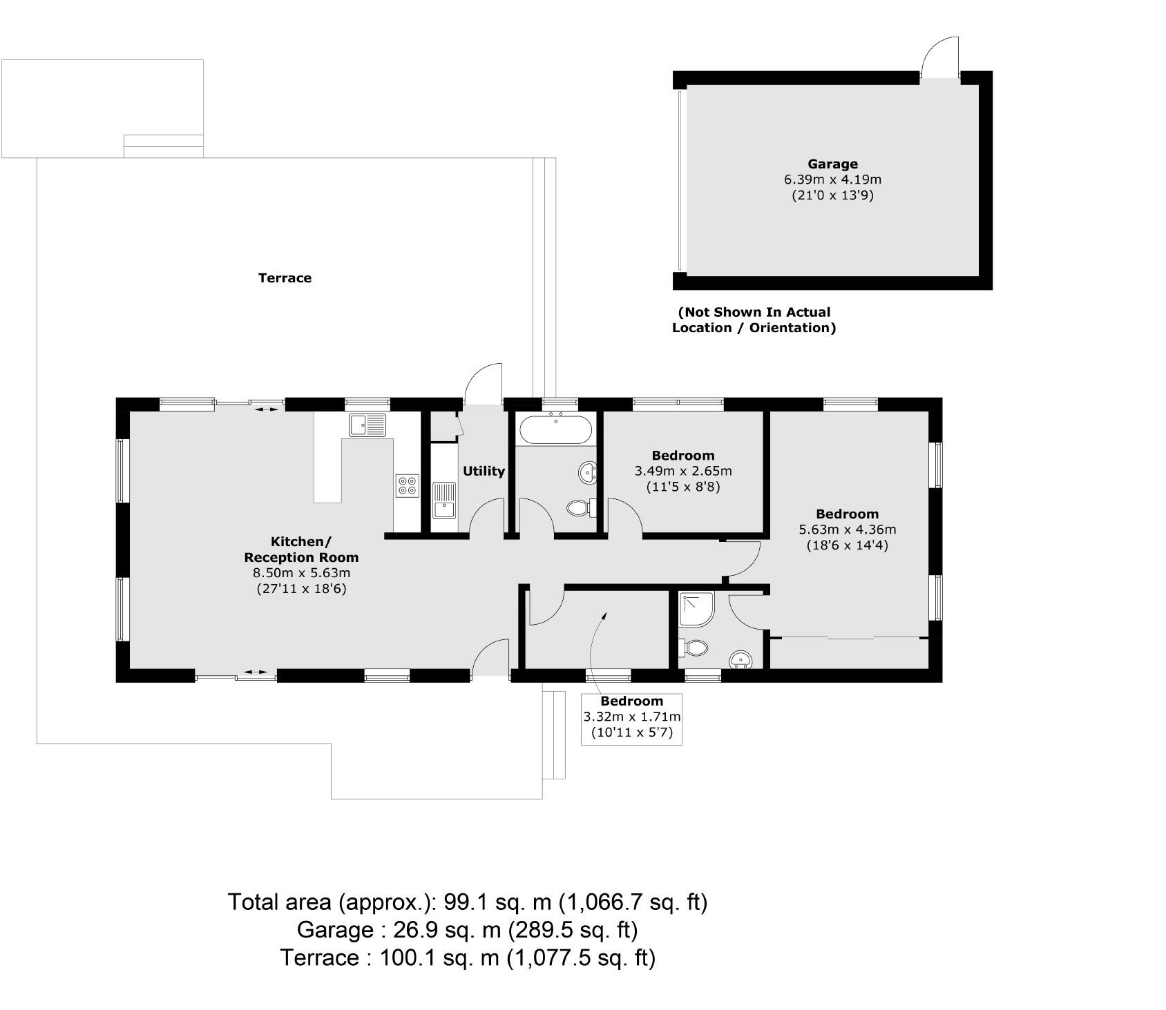
A fantastic three bedroom, timber built Scandi Hus set overlooking this picturesque stretch of The River Wey with 120ft of frontage within easy reach of Weybridge.
Property Oracle says ..
This property is located in Weybridge, Surrey, a desirable area known for its excellent schools, transport links, and proximity to amenities. The house itself is a detached property situated on The Island in Wey Meadows, offering a unique and tranquil setting. The property benefits from a sizable plot with water frontage, adding significant value and appeal. The interior is modern and well-maintained, with a spacious layout and a contemporary design. While the provided images do not show any obvious signs of disrepair, the age and style of the property might suggest some potential maintenance needs in the future. The list price is higher than the average price for the area but is in line with other similar properties in the immediate vicinity, particularly those with comparable plot sizes and water access. The price per square foot is higher than the average, reflecting the premium location and unique features of the property. Overall, this property represents a strong investment opportunity for buyers seeking a modern, well-located home with unique waterside features.
Therefore, we give this property 8 / 10. *Disclaimer: This is our option and does constitute a recommendation or financial advice. Do your own research. *
- Price
- 7
- Condition
- 9
- Location
- 10
- Land
- 8
- Bedrooms
- 3
- Bathrooms
- 2
- Sqft (est)
- 2,817.00
- Lot (est)
- 1,066.70
The heatmap indicates the level of crime in the area. The color of the heatmap indicates the crime severity and recency.
Metrics Year-on-Year
- Average area value
- 783,214.00 £Increased by 49.26 %
- Est sale value
- 1,411,317.00 £Decreased by 9.57 %
- Average area rental value
- 2,532.00 £/moIncreased by 44.19 %
- Est letting value
- 2,817.00 £/moUnchanged by 0.00 %
- Est rental Yield
- 3.88 %Decreased by 3.48 %
- Crime Rate
- 0.00 %
Agent Activity
Waterview created the listing.
Nearby Schools
| Name | Type | Ofsted | Distance |
|---|---|---|---|
| Heathside School | Academy Converter | Good | 0.87 KM |
| Brooklands College | Further Education | Good | 0.88 KM |
| St George'S College Weybridge | Other Independent School | 1.55 KM | |
| St Charles Borromeo Catholic Primary School, Weybridge | Academy Converter | 1.67 KM | |
| Weybridge Sure Start Children'S Centre | Children's Centre | 1.76 KM |
Images
Nearby Streets
| Name | Average Price | Average Sqft | Distance |
|---|---|---|---|
| The Island | £ 699,950 | 0 | 0.00 KM |
| Wren Crescent | £ 0 | 0 | 0.00 KM |
| Seven Arches Bridge | £ 0 | 0 | 0.00 KM |
| Jay Avenue | £ 0 | 0 | 0.00 KM |
| Hamm Court | £ 1,250,000 | 0 | 0.00 KM |
Nearby Transport
| Name | NLC | TLC | Distance |
|---|---|---|---|
| Addlestone | 5550 | ASN | 1.54 KM |
| Weybridge | 5577 | WYB | 1.73 KM |
| Byfleet And New Haw | 5689 | BFN | 1.93 KM |
| Shepperton | 5605 | SHP | 4.58 KM |
| West Byfleet | 5684 | WBY | 4.59 KM |
Nearby Listings
| Address | Price | Type | Score | Distance |
|---|---|---|---|---|
| Wey Meadows, Weybridge | £ 750,000 | BUY | 8 / 10 | 0.00 KM |
| Wey Meadows, Weybridge, KT13 | £ 700,000 | BUY | Unknown | 0.00 KM |
| Wey Meadows, Weybridge, Surrey, KT13 | £ 300,000 | BUY | 6 / 10 | 0.12 KM |
| Weybridge, Surrey, KT13 | £ 180,000 | BUY | Unknown | 0.12 KM |
| Wey Meadows, Weybridge, Surrey, KT13 | £ 650,000 | BUY | 8 / 10 | 0.12 KM |
Nearby Properties
| Address | Price | Distance |
|---|---|---|
| 51 Wey Meadows | £ 500,000 | 0.12 KM |
| 48 Wey Meadows | £ 280,000 | 0.12 KM |
| 56 Wey Meadows | £ 590,000 | 0.12 KM |
| 49 Wey Meadows | £ 455,000 | 0.12 KM |
| 50 Wey Meadows | £ 642,500 | 0.12 KM |