Russell Drive, Malvern, Worcestershire, WR14
By John Goodwin FRICS
£ 365,000
Reviews
3 out of 5 stars
John Goodwin FRICS says ..
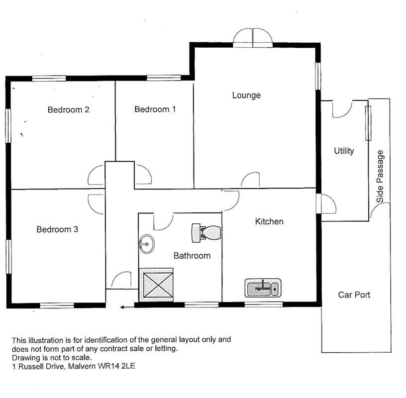
A Well Presented And Spacious Detached Bungalow Enjoying A Convenient Position Close To All Amenities And Offering Generous Accommodation With Gas Central Heating, Double Glazing, Hall, Lounge, Well Equipped Kitchen/Breakfast Room, Utility Room, Three Bedrooms, Shower Room With WC, Landscaped Gar...
Property Oracle says ..
Therefore, we give this property 7 / 10. *Disclaimer: This is our option and does constitute a recommendation or financial advice. Do your own research. *
- Price
- 5
- Condition
- 8
- Location
- 8
- Land
- 7
- Bedrooms
- 3
- Bathrooms
- 1
- Sqft (est)
- 662.00
The heatmap indicates the level of crime in the area. The color of the heatmap indicates the crime severity and recency.
Metrics Year-on-Year
- Average area value
- 267,000.00 £Decreased by 4.19 %
- Est sale value
- 231,700.00 £Increased by 29.15 %
- Average area rental value
- 788.00 £/moDecreased by 18.00 %
- Est letting value
- 662.00 £/mo
- Est rental Yield
- 3.54 %Decreased by 14.49 %
- Crime Rate
- 9.00 %Unchanged by 0.00 %
from 278,673.00 £
from 179,402.00 £
from 961.00 £/mo
from 0.00 £/mo
from 4.14 %
from 9.00 %
Agent Activity
John Goodwin FRICS created the listing.
Nearby Schools
| Name | Type | Ofsted | Distance |
|---|---|---|---|
| Evergreen Children'S Centre | Children's Centre | 0.38 KM | |
| St Matthias Church Of England Primary School | Academy Converter | 0.58 KM | |
| Grove Primary School | Community School | Good | 0.69 KM |
| Somers Park Primary School | Academy Converter | 1.32 KM | |
| Malvern St James | Other Independent School | 1.63 KM |
Images
Nearby Streets
| Name | Average Price | Average Sqft | Distance |
|---|---|---|---|
| Russell Close | £ 240,000 | 0 | 0.00 KM |
| Hill View Close | £ 295,000 | 0 | 0.00 KM |
| Merlin Crescent | £ 0 | 0 | 0.00 KM |
| Link Way | £ 0 | 0 | 0.00 KM |
| Bond Street | £ 0 | 0 | 0.00 KM |
Nearby Transport
| Name | NLC | TLC | Distance |
|---|---|---|---|
| Malvern Link | 4884 | MVL | 0.59 KM |
| Great Malvern | 4892 | GMV | 1.81 KM |
| Colwall | 4876 | CWL | 6.89 KM |
Nearby Listings
| Address | Price | Type | Score | Distance |
|---|---|---|---|---|
| Russell Drive, Malvern, Worcestershire, WR14 | £ 365,000 | BUY | 7 / 10 | 0.00 KM |
| Westlyn Close, Malvern, Worcestershire, WR14 | £ 700,000 | BUY | 7 / 10 | 0.10 KM |
| Russell Drive, Malvern | £ 350,000 | BUY | 6 / 10 | 0.10 KM |
| The Oaks, 1 Westlyn Close, Malvern, Worcestershire | £ 720,000 | BUY | 6 / 10 | 0.11 KM |
| 3 Russell Close, Malvern, Worcestershire, WR14 | £ 280,000 | BUY | 6 / 10 | 0.14 KM |
Nearby Properties
| Address | Price | Distance |
|---|---|---|
| 29 Russell Drive | £ 285,000 | 0.01 KM |
| 1 Russell Drive | £ 240,000 | 0.01 KM |
| 5 Russell Drive | £ 247,000 | 0.01 KM |
| 27 Russell Drive | £ 265,000 | 0.01 KM |
| 26 Russell Drive | £ 68,000 | 0.01 KM |