Oakmere Close, Liverpool, Merseyside, L9
Whitegates logo

Oakmere Close, Liverpool, Merseyside, L9

By Whitegates

£ 259,950

Reviews

3 out of 5 stars

Whitegates says ..

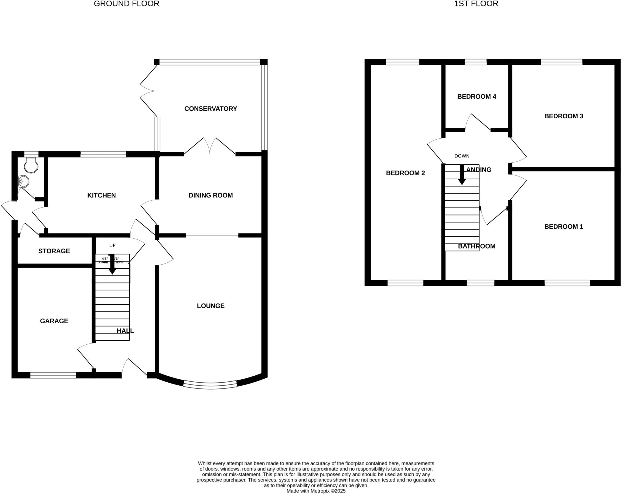
Charming 3-bedroom detached house with a detached garage and off-street parking in a sought-after neighbourhood. This property boasts a beautifully landscaped garden, a spacious patio perfect for outdoor entertaining, and a bright conservatory ideal for relaxing. The interior features a modern ki...

Property Oracle says ..

The property is a 3 bedroom detached house located on Oakmere Close in Liverpool. The property benefits from a modern fitted kitchen and bathroom, and what appears to be a recently fitted conservatory. There is also a garden to the rear of the property. The location is close to several primary schools which are rated ‘good’ by Ofsted. There are also several Merseyrail stations within a reasonable distance, providing convenient access to other parts of Liverpool and beyond. This makes the location quite desirable for families. Based on the photos, the property appears to be in good condition. The kitchen and bathroom have clearly been recently updated, and the rest of the property seems well-maintained. There is no evidence to suggest that the property is in need of significant repair or renovation. The property has a good-sized rear garden, which is a desirable feature for many buyers. Considering the average price per square foot in the area is £186, and this property is listed at £259,950 with 1380 sqft, the price seems reasonable, although slightly on the higher side. However, the recent improvements to the property, along with the desirable location and the garden, could justify the higher price point compared to other properties in the area. Nearby comparable properties support this assessment.

Therefore, we give this property 7 / 10. *Disclaimer: This is our option and does constitute a recommendation or financial advice. Do your own research. *

Price
7
Condition
9
Location
8
Land
7
Bedrooms
3
Bathrooms
1
Sqft (est)
1,380.00

The heatmap indicates the level of crime in the area. The color of the heatmap indicates the crime severity and recency.

Metrics Year-on-Year

Average area value
191,658.00 £
Increased by 6.39 %
from 180,149.00 £
Est sale value
209,760.00 £
Decreased by 22.84 %
from 271,860.00 £
Average area rental value
863.00 £/mo
Increased by 13.55 %
from 760.00 £/mo
Est letting value
0.00 £/mo
from 0.00 £/mo
Est rental Yield
5.40 %
Increased by 6.72 %
from 5.06 %
Crime Rate
6.00 %
Unchanged by 0.00 %
from 6.00 %

Agent Activity

  • Whitegates created the listing.

Nearby Schools

NameTypeOfstedDistance
Longmoor Community Primary SchoolCommunity SchoolGood0.81 KM
Rice Lane Primary School And NurseryCommunity SchoolGood1.04 KM
Blessed Sacrament Catholic Primary SchoolVoluntary Aided SchoolGood1.13 KM
Archbishop Beck Catholic CollegeVoluntary Aided SchoolRequires improvement1.43 KM
The Salesian Academy Of St John BoscoAcademy Sponsor Led1.68 KM

Images

Picture No. 05 Picture No. 25 Picture No. 24 Picture No. 08 Picture No. 14 Picture No. 18 Picture No. 11 Picture No. 04 Picture No. 01 Picture No. 09 Picture No. 15 Picture No. 03 Picture No. 16 Picture No. 07 Picture No. 22 Picture No. 17 Picture No. 12 Picture No. 02 Picture No. 26 Picture No. 19 Picture No. 20 Picture No. 23 Picture No. 13 Picture No. 21

Nearby Streets

NameAverage PriceAverage SqftDistance
Ferndale Close £ 000.00 KM
Roseworth Avenue £ 000.00 KM
Cottonwood Close £ 297,50000.00 KM
Church Avenue £ 000.00 KM
Chelsea Road £ 000.00 KM

Nearby Transport

NameNLCTLCDistance
Orrell Park2247OPK0.73 KM
Aintree2125AIN0.92 KM
Rice Lane2131RIL1.19 KM
Walton (Merseyside)2251WAO1.40 KM
Old Roan2258ORN2.41 KM

Nearby Listings

AddressPriceTypeScoreDistance
Oakmere Close, Liverpool, Merseyside, L9 £ 259,950BUY7 / 100.00 KM
Oakmere Close, Liverpool £ 250,000BUY7 / 100.01 KM
Ferndale Close, Liverpool, Merseyside, L9 £ 280,000BUY6 / 100.12 KM
Roseworth Avenue, Liverpool, L9 £ 299,950BUY7 / 100.12 KM
Ridgewood Way, Liverpool, Merseyside, L9 £ 280,000BUY7 / 100.16 KM

Nearby Properties

AddressPriceDistance
4 Oakmere Close £ 250,0000.02 KM
12 Oakmere Close £ 84,2500.02 KM
8 Oakmere Close £ 111,2000.02 KM
14 Oakmere Close £ 189,9500.02 KM
24 Ridgewood Way £ 185,0000.08 KM