Oppida says ..
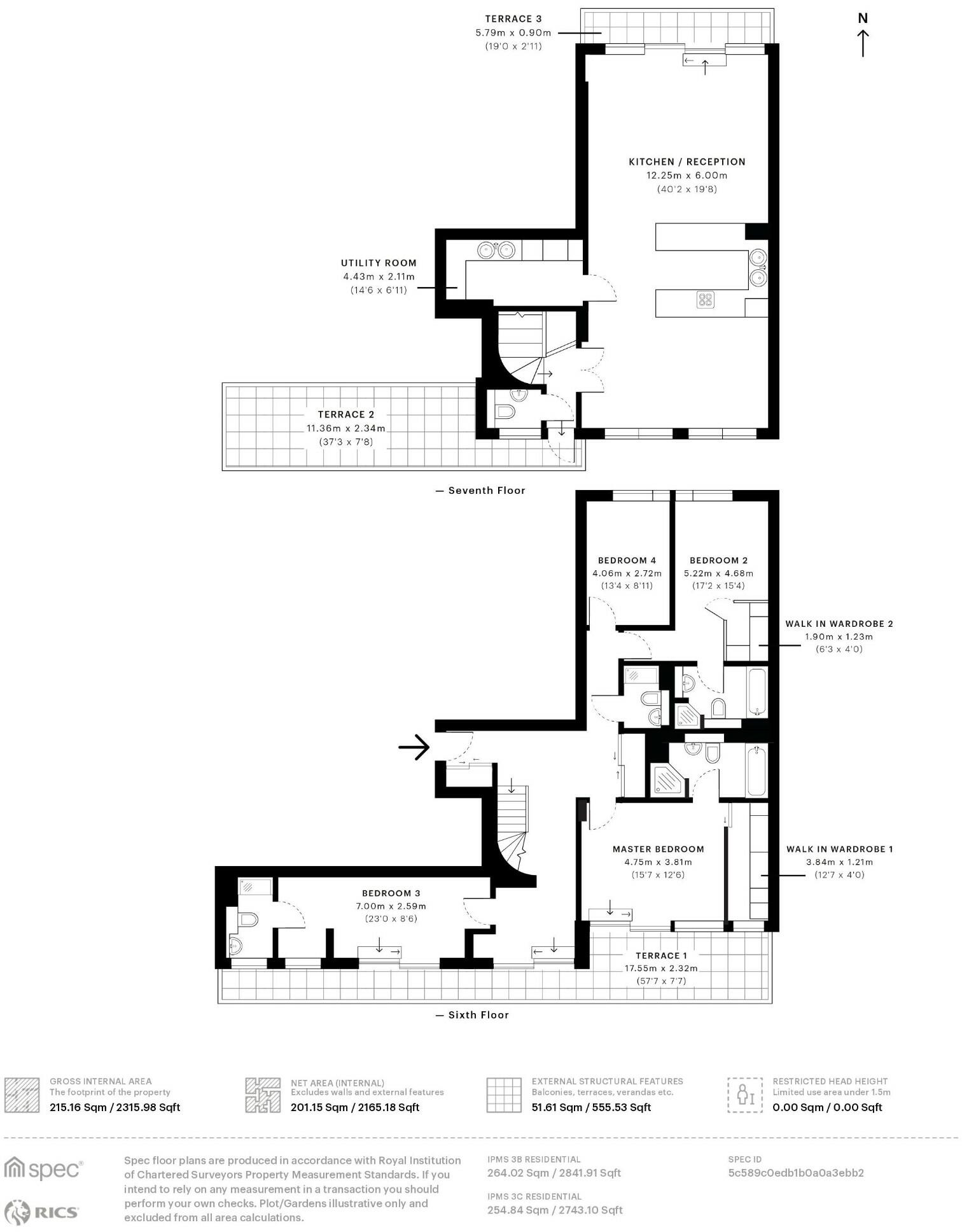
Spanning over 2100 sq ft and nestled on the seventh floor of a modern portered building with a lift, this exceptional four-bedroom duplex apartment combines contemporary elegance with stunning leafy views in a highly sought-after Westminster location.The property boasts a spacious, open-plan recep
Property Oracle says ..
This four-bedroom duplex apartment in Page Street, Westminster, offers a desirable location in central London. The property’s interior is modern and well-maintained, featuring a contemporary open-plan design. The photos showcase a spacious living area, a well-equipped kitchen, and several bedrooms with built-in wardrobes. However, the lack of a private garden is a notable drawback given the list price. Its proximity to excellent transport links, highly-rated schools (like Millbank Academy), and various amenities further enhances its appeal. While the condition is good, not excellent, the list price seems reasonable within the context of Westminster’s high property values. Potential buyers should weigh the benefits of the prime location and modern amenities against the lack of outdoor space. Overall, this property represents a good investment opportunity for those seeking a central London location, though the absence of a garden may affect the appeal to some buyers. Further details on the building amenities (e.g. parking, concierge services) would help paint a complete picture.
Therefore, we give this property 6 / 10. *Disclaimer: This is our option and does constitute a recommendation or financial advice. Do your own research. *
- Price
- 7
- Condition
- 7
- Location
- 9
- Land
- 1
- Bedrooms
- 4
- Bathrooms
- 0
- Sqft (est)
- 2,315.96
The heatmap indicates the level of crime in the area. The color of the heatmap indicates the crime severity and recency.
Metrics Year-on-Year
- Average area value
- 1,200,500.00 £Decreased by 9.33 %
- Est sale value
- 3,462,360.20 £Increased by 4.62 %
- Average area rental value
- 3,372.00 £/moIncreased by 13.61 %
- Est letting value
- 9,263.84 £/moIncreased by 33.33 %
- Est rental Yield
- 3.37 %Increased by 25.28 %
- Crime Rate
- 2.00 %Unchanged by 0.00 %
Agent Activity
Oppida created the listing.
Nearby Schools
| Name | Type | Ofsted | Distance |
|---|---|---|---|
| Marsham Street Children'S Centre | Children's Centre Linked Site | 0.10 KM | |
| Millbank Academy | Academy Converter | Outstanding | 0.34 KM |
| St Matthew'S School, Westminster | Voluntary Aided School | Good | 0.48 KM |
| Fairley House School | Other Independent Special School | 0.49 KM | |
| Westminster School | Other Independent School | 0.50 KM |
Images
Nearby Streets
| Name | Average Price | Average Sqft | Distance |
|---|---|---|---|
| Horseferry Road | £ 0 | 0 | 0.00 KM |
| Thorney Street | £ 0 | 0 | 0.00 KM |
| Dean Bradley Street | £ 2,695,000 | 0 | 0.00 KM |
| Gayfere Street | £ 2,625,000 | 1,152 | 0.00 KM |
| Horseferry Road | £ 0 | 0 | 0.00 KM |
Nearby Transport
| Name | NLC | TLC | Distance |
|---|---|---|---|
| Vauxhall | 5597 | VXH | 1.06 KM |
| Charing Cross | 5143 | CHX | 1.64 KM |
| Victoria | 5426 | VIC | 1.77 KM |
| Waterloo | 5598 | WAT | 2.01 KM |
| Waterloo East | 5158 | WAE | 2.46 KM |
Nearby Listings
| Address | Price | Type | Score | Distance |
|---|---|---|---|---|
| Page Street, London, SW1P | £ 3,200,000 | BUY | 6 / 10 | 0.00 KM |
| Page Street, London, SW1P 4JX | £ 825,000 | BUY | 6 / 10 | 0.01 KM |
| Neville House, Page Street, Westminster, London, SW1P | £ 650,000 | BUY | 6 / 10 | 0.01 KM |
| Page Street, Westminster, SW1P | £ 650,000 | BUY | 6 / 10 | 0.01 KM |
| Neville House, 19 Page Street, Westminster, London, SW1P | £ 1,200,000 | BUY | 7 / 10 | 0.02 KM |
Nearby Properties
| Address | Price | Distance |
|---|---|---|
| 50 Tufton Street | £ 1,675,000 | 0.27 KM |
| 4 Montaigne Close | £ 1,600,000 | 0.28 KM |
| 1 Smith Square | £ 3,051,000 | 0.30 KM |
| 9 Gayfere Street | £ 4,650,000 | 0.31 KM |
| 7 Gayfere Street | £ 2,250,000 | 0.31 KM |