Harland Road, Hengistbury Head, Bournemouth, Dorset, BH6
Slades Estate Agents logo

Harland Road, Hengistbury Head, Bournemouth, Dorset, BH6

By Slades Estate Agents

£ 995,000

Reviews

3 out of 5 stars

Slades Estate Agents says ..

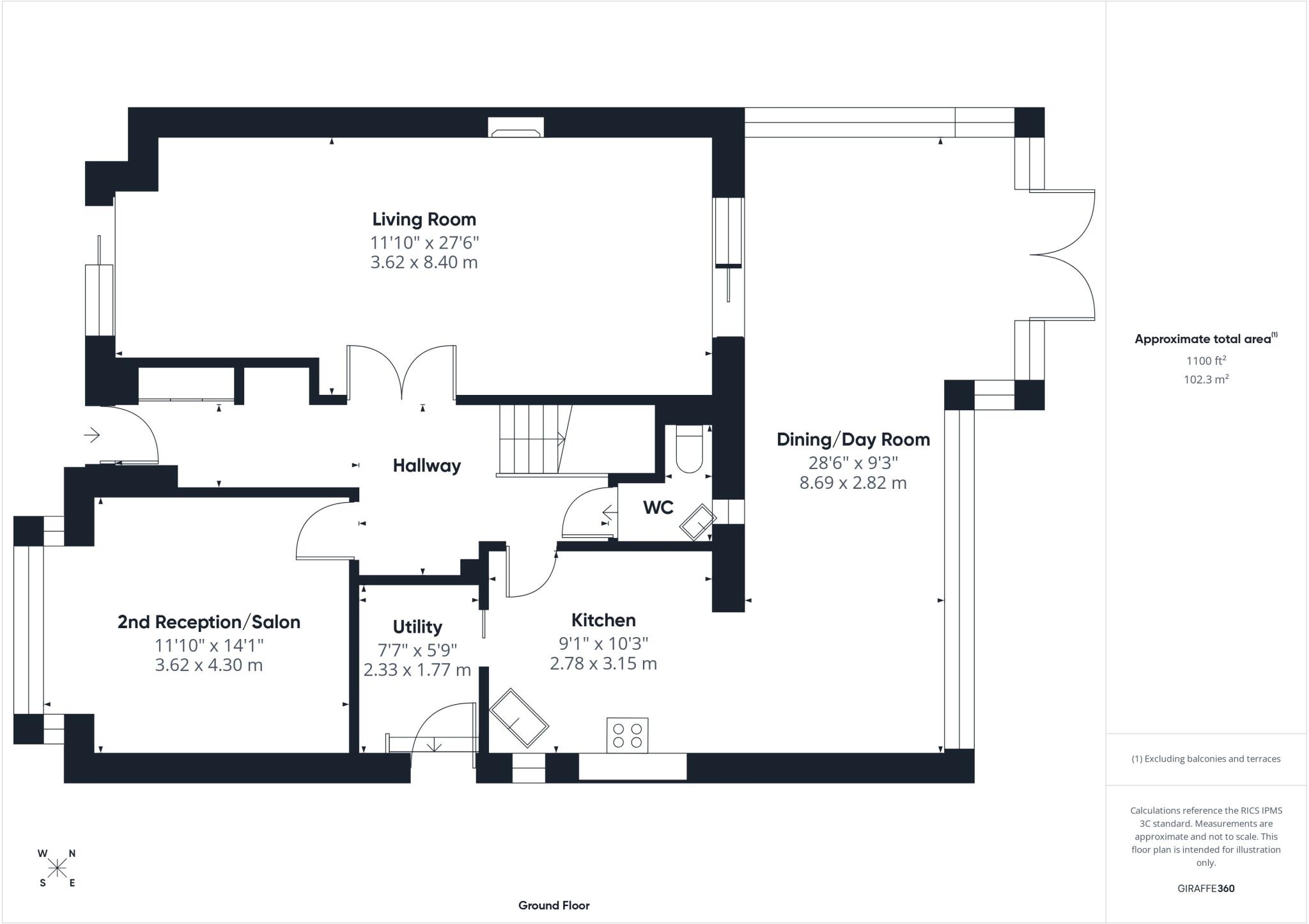
This four bedroom detached home is set within a highly sought after location close to sandy beaches at Hengistbury Head and features a generous rear garden.

Property Oracle says ..

This detached property on Harland Road in Hengistbury Head presents a blend of attractive features and areas for potential improvement. Its prime coastal location, coupled with a generous garden that includes a patio, greenhouse, and garden room, significantly enhances its appeal. The interior condition is generally good, with modern bathrooms and a well-equipped kitchen, though some rooms could benefit from updating. The asking price of £995,000 is relatively high for the area, but may be justified by the property’s desirable location and extensive land. Overall, this property offers a solid foundation for comfortable living with scope for further enhancement.

Therefore, we give this property 7 / 10. *Disclaimer: This is our option and does constitute a recommendation or financial advice. Do your own research. *

Price
6
Condition
7
Location
8
Land
8
Bedrooms
4
Bathrooms
2

The heatmap indicates the level of crime in the area. The color of the heatmap indicates the crime severity and recency.

Metrics Year-on-Year

Average area value
660,000.00 £
Increased by 18.47 %
from 557,089.00 £
Average area rental value
1,662.00 £/mo
Increased by 12.45 %
from 1,478.00 £/mo
Est rental Yield
3.02 %
Decreased by 5.03 %
from 3.18 %
Crime Rate
5.00 %
Unchanged by 0.00 %
from 5.00 %

Agent Activity

  • Slades Estate Agents created the listing.

Nearby Schools

NameTypeOfstedDistance
St Katharine'S Church Of England Primary SchoolVoluntary Aided SchoolGood0.64 KM
St Peter'S Catholic Comprehensive SchoolAcademy ConverterGood0.97 KM
Twynham SchoolAcademy ConverterOutstanding1.37 KM
The Priory Church Of England Primary SchoolVoluntary Aided SchoolRequires improvement1.43 KM
Christchurch WestChildren's Centre1.65 KM

Images

Picture No. 57 Picture No. 13 Picture No. 52 Picture No. 43 Picture No. 12 Picture No. 01 Picture No. 36 Picture No. 31 Picture No. 35 Picture No. 34 Picture No. 22 Picture No. 29 Picture No. 26 Picture No. 28 Picture No. 50 Picture No. 53 Picture No. 44 Picture No. 41 Picture No. 45 Picture No. 47 Picture No. 42 Picture No. 16 Picture No. 46 Picture No. 18 Picture No. 21 Picture No. 15 Picture No. 10 Picture No. 05 Picture No. 06 Picture No. 03

Nearby Streets

NameAverage PriceAverage SqftDistance
Springfield Avenue £ 000.00 KM
South View Road £ 900,00000.00 KM
St. John's Road £ 425,00000.00 KM

Nearby Transport

NameNLCTLCDistance
Christchurch5879CHR1.90 KM
Pokesdown5885POK4.68 KM
Hinton Admiral5880HNA8.48 KM
Bournemouth5876BMH8.93 KM

Nearby Listings

AddressPriceTypeScoreDistance
Harland Road, Hengistbury Head, Bournemouth, Dorset, BH6 £ 995,000BUY7 / 100.00 KM
Harland Road, Bournemouth, BH6 £ 995,000BUY7 / 100.00 KM
Harland Road, Hengistbury Head £ 750,000BUY6 / 100.08 KM
Baring Road, Bournemouth, Dorset, BH6 £ 800,000BUY6 / 100.09 KM
Baring Road, Hengistbury Head, Bournemouth. £ 800,000BUY6 / 100.09 KM

Nearby Properties

AddressPriceDistance
53 Baring Road £ 395,0000.09 KM
31 Baring Road £ 2,0000.09 KM
71 Baring Road £ 280,0000.09 KM
55 Baring Road £ 572,5000.09 KM
56 Baring Road £ 465,0000.09 KM