Balcombe Street, Marylebone, London, NW1
By Foxtons
£ 640,000
Reviews
3 out of 5 stars
Foxtons says ..
Beautiful two bedroom period conversion with a tranquil demised patio, bright reception and modern kitchen. Only moments form Baker Street and Marylebone stations.
Property Oracle says ..
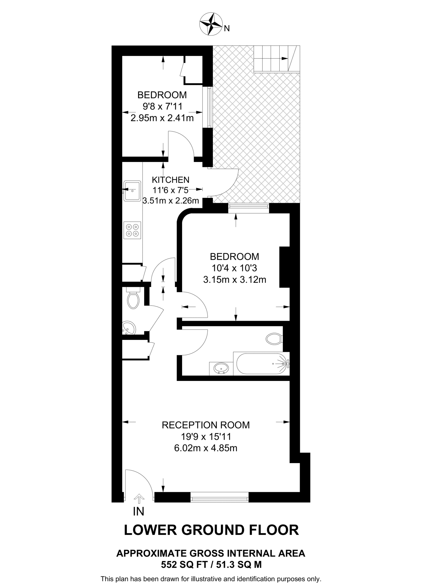
This is a well-presented two-bedroom flat in the desirable Marylebone area of London. The property benefits from its proximity to excellent transport links, schools, and local amenities. The flat itself is in good condition, featuring a modern kitchen and bathroom. A small patio area provides valuable outdoor space. While the square footage is relatively modest, the location and condition make it an attractive opportunity for buyers looking for a central London property.
Therefore, we give this property 7 / 10. *Disclaimer: This is our option and does constitute a recommendation or financial advice. Do your own research. *
- Price
- 7
- Condition
- 8
- Location
- 9
- Land
- 6
- Bedrooms
- 2
- Bathrooms
- 1
- Sqft (est)
- 585.28
The heatmap indicates the level of crime in the area. The color of the heatmap indicates the crime severity and recency.
Metrics Year-on-Year
- Average area value
- 2,357,000.00 £Increased by 84.11 %
- Est sale value
- 1,184,021.44 £Increased by 44.50 %
- Average area rental value
- 2,420.00 £/moIncreased by 1.34 %
- Est letting value
- 1,170.56 £/moUnchanged by 0.00 %
- Est rental Yield
- 1.23 %Decreased by 45.09 %
- Crime Rate
- 9.00 %Unchanged by 0.00 %
Agent Activity
Foxtons created the listing.
Nearby Schools
| Name | Type | Ofsted | Distance |
|---|---|---|---|
| Francis Holland School | Other Independent School | 0.28 KM | |
| Marylebone Children'S Centre Information Point | Children's Centre Linked Site | 0.29 KM | |
| St Mary'S Bryanston Square Cofe School | Voluntary Aided School | Good | 0.32 KM |
| St Edward'S Catholic Primary School | Voluntary Aided School | Requires improvement | 0.36 KM |
| London Business School | Higher Education Institutions | 0.39 KM |
Images
Nearby Streets
| Name | Average Price | Average Sqft | Distance |
|---|---|---|---|
| Bell Street | £ 592,500 | 0 | 0.00 KM |
| Cosway Street | £ 0 | 0 | 0.00 KM |
| Bell Street | £ 465,000 | 0 | 0.00 KM |
| Harrow Street | £ 0 | 0 | 0.00 KM |
| Whitehaven Street | £ 425,000 | 0 | 0.00 KM |
Nearby Transport
| Name | NLC | TLC | Distance |
|---|---|---|---|
| Marylebone | 1475 | MYB | 0.10 KM |
| Paddington | 3087 | PAD | 1.72 KM |
| South Hampstead | 1451 | SOH | 2.72 KM |
| Kentish Town West | 1449 | KTW | 3.13 KM |
| Euston | 1444 | EUS | 3.20 KM |
Nearby Listings
| Address | Price | Type | Score | Distance |
|---|---|---|---|---|
| Balcombe Street, Marylebone, London, NW1 | £ 685,000 | BUY | 7 / 10 | 0.00 KM |
| Balcombe Street, Marylebone, London, NW1 | £ 640,000 | BUY | 7 / 10 | 0.00 KM |
| Balcombe Street, London | £ 495,000 | BUY | Unknown | 0.03 KM |
| Harewood Avenue, London | £ 599,950 | BUY | 6 / 10 | 0.03 KM |
| Balcombe Street, London | £ 685,000 | BUY | Unknown | 0.03 KM |
Nearby Properties
| Address | Price | Distance |
|---|---|---|
| 44 Boston Place | £ 1,487,500 | 0.02 KM |
| 54 Boston Place | £ 550,000 | 0.02 KM |
| 22a Boston Place | £ 500,000 | 0.02 KM |
| 16 - 18 Boston Place | £ 5,600,000 | 0.02 KM |
| 60 Boston Place | £ 265,000 | 0.02 KM |