Church Road, NEWBRIDGE, NP11
By Cariad Property
£ 169,000
Reviews
3 out of 5 stars
Cariad Property says ..
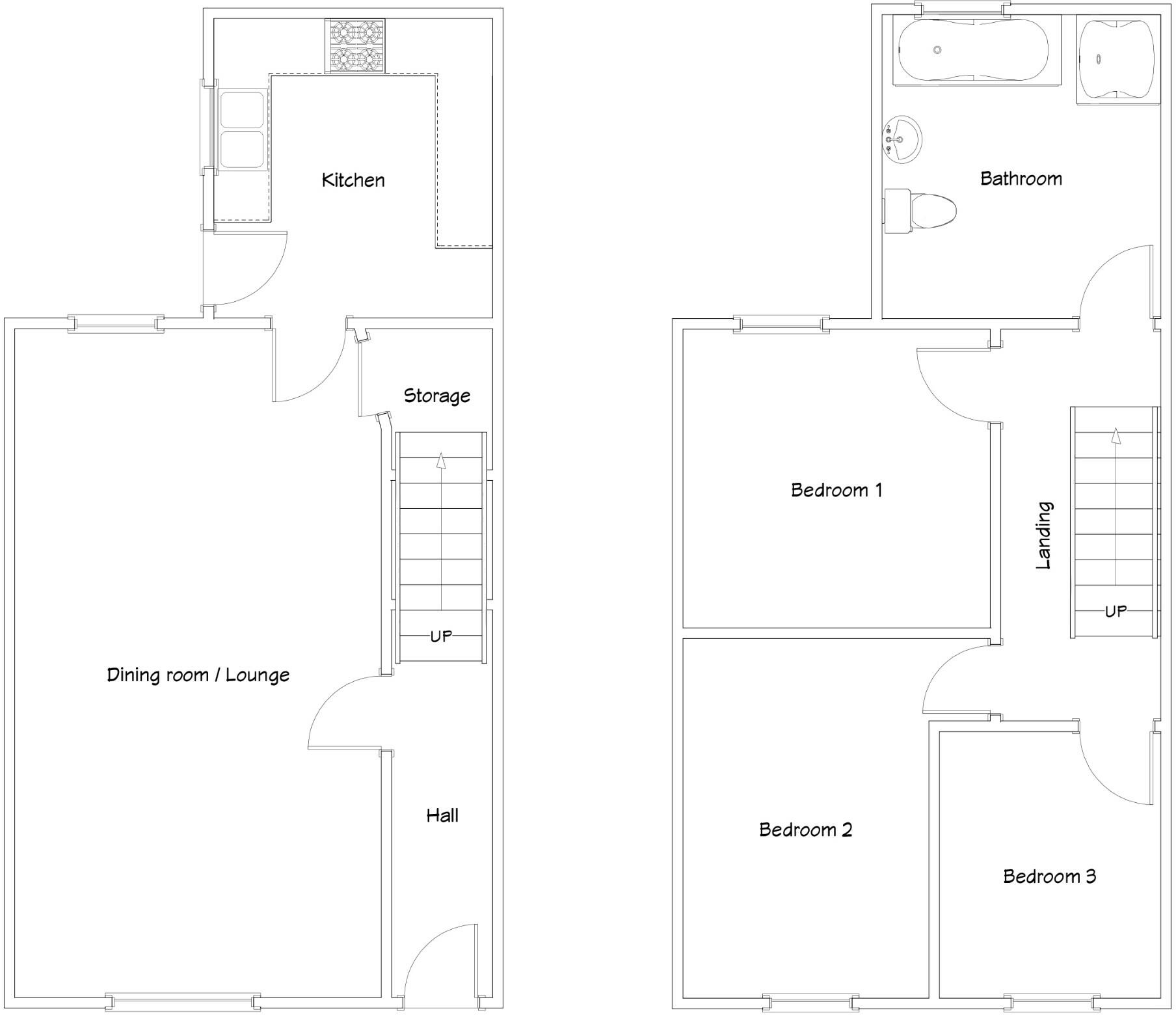
BEAUTIFUL, LARGELY EXTENDED FAMILY HOME. Town position, tucked away in a no through road, three bedrooms, first floor bathroom, modern, light, and airy, great garden, garage, no chain, your perfect new home.
Property Oracle says ..
The property is a 3 bedroom terraced house located on Church Road in Newbridge, Caerphilly, South Wales. The list price is £169,000. The property appears to have undergone some modernisation, with a newly fitted kitchen and bathroom. The interior is presented in good condition, with neutral décor and new carpets. The property benefits from a rear garden, which is mainly paved with artificial grass. There is also a detached garage to the rear. Newbridge is a small town in South Wales, with good transport links via train to Cardiff and Newport. There are a number of primary and secondary schools within a reasonable distance of the property. The immediate area appears to be residential, with a mix of terraced and semi-detached properties. However, the average house price in the area is significantly higher than the list price of this property. This may indicate that the property is priced competitively, or that there are factors affecting its value which are not immediately apparent from the provided information. The average house price in the area is £418,366, and the average price per square foot is £329. The property in question is significantly smaller than the average property in the area (800 sqft compared to 1271 sqft). The lack of plot size information makes it difficult to definitively assess the land value. However, the presence of a rear garden and detached garage does add value. Given the property’s location, condition, and the inclusion of a garden and detached garage, the list price of £169,000 may represent good value for money, particularly when compared to some of the lower priced properties on the same street. However, further investigation into the reasons for the discrepancy between the list price and the average house price in the area would be beneficial.
Therefore, we give this property 7 / 10. *Disclaimer: This is our option and does constitute a recommendation or financial advice. Do your own research. *
- Price
- 7
- Condition
- 8
- Location
- 7
- Land
- 6
- Bedrooms
- 3
- Bathrooms
- 1
- Sqft (est)
- 800.00
The heatmap indicates the level of crime in the area. The color of the heatmap indicates the crime severity and recency.
Metrics Year-on-Year
- Average area value
- 318,211.00 £Decreased by 21.80 %
- Est sale value
- 225,600.00 £Decreased by 21.45 %
- Average area rental value
- 2,110.00 £/moIncreased by 60.46 %
- Est letting value
- 800.00 £/moUnchanged by 0.00 %
- Est rental Yield
- 7.96 %Increased by 105.15 %
- Crime Rate
- 15.00 %Unchanged by 0.00 %
Agent Activity
Cariad Property marked this listing as sold.
Cariad Property created the listing.
Nearby Schools
| Name | Type | Ofsted | Distance |
|---|---|---|---|
| Tynewydd Primary School | Welsh Establishment | 0.36 KM | |
| Newbridge School | Welsh Establishment | 0.46 KM | |
| Crumlin High Level Primary School | Welsh Establishment | 1.04 KM | |
| Pantside Primary School | Welsh Establishment | 1.17 KM | |
| Abercarn Primary School | Welsh Establishment | 1.89 KM |
Images
Nearby Streets
| Name | Average Price | Average Sqft | Distance |
|---|---|---|---|
| Church Road | £ 0 | 0 | 0.00 KM |
| Yewtree Road | £ 0 | 0 | 0.00 KM |
| North Road | £ 295,000 | 0 | 0.00 KM |
| Victoria Terrace | £ 0 | 0 | 0.00 KM |
| Park Road | £ 270,000 | 0 | 0.00 KM |
Nearby Transport
| Name | NLC | TLC | Distance |
|---|---|---|---|
| Newbridge | 9919 | NBE | 0.24 KM |
| Llanhilleth | 9916 | LTH | 3.77 KM |
| Crosskeys | 9902 | CKY | 5.55 KM |
| Risca And Pontymister | 9920 | RCA | 8.94 KM |
| Hengoed | 4028 | HNG | 9.12 KM |
Nearby Listings
| Address | Price | Type | Score | Distance |
|---|---|---|---|---|
| Church Road, NEWBRIDGE, NP11 | £ 169,000 | BUY | 7 / 10 | 0.00 KM |
| Thorne Avenue, Newbridge, Newport | £ 130,000 | BUY | 6 / 10 | 0.04 KM |
| North Road, Newbridge, Glamorgan | £ 150,000 | BUY | 4 / 10 | 0.11 KM |
| Ashfield Road, NEWBRIDGE, NP114QW | £ 239,500 | BUY | 7 / 10 | 0.12 KM |
| Ashfield Road, Newbridge | £ 185,000 | BUY | 7 / 10 | 0.12 KM |
Nearby Properties
| Address | Price | Distance |
|---|---|---|
| 2 Church Road | £ 72,000 | 0.00 KM |
| 4 Church Road | £ 103,000 | 0.00 KM |
| 7 Church Road | £ 59,950 | 0.00 KM |
| 1 Church Road | £ 23,000 | 0.00 KM |
| 13 Church Road | £ 73,000 | 0.00 KM |