HA
Jekils Bank, Holbeach St Johns , Lincolnshire
By Harrison Rose Estate Agents
£ 465,000
Reviews
3 out of 5 stars
Harrison Rose Estate Agents says ..
MORE DETAILS TO ...
Property Oracle says ..
Therefore, we give this property 7 / 10. *Disclaimer: This is our option and does constitute a recommendation or financial advice. Do your own research. *
- Price
- 7
- Condition
- 8
- Location
- 6
- Land
- 7
- Bedrooms
- 6
- Bathrooms
- 3
The heatmap indicates the level of crime in the area. The color of the heatmap indicates the crime severity and recency.
Metrics Year-on-Year
- Average area value
- 536,667.00 £Increased by 14.03 %
- Average area rental value
- 1,423.00 £/moIncreased by 11.26 %
- Est rental Yield
- 3.18 %Decreased by 2.45 %
- Crime Rate
- 0.00 %
from 470,623.00 £
from 1,279.00 £/mo
from 3.26 %
from 0.00 %
Agent Activity
Harrison Rose Estate Agents created the listing.
Nearby Schools
| Name | Type | Ofsted | Distance |
|---|---|---|---|
| Whaplode Church Of England Primary School | Academy Converter | 6.39 KM | |
| The Gedney Hill Church Of England Vc Primary School | Voluntary Controlled School | Requires improvement | 6.74 KM |
| The Holbeach William Stukeley Church Of England Voluntary Aided Primary School | Voluntary Aided School | Good | 6.75 KM |
| Moulton Chapel Primary School | Community School | Good | 7.21 KM |
| Holbeach And Sutton Bridge Children'S Centre | Children's Centre | 7.34 KM |
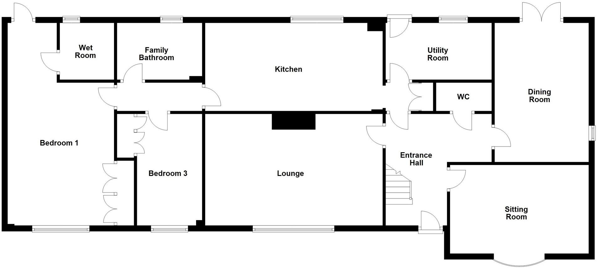
Images
Nearby Streets
| Name | Average Price | Average Sqft | Distance |
|---|---|---|---|
| Raven's Gate | £ 360,000 | 0 | 0.00 KM |
| Stoton's Gate | £ 0 | 0 | 0.00 KM |
Nearby Listings
| Address | Price | Type | Score | Distance |
|---|---|---|---|---|
| Jekils Bank, Holbeach St Johns , Lincolnshire | £ 465,000 | BUY | 7 / 10 | 0.00 KM |
| Jekils Bank , Holbeach St Johns , Lincolnshire | £ 330,000 | BUY | 7 / 10 | 0.00 KM |
| Jekils Bank, Holbeach, Spalding, PE12 | £ 240,000 | BUY | 5 / 10 | 0.00 KM |
| Jekils Bank, Holbeach St Johns | £ 299,995 | BUY | Unknown | 0.02 KM |
| Jekils Bank, Holbeach St Johns | £ 169,995 | BUY | 6 / 10 | 0.02 KM |
Nearby Properties
| Address | Price | Distance |
|---|---|---|
| 46 Jekils Bank | £ 39,950 | 0.02 KM |
| 66 Jekils Bank | £ 115,000 | 0.02 KM |
| 20 Jekils Bank | £ 250,000 | 0.02 KM |
| 59 Jekils Bank | £ 445,000 | 0.02 KM |
| 22 Jekils Bank | £ 365,000 | 0.02 KM |