Bradleys says ..
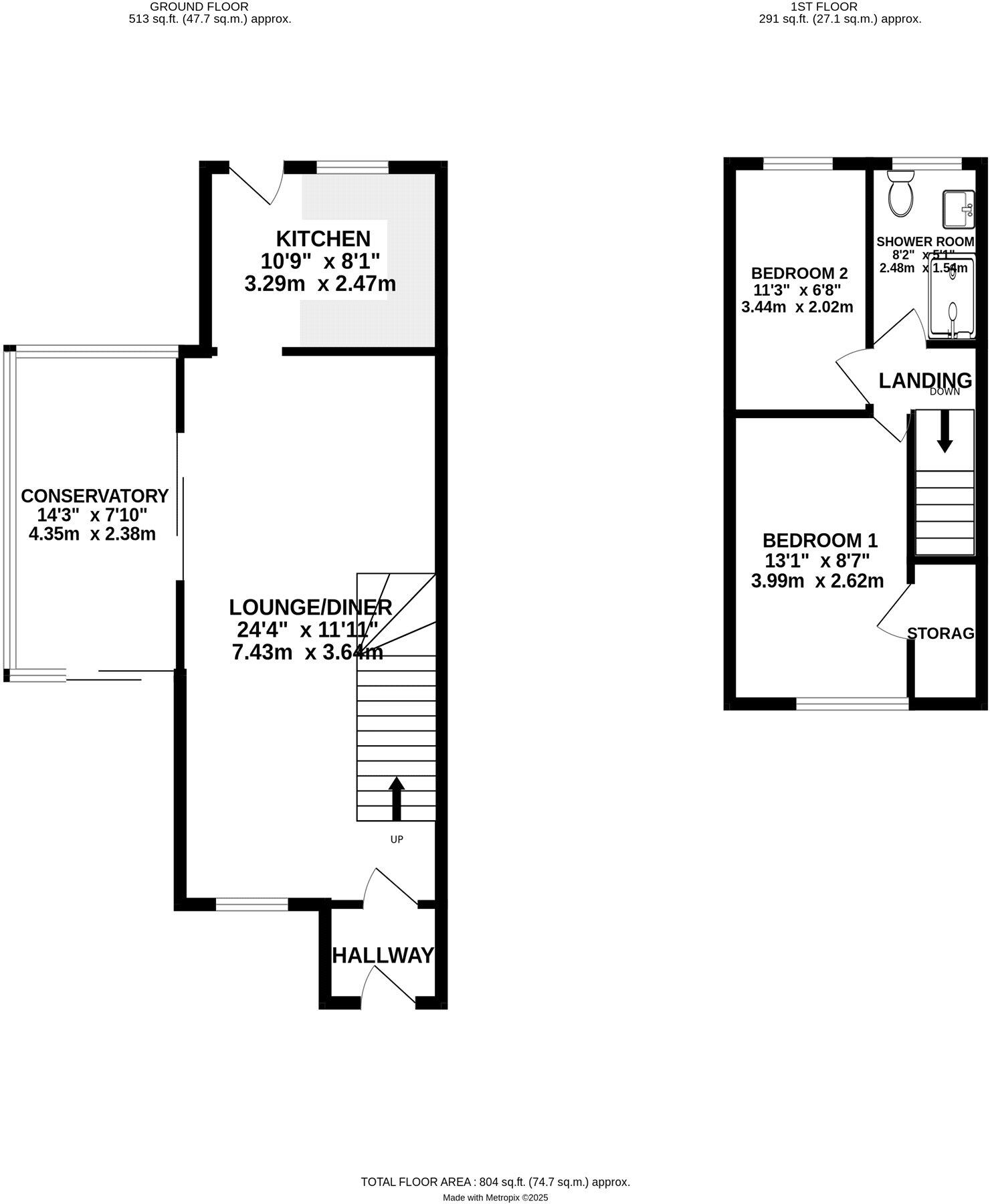
**EXTENDED TWO BEDROOM END TERRACE HOUSE** A spacious two-bedroom end-terrace home on a generous corner plot, with garage and driveway access from the rear. Extended on the ground floor, it offers a living room, dining area, kitchen, and bright conservatory, plus two bedrooms and ample ...
Property Oracle says ..
Therefore, we give this property 7 / 10. *Disclaimer: This is our option and does constitute a recommendation or financial advice. Do your own research. *
- Price
- 8
- Condition
- 7
- Location
- 7
- Land
- 7
- Bedrooms
- 2
- Bathrooms
- 1
- Sqft (est)
- 804.06
The heatmap indicates the level of crime in the area. The color of the heatmap indicates the crime severity and recency.
Metrics Year-on-Year
- Average area value
- 412,759.00 £Increased by 3.22 %
- Est sale value
- 320,819.94 £Increased by 2.31 %
- Average area rental value
- 1,432.00 £/moDecreased by 13.89 %
- Est letting value
- 804.06 £/moUnchanged by 0.00 %
- Est rental Yield
- 4.16 %Decreased by 16.63 %
- Crime Rate
- 9.00 %Unchanged by 0.00 %
from 399,872.00 £
from 313,583.40 £
from 1,663.00 £/mo
from 804.06 £/mo
from 4.99 %
from 9.00 %
Agent Activity
Bradleys created the listing.
Nearby Schools
| Name | Type | Ofsted | Distance |
|---|---|---|---|
| Brixington Primary Academy | Academy Sponsor Led | Requires improvement | 0.39 KM |
| Bassetts Farm Primary School | Foundation School | Good | 1.14 KM |
| Marpool Primary School | Foundation School | Good | 1.42 KM |
| Withycombe Raleigh Church Of England Primary School | Voluntary Controlled School | Good | 1.44 KM |
| Exmouth & District Children'S Centre | Children's Centre | 1.52 KM |
Images
Nearby Streets
| Name | Average Price | Average Sqft | Distance |
|---|---|---|---|
| Chestnut Close | £ 385,000 | 0 | 0.00 KM |
| Gorse Lane | £ 835,000 | 0 | 0.00 KM |
| Goldcrest Road | £ 400,000 | 0 | 0.00 KM |
| Fieldfare Crescent | £ 369,950 | 0 | 0.00 KM |
| Shirley Close | £ 470,000 | 0 | 0.00 KM |
Nearby Transport
| Name | NLC | TLC | Distance |
|---|---|---|---|
| Exmouth | 5756 | EXM | 3.30 KM |
| Lympstone Village | 5761 | LYM | 4.31 KM |
| Lympstone Commando | 5762 | LYC | 5.81 KM |
| Starcross | 3413 | SCS | 6.27 KM |
| Exton | 5760 | EXN | 6.43 KM |
Nearby Listings
| Address | Price | Type | Score | Distance |
|---|---|---|---|---|
| Holly Walk, Exmouth, Devon | £ 270,000 | BUY | 7 / 10 | 0.00 KM |
| Holly Walk, Exmouth, Devon, EX8 | £ 181,000 | BUY | 7 / 10 | 0.01 KM |
| Maple Drive Exmouth | £ 310,000 | BUY | 7 / 10 | 0.09 KM |
| Maple Drive, Exmouth, EX8 5NR | £ 300,000 | BUY | 7 / 10 | 0.09 KM |
| Maple Drive, Exmouth, EX8 5NR | £ 395,000 | BUY | 6 / 10 | 0.09 KM |
Nearby Properties
| Address | Price | Distance |
|---|---|---|
| 9 Holly Walk | £ 222,000 | 0.02 KM |
| 16 Holly Walk | £ 153,000 | 0.02 KM |
| 21 Holly Walk | £ 171,000 | 0.02 KM |
| 1 Holly Walk | £ 242,000 | 0.02 KM |
| 18 Holly Walk | £ 189,950 | 0.02 KM |