AP
Thorne Passage, Barnes, SW13
By Apparent Properties
£ 850,000
Reviews
3 out of 5 stars
Apparent Properties says ..
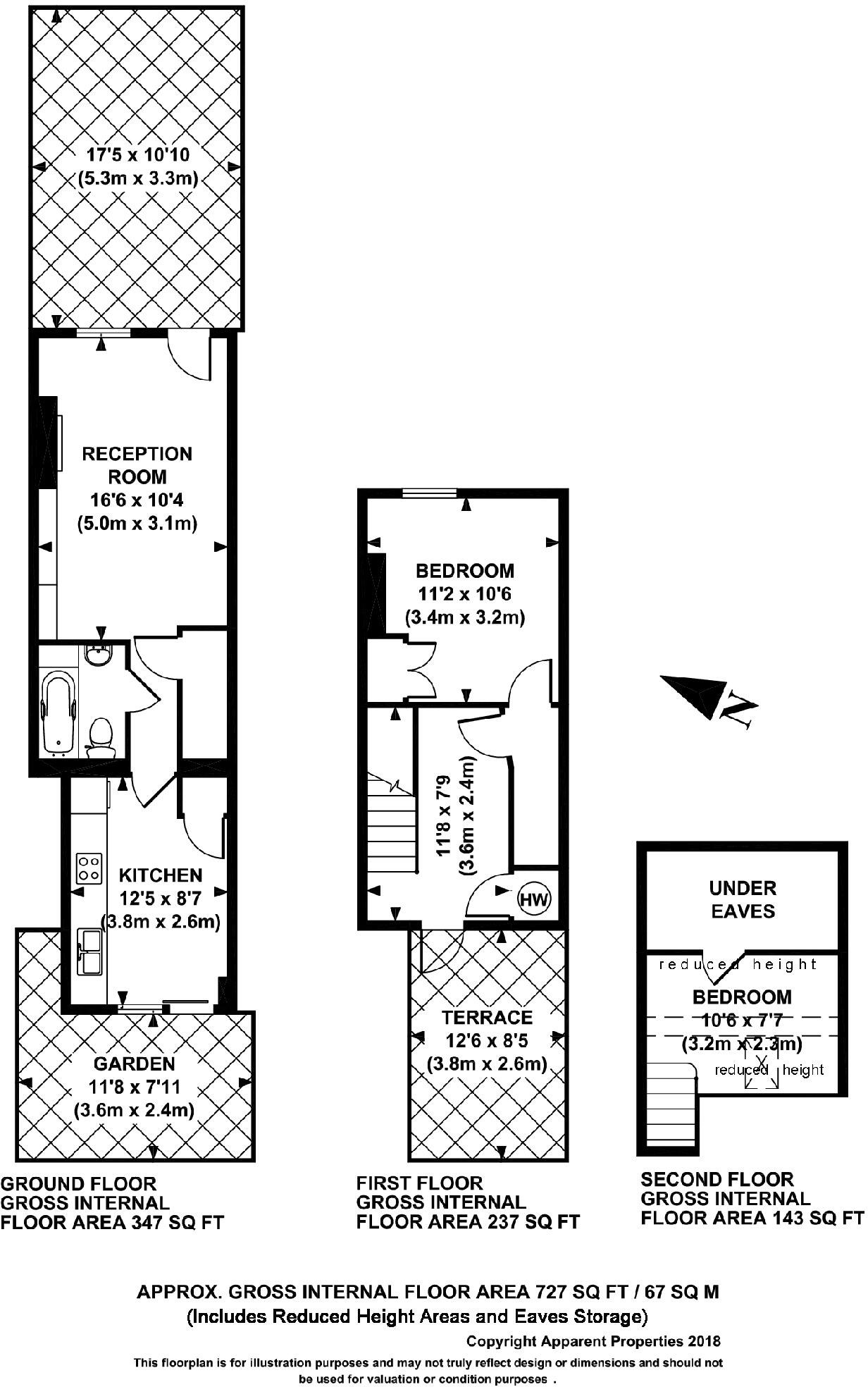
A great opportunity to purchase a two bedroom cottage on this characterful footpath in Barnes. Set back from the path behind a large front garden - perfect for morning sun - the front door opens to a double reception room with wooden floors, Plantation Shutters, and original fireplace. To the rea...
Property Oracle says ..
Therefore, we give this property 7 / 10. *Disclaimer: This is our option and does constitute a recommendation or financial advice. Do your own research. *
- Price
- 6
- Condition
- 8
- Location
- 9
- Land
- 6
- Bedrooms
- 2
- Bathrooms
- 1
The heatmap indicates the level of crime in the area. The color of the heatmap indicates the crime severity and recency.
Metrics Year-on-Year
- Average area value
- 754,167.00 £Decreased by 18.85 %
- Average area rental value
- 3,542.00 £/moIncreased by 18.22 %
- Est rental Yield
- 5.64 %Increased by 45.74 %
- Crime Rate
- 10.00 %Unchanged by 0.00 %
from 929,312.00 £
from 2,996.00 £/mo
from 3.87 %
from 10.00 %
Agent Activity
Apparent Properties created the listing.
Nearby Schools
| Name | Type | Ofsted | Distance |
|---|---|---|---|
| Barnes Primary School | Community School | Outstanding | 0.23 KM |
| East Sheen Primary School | Community School | Outstanding | 0.70 KM |
| Paddock School | Community Special School | Outstanding | 0.78 KM |
| Roehampton Hospital School | Other Independent School | 0.86 KM | |
| St Osmund'S Catholic Primary School | Voluntary Aided School | Good | 0.86 KM |
Images
Nearby Streets
| Name | Average Price | Average Sqft | Distance |
|---|---|---|---|
| St John's Grove | £ 0 | 0 | 0.00 KM |
| Dukes Meadows Footbridge | £ 0 | 0 | 0.00 KM |
| Buxton Road | £ 0 | 0 | 0.00 KM |
| Brook Gardens | £ 0 | 0 | 0.00 KM |
| Small Profits Dock | £ 0 | 0 | 0.00 KM |
Nearby Transport
| Name | NLC | TLC | Distance |
|---|---|---|---|
| Barnes Bridge | 5580 | BNI | 0.20 KM |
| Barnes | 5551 | BNS | 1.17 KM |
| Mortlake | 5600 | MTL | 1.66 KM |
| Chiswick | 5583 | CHK | 2.11 KM |
| Gunnersbury | 5588 | GUN | 3.49 KM |
Nearby Listings
| Address | Price | Type | Score | Distance |
|---|---|---|---|---|
| Thorne Passage, Barnes, SW13 | £ 850,000 | BUY | 7 / 10 | 0.00 KM |
| Thorne Passage, Barnes | £ 800,000 | BUY | Unknown | 0.01 KM |
| Cross Street, London, SW13 | £ 1,500,000 | BUY | 7 / 10 | 0.03 KM |
| Cross Street, Barnes, SW13 | £ 1,300,000 | BUY | 7 / 10 | 0.03 KM |
| Archway Street, Barnes, SW13 | £ 1,675,000 | BUY | 6 / 10 | 0.04 KM |
Nearby Properties
| Address | Price | Distance |
|---|---|---|
| 17 Thorne Passage | £ 347,500 | 0.01 KM |
| 6 Thorne Passage | £ 540,000 | 0.01 KM |
| 12 Thorne Passage | £ 353,350 | 0.01 KM |
| 10 Thorne Passage | £ 288,000 | 0.01 KM |
| 2 Thorne Passage | £ 745,000 | 0.01 KM |