Cranborne Avenue, Meads, Eastbourne
By Taylor Engley
£ 715,000
Reviews
3 out of 5 stars
Taylor Engley says ..
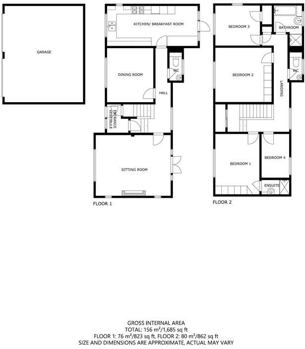
Taylor Engley are delighted to offer to the market this SPACIOUS INDIVIDUAL FOUR BEDROOMED DETACHED HOME, located in the desirable Meads area of Eastbourne. The property features a plot of approximately 0.28 of an acre and is considered to provide ideal family accommodation with the benefit of ga...
Property Oracle says ..
This is a detached property located on Cranborne Avenue in Meads, Eastbourne. It features four bedrooms and two bathrooms, with a total living space of 1,685 sq ft. The property includes a large garden and a garage. While the house is in a good location, it could benefit from some modernisation. The listing price is £715,000.
Therefore, we give this property 7 / 10. *Disclaimer: This is our option and does constitute a recommendation or financial advice. Do your own research. *
- Price
- 7
- Condition
- 6
- Location
- 8
- Land
- 9
- Bedrooms
- 4
- Bathrooms
- 2
- Sqft (est)
- 1,685.00
The heatmap indicates the level of crime in the area. The color of the heatmap indicates the crime severity and recency.
Metrics Year-on-Year
- Average area value
- 377,300.00 £Increased by 2.31 %
- Est sale value
- 679,055.00 £Increased by 9.51 %
- Average area rental value
- 1,214.00 £/moDecreased by 5.45 %
- Est letting value
- 1,685.00 £/moUnchanged by 0.00 %
- Est rental Yield
- 3.86 %Decreased by 7.66 %
- Crime Rate
- 0.00 %
Agent Activity
Taylor Engley created the listing.
Nearby Schools
| Name | Type | Ofsted | Distance |
|---|---|---|---|
| St John'S Meads Church Of England Primary School | Academy Converter | 0.47 KM | |
| St Andrew'S Prep | Other Independent School | 0.99 KM | |
| Bede'S Prep School | Other Independent School | 1.15 KM | |
| Gildredge House | Free Schools | Good | 1.90 KM |
| The South Downs School | Academy Special Converter | Outstanding | 2.43 KM |
Images
Nearby Streets
| Name | Average Price | Average Sqft | Distance |
|---|---|---|---|
| Upper Duke's Drive | £ 0 | 0 | 0.00 KM |
| Fairway Close | £ 0 | 0 | 0.00 KM |
| Saint John's Road | £ 0 | 0 | 0.00 KM |
| Upwick Mews | £ 499,950 | 0 | 0.00 KM |
| Vicarage Lane | £ 365,000 | 0 | 0.00 KM |
Nearby Transport
| Name | NLC | TLC | Distance |
|---|---|---|---|
| Eastbourne | 5448 | EBN | 2.94 KM |
| Hampden Park (Sussex) | 5450 | HMD | 5.05 KM |
| Polegate | 5455 | PLG | 7.38 KM |
| Pevensey And Westham | 5461 | PEV | 9.91 KM |
Nearby Listings
| Address | Price | Type | Score | Distance |
|---|---|---|---|---|
| Cranborne Avenue, Meads, Eastbourne | £ 715,000 | BUY | 7 / 10 | 0.00 KM |
| Cranborne Avenue, Eastbourne | £ 795,000 | BUY | 6 / 10 | 0.11 KM |
| Cranborne Avenue, Eastbourne | £ 925,000 | BUY | 7 / 10 | 0.11 KM |
| Warren Close, Eastbourne | £ 900,000 | BUY | 7 / 10 | 0.15 KM |
| Upper Carlisle Road, Eastbourne | £ 1,695,000 | BUY | 9 / 10 | 0.20 KM |
Nearby Properties
| Address | Price | Distance |
|---|---|---|
| Old Penhallow | £ 520,000 | 0.07 KM |
| 21 Salisbury Road | £ 450,000 | 0.07 KM |
| 25 Salisbury Road | £ 535,000 | 0.07 KM |
| 23 Salisbury Road | £ 568,000 | 0.07 KM |
| 27 Salisbury Road | £ 790,000 | 0.07 KM |