Russell Gardens, Sipson, West Drayton, UB7
By Kearns Residential
£ 290,000
Reviews
3 out of 5 stars
Kearns Residential says ..
A tastefully renovated one-bedroom freehold property. A great opportunity for first time buyers and investors alike.
Property Oracle says ..
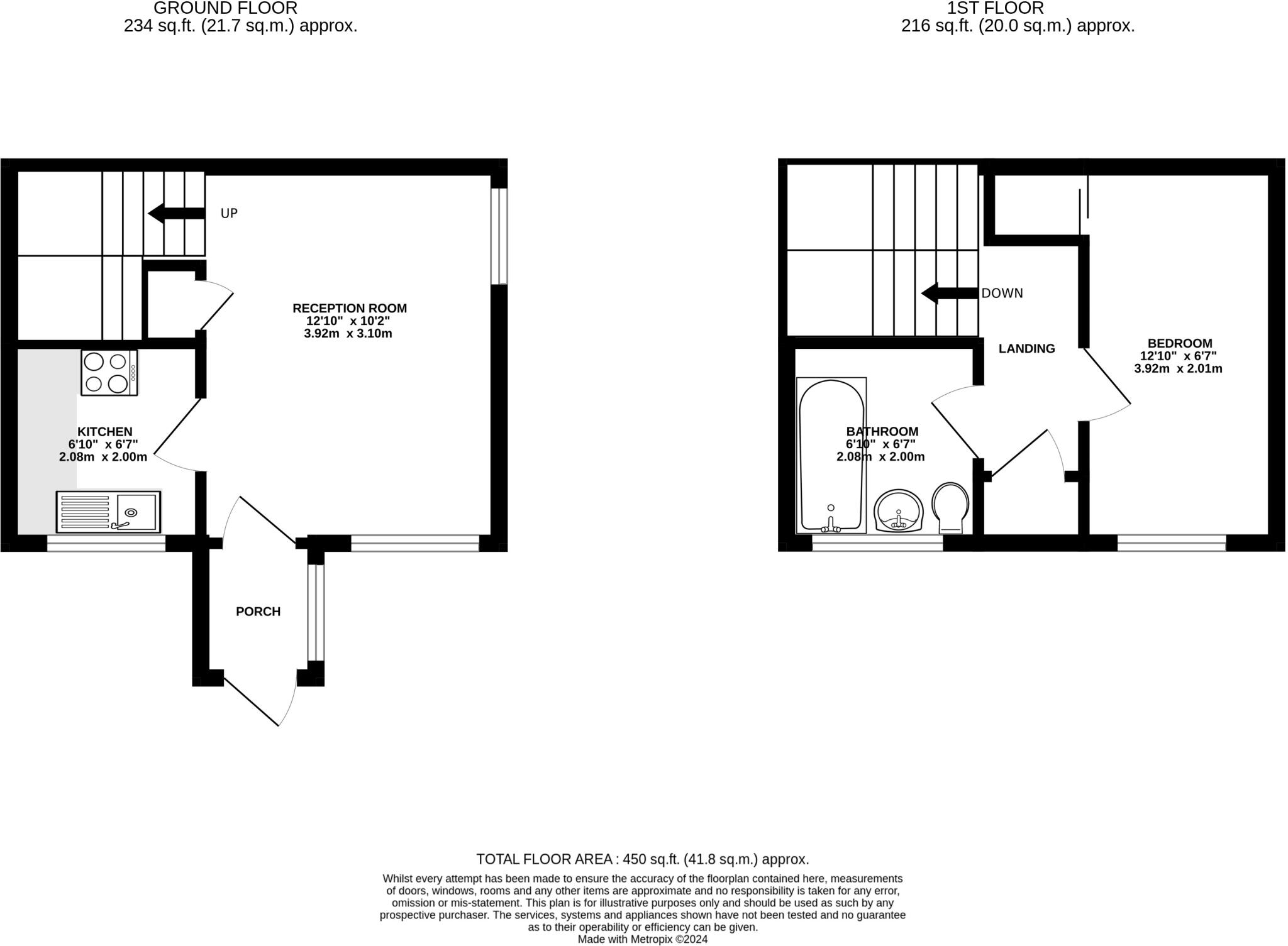
This one-bedroom terraced house in Russell Gardens, Sipson, is conveniently located near Heathrow Airport and West Drayton station, offering easy access to transportation links. The property appears to be in good condition based on the provided photos, with a modern kitchen and bathroom. While the plot size is listed as 0.00 sqft, the photos show a small paved area. The list price of £290,000 seems reasonable considering comparable properties in the area, although more detailed information on square footage for nearby listings would allow for a more precise price per square foot comparison. The proximity to Heathrow Airport and good schools are positive aspects, potentially increasing the property’s value. However, the lack of significant land may be a drawback for some buyers.
Therefore, we give this property 6 / 10. *Disclaimer: This is our option and does constitute a recommendation or financial advice. Do your own research. *
- Price
- 7
- Condition
- 8
- Location
- 7
- Land
- 3
- Bedrooms
- 1
- Bathrooms
- 1
- Sqft (est)
- 450.00
The heatmap indicates the level of crime in the area. The color of the heatmap indicates the crime severity and recency.
Metrics Year-on-Year
- Average area value
- 354,989.00 £Decreased by 17.80 %
- Est sale value
- 129,600.00 £Decreased by 39.87 %
- Average area rental value
- 1,560.00 £/moDecreased by 9.20 %
- Est letting value
- 450.00 £/moUnchanged by 0.00 %
- Est rental Yield
- 5.27 %Increased by 10.48 %
- Crime Rate
- 16.00 %Unchanged by 0.00 %
Agent Activity
Kearns Residential created the listing.
Nearby Schools
| Name | Type | Ofsted | Distance |
|---|---|---|---|
| Lady Nafisa School | Other Independent School | Good | 0.28 KM |
| Heathrow Primary School | Community School | Good | 0.33 KM |
| Cherry Lane Children'S Centre | Children's Centre | 0.76 KM | |
| Cherry Lane Primary School | Community School | Good | 0.76 KM |
| West Drayton Academy | Academy Converter | Good | 1.85 KM |
Images
Nearby Streets
| Name | Average Price | Average Sqft | Distance |
|---|---|---|---|
| Wykeham Close | £ 0 | 0 | 0.00 KM |
| Kenwood Close | £ 0 | 0 | 0.00 KM |
| Bell Avenue | £ 0 | 0 | 0.00 KM |
| Oak Avenue | £ 0 | 0 | 0.00 KM |
| Bolton's Lane | £ 0 | 0 | 0.00 KM |
Nearby Transport
| Name | NLC | TLC | Distance |
|---|---|---|---|
| Heathrow Terminals 2 And 3 (Rail Station Only) | 7090 | HXX | 2.23 KM |
| West Drayton | 3174 | WDT | 2.66 KM |
| Heathrow Terminal 4 | 7091 | HAF | 3.90 KM |
| Hayes And Harlington | 3186 | HAY | 4.29 KM |
| Heathrow Terminal 5 | 9846 | HWV | 4.34 KM |
Nearby Listings
| Address | Price | Type | Score | Distance |
|---|---|---|---|---|
| Russell Gardens, Sipson, West Drayton, UB7 | £ 290,000 | BUY | 6 / 10 | 0.00 KM |
| Russell Gardens, Sipson | £ 280,000 | BUY | 6 / 10 | 0.04 KM |
| Russell Gardens, Sipson, West Drayton, UB7 | £ 280,000 | BUY | 5 / 10 | 0.07 KM |
| Sipson, West Drayton | £ 440,000 | BUY | 6 / 10 | 0.09 KM |
| Vineries Close, Sipson, West Drayton | £ 440,000 | BUY | 5 / 10 | 0.13 KM |
Nearby Properties
| Address | Price | Distance |
|---|---|---|
| 26 Russell Gardens | £ 175,670 | 0.02 KM |
| 42 Russell Gardens | £ 131,000 | 0.02 KM |
| 16 Russell Gardens | £ 155,000 | 0.02 KM |
| 10 Russell Gardens | £ 148,000 | 0.02 KM |
| 2 Russell Gardens | £ 160,000 | 0.02 KM |