Tramway Road, Aigburth, Liverpool, L17
By Move Residential
£ 200,000
Reviews
2 out of 5 stars
Move Residential says ..
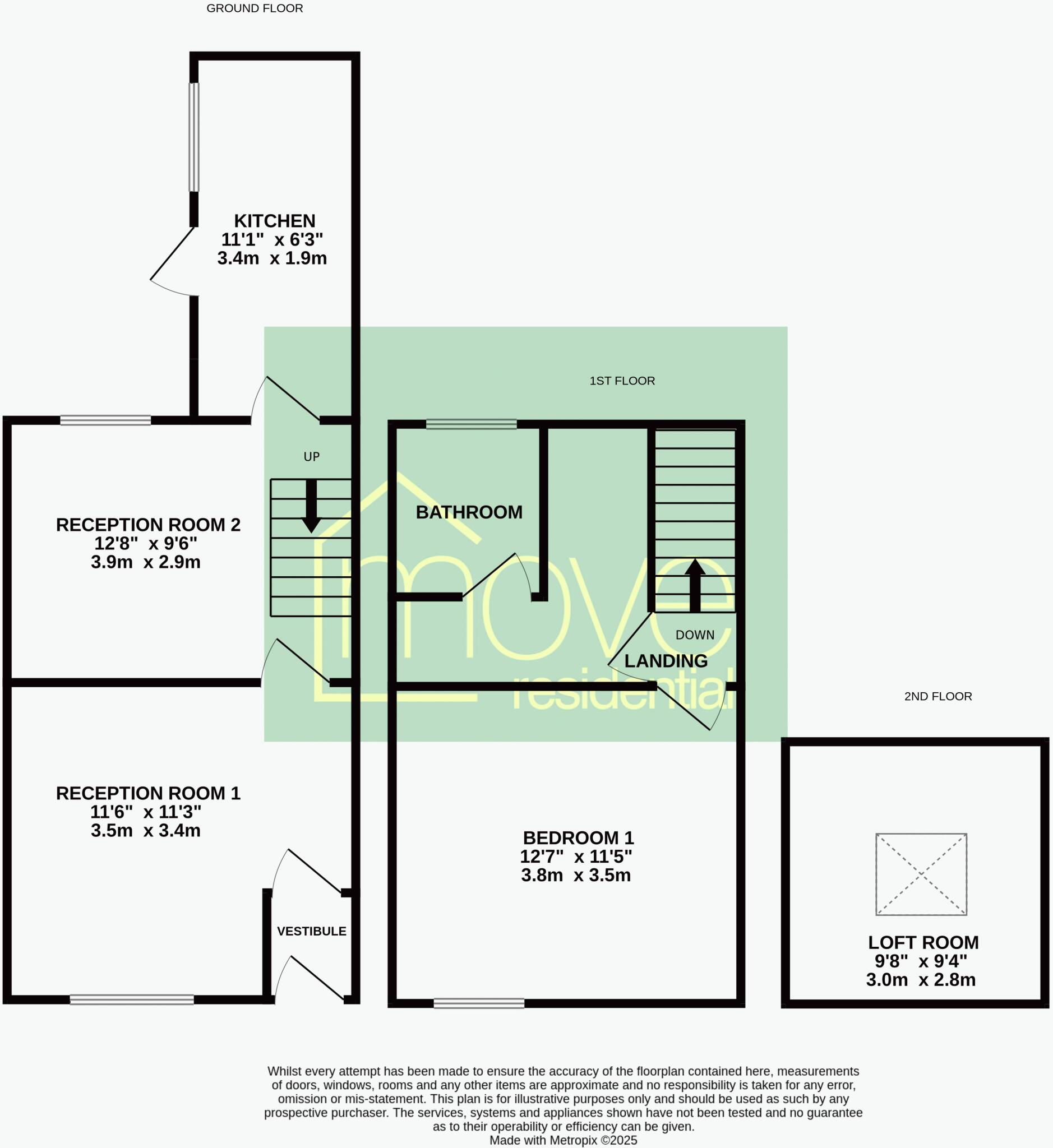
This utterly charming one bedroom mid terrace home, enjoying a prime location on Tramway Road in the highly sought-after suburb of Aigburth, L17, is introduced to the sales market by appointed agents Move Residential. Beautifully presented throughout, this presents an opportunity not to be missed...
Property Oracle says ..
Therefore, we give this property 5 / 10. *Disclaimer: This is our option and does constitute a recommendation or financial advice. Do your own research. *
- Price
- 6
- Condition
- 7
- Location
- 8
- Land
- 1
- Bedrooms
- 1
- Bathrooms
- 1
- Sqft (est)
- 552.94
The heatmap indicates the level of crime in the area. The color of the heatmap indicates the crime severity and recency.
Metrics Year-on-Year
- Average area value
- 234,977.00 £Increased by 10.88 %
- Est sale value
- 162,564.36 £Increased by 28.95 %
- Average area rental value
- 1,065.00 £/moDecreased by 1.11 %
- Est letting value
- 552.94 £/moUnchanged by 0.00 %
- Est rental Yield
- 5.44 %Decreased by 10.82 %
- Crime Rate
- 6.00 %Unchanged by 0.00 %
from 211,917.00 £
from 126,070.32 £
from 1,077.00 £/mo
from 552.94 £/mo
from 6.10 %
from 6.00 %
Agent Activity
Move Residential created the listing.
Nearby Schools
| Name | Type | Ofsted | Distance |
|---|---|---|---|
| St Charles' Catholic Primary School | Voluntary Aided School | Good | 0.10 KM |
| St Michael-In-The-Hamlet Community Primary School | Community School | Good | 0.15 KM |
| Auckland College | Other Independent School | Outstanding | 0.34 KM |
| Bellerive Fcj Catholic College | Academy Converter | Good | 1.09 KM |
| King'S Leadership Academy, Liverpool | Academy Sponsor Led | Good | 1.15 KM |
Images
Nearby Streets
| Name | Average Price | Average Sqft | Distance |
|---|---|---|---|
| St Michaels Road | £ 186,667 | 0 | 0.00 KM |
| Melly Road | £ 390,000 | 0 | 0.00 KM |
| Lucknow Street | £ 0 | 0 | 0.00 KM |
| Parkfield Mews | £ 240,000 | 0 | 0.00 KM |
| Larkfield Grove | £ 350,000 | 0 | 0.00 KM |
Nearby Transport
| Name | NLC | TLC | Distance |
|---|---|---|---|
| St Michaels | 2248 | STM | 0.59 KM |
| Aigburth | 2255 | AIG | 2.62 KM |
| Edge Hill | 2169 | EDG | 2.90 KM |
| Brunswick | 3623 | BRW | 3.24 KM |
| Mossley Hill | 2171 | MSH | 3.56 KM |
Nearby Listings
| Address | Price | Type | Score | Distance |
|---|---|---|---|---|
| Tramway Road, Aigburth, Liverpool, L17 | £ 200,000 | BUY | 5 / 10 | 0.00 KM |
| Burdett Street, Aigburth, L17 | £ 290,000 | BUY | 5 / 10 | 0.04 KM |
| Burdett Street, Liverpool | £ 240,000 | BUY | 5 / 10 | 0.04 KM |
| St Michaels Road, Aigburth, Liverpool, L17 | £ 250,000 | BUY | Unknown | 0.11 KM |
| Borromeo Close, Aigburth, Liverpool, L17 | £ 300,000 | BUY | Unknown | 0.14 KM |
Nearby Properties
| Address | Price | Distance |
|---|---|---|
| 88 Tramway Road | £ 122,950 | 0.01 KM |
| 45 Tramway Road | £ 222,500 | 0.01 KM |
| 104 Tramway Road | £ 130,000 | 0.01 KM |
| 58 Tramway Road | £ 30,000 | 0.01 KM |
| 42 Tramway Road | £ 110,950 | 0.02 KM |