Connells says ..
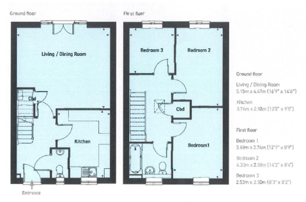
Stonewater in partnership with Tilia Homes presents this three bedroom end of terrace property fitted with an air source heat pump and PV panels along with a combination of carpet and vinyl flooring.
Property Oracle says ..
Therefore, we give this property 7 / 10. *Disclaimer: This is our option and does constitute a recommendation or financial advice. Do your own research. *
- Price
- 9
- Condition
- 8
- Location
- 7
- Land
- 6
- Bedrooms
- 3
- Bathrooms
- 1
- Sqft (est)
- 667.58
The heatmap indicates the level of crime in the area. The color of the heatmap indicates the crime severity and recency.
Metrics Year-on-Year
- Average area value
- 462,959.00 £Increased by 3.35 %
- Est sale value
- 353,149.82 £Increased by 21.61 %
- Average area rental value
- 1,308.00 £/moIncreased by 12.47 %
- Est letting value
- 667.58 £/moUnchanged by 0.00 %
- Est rental Yield
- 3.39 %Increased by 8.65 %
- Crime Rate
- 75.00 %Unchanged by 0.00 %
from 447,970.00 £
from 290,397.30 £
from 1,163.00 £/mo
from 667.58 £/mo
from 3.12 %
from 75.00 %
Agent Activity
Connells marked this listing as sold.
Connells created the listing.
Nearby Schools
| Name | Type | Ofsted | Distance |
|---|---|---|---|
| Potton Lower School | Foundation School | Good | 0.50 KM |
| Potton Middle School | Community School | Good | 0.52 KM |
| Sutton Cofe Va Lower School | Voluntary Aided School | Good | 1.66 KM |
| Oneschool Global Uk - Biggleswade Campus | Other Independent School | 3.13 KM | |
| Everton Heath Primary School | Academy Converter | 3.14 KM |
Images
Nearby Streets
| Name | Average Price | Average Sqft | Distance |
|---|---|---|---|
| Station Court | £ 0 | 0 | 0.00 KM |
| Burdett's Court | £ 0 | 0 | 0.00 KM |
| Burgoyne Court | £ 0 | 0 | 0.00 KM |
| Goodship Lane | £ 403,748 | 0 | 0.00 KM |
| West End Lane | £ 0 | 0 | 0.00 KM |
Nearby Transport
| Name | NLC | TLC | Distance |
|---|---|---|---|
| Biggleswade | 6170 | BIW | 6.52 KM |
| Sandy | 6172 | SDY | 6.83 KM |
Nearby Listings
| Address | Price | Type | Score | Distance |
|---|---|---|---|---|
| The Ridgeway, Potton, Bedfordshire, SG19 2PS | £ 419,950 | BUY | Unknown | 0.00 KM |
| The Ridgeway, Potton, Bedfordshire, SG19 2PS | £ 339,950 | BUY | 6 / 10 | 0.00 KM |
| The Ridgeway, Potton, Sandy | £ 146,000 | BUY | 7 / 10 | 0.00 KM |
| The Ridgeway, Potton, Bedfordshire, SG19 2PS | £ 399,950 | BUY | 6 / 10 | 0.00 KM |
| The Ridgeway, Potton, Bedfordshire, SG19 2PS | £ 404,950 | BUY | 8 / 10 | 0.00 KM |
Nearby Properties
| Address | Price | Distance |
|---|---|---|
| 44 The Ridgeway | £ 390,000 | 0.00 KM |
| 28 The Ridgeway | £ 280,000 | 0.00 KM |
| 21 The Ridgeway | £ 427,500 | 0.00 KM |
| 17 The Ridgeway | £ 275,000 | 0.00 KM |
| 27 The Ridgeway | £ 283,000 | 0.00 KM |