Dexters says ..
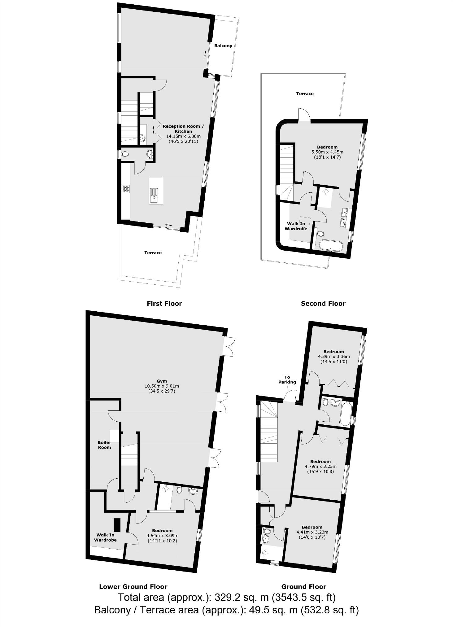
A truly unique and impressive five double bedroom modern build, arranged over four floors, benefitting from having two South-facing roof terraces and a balcony, a garden on the ground floor, private off-street parking for two vehicles, and is available chain-free.
Property Oracle says ..
This is a modern house located in College Park And Old Oak, Hammersmith And Fulham, London. The property has 5 bedrooms and 4 bathrooms. It is located close to local schools and transportation. The property has a roof terrace and a gym. The interior design is contemporary, with concrete ceilings and modern fixtures and fittings. The property also benefits from off street parking. The property is listed for £1,850,000.
Therefore, we give this property 6 / 10. *Disclaimer: This is our option and does constitute a recommendation or financial advice. Do your own research. *
- Price
- 6
- Condition
- 7
- Location
- 7
- Land
- 4
- Bedrooms
- 5
- Bathrooms
- 4
The heatmap indicates the level of crime in the area. The color of the heatmap indicates the crime severity and recency.
Metrics Year-on-Year
- Average area value
- 541,667.00 £Decreased by 44.13 %
- Average area rental value
- 2,752.00 £/moIncreased by 10.17 %
- Est rental Yield
- 6.10 %Increased by 97.41 %
- Crime Rate
- 7.00 %Unchanged by 0.00 %
Agent Activity
Dexters created the listing.
Nearby Schools
| Name | Type | Ofsted | Distance |
|---|---|---|---|
| Kenmont Primary School | Community School | Good | 0.18 KM |
| Furness Primary School | Academy Converter | Good | 0.43 KM |
| Newman Catholic College | Voluntary Aided School | Good | 0.83 KM |
| Capital City Academy | Academy Sponsor Led | Good | 0.96 KM |
| Roundwood School And Community Centre | Free Schools Alternative Provision | 0.99 KM |
Images
Nearby Streets
| Name | Average Price | Average Sqft | Distance |
|---|---|---|---|
| Fortune Way | £ 0 | 0 | 0.00 KM |
| Wrottesley Road | £ 0 | 0 | 0.00 KM |
| Wrottesley Road | £ 0 | 0 | 0.00 KM |
| Wrottesley Road | £ 0 | 0 | 0.00 KM |
| Wrottesley Road | £ 0 | 0 | 0.00 KM |
Nearby Transport
| Name | NLC | TLC | Distance |
|---|---|---|---|
| Willesden Junction | 1457 | WIJ | 0.91 KM |
| Kensal Green | 1447 | KNL | 1.26 KM |
| Kensal Rise | 1448 | KNR | 1.88 KM |
| Harlesden | 1521 | HDN | 2.42 KM |
| Brondesbury Park | 1438 | BSP | 3.13 KM |
Nearby Listings
| Address | Price | Type | Score | Distance |
|---|---|---|---|---|
| Waldo Road, College Park | £ 1,850,000 | BUY | 6 / 10 | 0.00 KM |
| Waldo Road, Kensal Green, NW10 | £ 1,000,000 | BUY | 6 / 10 | 0.03 KM |
| Scrubs Lane, College Park/Kensal Green | £ 399,950 | BUY | Unknown | 0.06 KM |
| Scrubs Lane, London | £ 330,000 | BUY | 6 / 10 | 0.08 KM |
| Scrubs Lane, London | £ 480,000 | BUY | 6 / 10 | 0.08 KM |
Nearby Properties
| Address | Price | Distance |
|---|---|---|
| 33 Letchford Gardens | £ 425,000 | 0.09 KM |
| 7 Letchford Gardens | £ 790,000 | 0.09 KM |
| 19 Letchford Gardens | £ 965,500 | 0.09 KM |
| 22 Letchford Gardens | £ 236,000 | 0.11 KM |
| 18 Letchford Gardens | £ 829,350 | 0.11 KM |