Smart Homes Ltd says ..
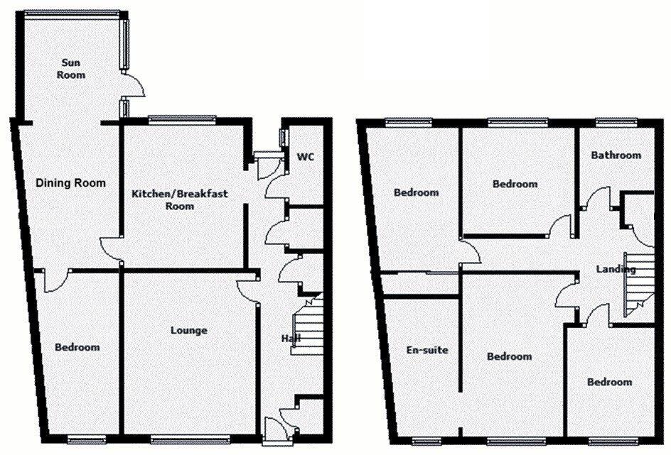
An extended and well presented end-terrace family home situated in a cul-de-sac location offering accommodation comprising a spacious lounge, dining room, sun room, breakfast kitchen, guest W.C, five bedrooms, spacious en-suite shower room, family bathroom, rear garden and driveway parking
Property Oracle says ..
Therefore, we give this property 7 / 10. *Disclaimer: This is our option and does constitute a recommendation or financial advice. Do your own research. *
- Price
- 9
- Condition
- 8
- Location
- 7
- Land
- 7
- Bedrooms
- 5
- Bathrooms
- 2
- Sqft (est)
- 1,390.00
The heatmap indicates the level of crime in the area. The color of the heatmap indicates the crime severity and recency.
Metrics Year-on-Year
- Average area value
- 543,800.00 £Increased by 17.00 %
- Est sale value
- 746,430.00 £Increased by 32.27 %
- Average area rental value
- 1,669.00 £/moDecreased by 26.99 %
- Est letting value
- 1,390.00 £/moDecreased by 50.00 %
- Est rental Yield
- 3.68 %Decreased by 37.63 %
- Crime Rate
- 8.00 %Unchanged by 0.00 %
from 464,776.00 £
from 564,340.00 £
from 2,286.00 £/mo
from 2,780.00 £/mo
from 5.90 %
from 8.00 %
Agent Activity
Smart Homes Ltd created the listing.
Nearby Schools
| Name | Type | Ofsted | Distance |
|---|---|---|---|
| Woodlands Infant School | Community School | Requires improvement | 0.53 KM |
| Our Lady Of The Wayside Catholic Primary School | Academy Converter | 0.62 KM | |
| Light Hall School | Academy Converter | Good | 0.77 KM |
| Shirley Heath Junior School | Community School | Outstanding | 1.20 KM |
| Shirley Heath Children'S Centre (Shirley South) | Children's Centre | 1.26 KM |
Images
Nearby Streets
| Name | Average Price | Average Sqft | Distance |
|---|---|---|---|
| Blackford Road | £ 389,167 | 0 | 0.00 KM |
| Kings Road | £ 0 | 0 | 0.00 KM |
| Joseph Crescent | £ 456,847 | 0 | 0.00 KM |
| Kings Road | £ 116,000 | 0 | 0.00 KM |
| Newhall Square | £ 0 | 0 | 0.00 KM |
Nearby Transport
| Name | NLC | TLC | Distance |
|---|---|---|---|
| Shirley | 4526 | SRL | 2.38 KM |
| Whitlocks End | 4539 | WTE | 2.92 KM |
| Yardley Wood | 4537 | YRD | 4.36 KM |
| The Lakes (Warks) | 4538 | TLK | 4.53 KM |
| Solihull | 4527 | SOL | 4.62 KM |
Nearby Listings
| Address | Price | Type | Score | Distance |
|---|---|---|---|---|
| Wakelin Road, Shirley | £ 385,000 | BUY | 7 / 10 | 0.00 KM |
| Oak Tree Place | £ 400,000 | BUY | Unknown | 0.02 KM |
| Wakelin Road, Shirley, B90 | £ 320,000 | BUY | 7 / 10 | 0.06 KM |
| Tanworth Lane, Shirley, Solihull, B90 4BZ | £ 565,000 | BUY | 7 / 10 | 0.07 KM |
| Wakelin Road, Shirley, Solihull | £ 325,000 | BUY | 7 / 10 | 0.09 KM |
Nearby Properties
| Address | Price | Distance |
|---|---|---|
| 140 Tanworth Lane | £ 195,000 | 0.02 KM |
| 136 Tanworth Lane | £ 285,000 | 0.02 KM |
| 148 Tanworth Lane | £ 276,000 | 0.02 KM |
| 156 Tanworth Lane | £ 580,000 | 0.02 KM |
| 18 Wakelin Road | £ 278,000 | 0.08 KM |