FO
Church Walk, Stoke Newington, London, N16
By Foxtons
£ 600,000
Reviews
2 out of 5 stars
Foxtons says ..
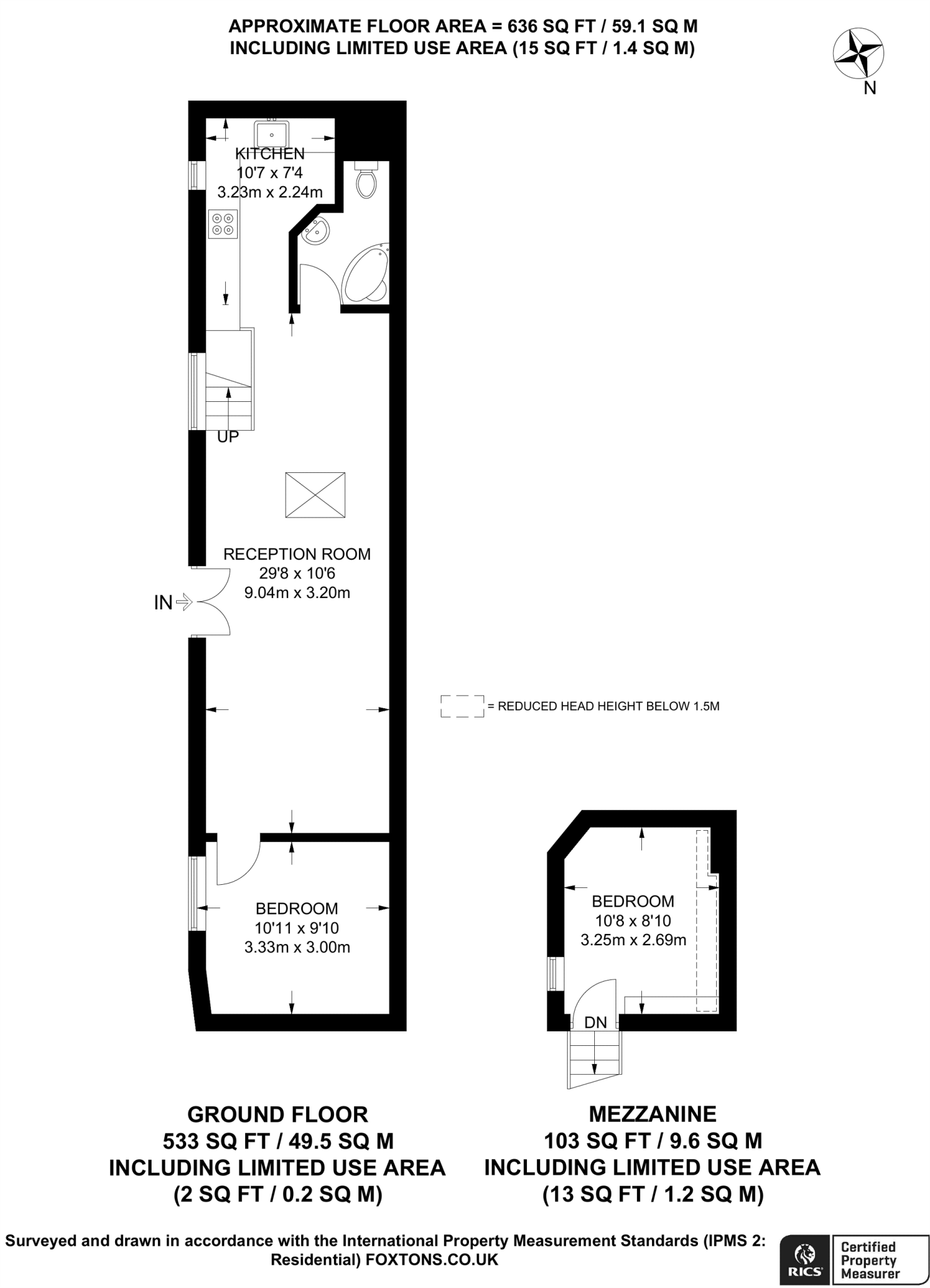
A charming 2 bedroom flat boasting bright accommodation throughout, a private entrance and an excellent location moments from Newington Green.
Property Oracle says ..
Therefore, we give this property 4 / 10. *Disclaimer: This is our option and does constitute a recommendation or financial advice. Do your own research. *
- Price
- 5
- Condition
- 4
- Location
- 8
- Land
- 1
- Bedrooms
- 2
- Bathrooms
- 1
- Sqft (est)
- 591.16
The heatmap indicates the level of crime in the area. The color of the heatmap indicates the crime severity and recency.
Metrics Year-on-Year
- Average area value
- 920,000.00 £Increased by 33.45 %
- Est sale value
- 537,955.60 £Increased by 8.98 %
- Average area rental value
- 2,550.00 £/moIncreased by 2.12 %
- Est letting value
- 1,182.32 £/moDecreased by 33.33 %
- Est rental Yield
- 3.33 %Decreased by 23.45 %
- Crime Rate
- 4.00 %Unchanged by 0.00 %
from 689,400.00 £
from 493,618.60 £
from 2,497.00 £/mo
from 1,773.48 £/mo
from 4.35 %
from 4.00 %
Agent Activity
Foxtons created the listing.
Nearby Schools
| Name | Type | Ofsted | Distance |
|---|---|---|---|
| The Factory Children'S Centre | Children's Centre | 0.15 KM | |
| Newington Green Primary School | Community School | Good | 0.20 KM |
| Grasmere Primary School | Community School | Good | 0.34 KM |
| Stoke Newington School And Sixth Form | Community School | Good | 0.62 KM |
| Betty Layward Primary School | Community School | Good | 0.62 KM |
Images
Nearby Streets
| Name | Average Price | Average Sqft | Distance |
|---|---|---|---|
| Floral Place | £ 0 | 0 | 0.00 KM |
| Wordsworth Road | £ 0 | 0 | 0.00 KM |
| Ball's Pond Place | £ 425,000 | 0 | 0.00 KM |
| Green Lanes | £ 0 | 0 | 0.00 KM |
| Park View | £ 0 | 0 | 0.00 KM |
Nearby Transport
| Name | NLC | TLC | Distance |
|---|---|---|---|
| Canonbury | 1441 | CNN | 0.89 KM |
| Dalston Kingsland | 1429 | DLK | 1.12 KM |
| Dalston Junction | 1443 | DLJ | 1.29 KM |
| Essex Road | 6004 | EXR | 1.80 KM |
| Haggerston | 1022 | HGG | 1.83 KM |
Nearby Listings
| Address | Price | Type | Score | Distance |
|---|---|---|---|---|
| Church Walk, N16, Stoke Newington, London, N16 | £ 550,000 | BUY | Unknown | 0.00 KM |
| Church Walk, Stoke Newington, London, N16 | £ 600,000 | BUY | 4 / 10 | 0.00 KM |
| Newington Green, London, N16 | £ 575,000 | BUY | 7 / 10 | 0.01 KM |
| Newington Green, London, N16 | £ 590,000 | BUY | 6 / 10 | 0.01 KM |
| Newington Green, London, N16 | £ 685,000 | BUY | Unknown | 0.03 KM |
Nearby Properties
| Address | Price | Distance |
|---|---|---|
| 36 Newington Green | £ 625,000 | 0.03 KM |
| 10 Albion Road | £ 467,500 | 0.05 KM |
| 22 Albion Road | £ 647,500 | 0.05 KM |
| 16a Albion Road | £ 1,097,000 | 0.05 KM |
| 2 Albion Road | £ 330,000 | 0.05 KM |