Gilbert & Rose says ..
Being sold with no onward chain, this home offers the perfect blend of comfort, flexibility, and convenience, making it an ideal choice for a wide range of buyers
Property Oracle says ..
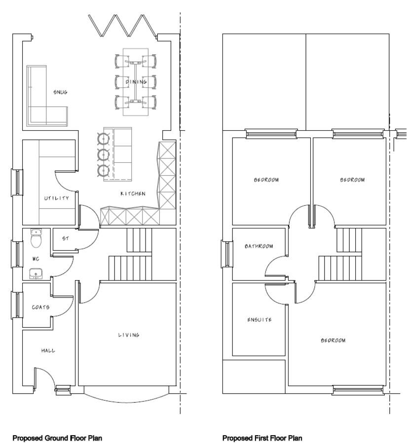
This is a three-bedroom semi-detached house located on Villa Road in Benfleet. The property benefits from a modern kitchen and bathroom. The property is located within close proximity to local schools and transportation links. The garden requires maintenance. The price is slightly above the average for the area, but is fair given the condition of the property.
Therefore, we give this property 6 / 10. *Disclaimer: This is our option and does constitute a recommendation or financial advice. Do your own research. *
- Price
- 7
- Condition
- 7
- Location
- 7
- Land
- 6
- Bedrooms
- 3
- Bathrooms
- 1
- Sqft (est)
- 693.00
The heatmap indicates the level of crime in the area. The color of the heatmap indicates the crime severity and recency.
Metrics Year-on-Year
- Average area value
- 375,667.00 £Decreased by 6.15 %
- Est sale value
- 259,182.00 £Increased by 15.08 %
- Average area rental value
- 1,270.00 £/moDecreased by 19.62 %
- Est letting value
- 693.00 £/moUnchanged by 0.00 %
- Est rental Yield
- 4.06 %Decreased by 14.35 %
- Crime Rate
- 3.00 %Unchanged by 0.00 %
Agent Activity
Gilbert & Rose created the listing.
Nearby Schools
| Name | Type | Ofsted | Distance |
|---|---|---|---|
| Kents Hill Junior School | Academy Converter | Good | 0.23 KM |
| Kents Hill Infant Academy | Academy Converter | 0.23 KM | |
| Holy Family Catholic Primary School | Academy Converter | 0.42 KM | |
| The Appleton School | Academy Converter | Good | 0.78 KM |
| South Benfleet Primary School | Academy Converter | Good | 0.82 KM |
Images
Nearby Streets
| Name | Average Price | Average Sqft | Distance |
|---|---|---|---|
| Saint Clements Road | £ 610,000 | 0 | 0.00 KM |
| Clarence Close | £ 475,000 | 0 | 0.00 KM |
| Gifford Road | £ 0 | 0 | 0.00 KM |
| London Road | £ 255,000 | 0 | 0.00 KM |
| Oakfield Close | £ 450,000 | 0 | 0.00 KM |
Nearby Transport
| Name | NLC | TLC | Distance |
|---|---|---|---|
| Benfleet | 7439 | BEF | 1.85 KM |
| Rayleigh | 6884 | RLG | 5.53 KM |
| Pitsea | 7452 | PSE | 5.86 KM |
| Battlesbridge | 6870 | BLB | 7.20 KM |
| Wickford | 6891 | WIC | 7.53 KM |
Nearby Listings
| Address | Price | Type | Score | Distance |
|---|---|---|---|---|
| Villa Road, Benfleet, SS7 | £ 400,000 | BUY | 6 / 10 | 0.00 KM |
| Kents Hill Road, Benfleet | £ 600,000 | BUY | 7 / 10 | 0.06 KM |
| Tamarisk, Benfleet | £ 650,000 | BUY | 7 / 10 | 0.09 KM |
| Kents Hill Road, Benfleet, SS7 | £ 375,000 | BUY | 7 / 10 | 0.09 KM |
| * PLANS PASSED * Villa Road, Benfleet | £ 365,000 | BUY | 6 / 10 | 0.10 KM |
Nearby Properties
| Address | Price | Distance |
|---|---|---|
| 126 Villa Road | £ 390,000 | 0.01 KM |
| 101 Villa Road | £ 535,000 | 0.01 KM |
| 105 Villa Road | £ 385,000 | 0.02 KM |
| 107 Villa Road | £ 340,000 | 0.02 KM |
| 103 Villa Road | £ 165,000 | 0.02 KM |