Wokingham Road, Bracknell, Berkshire, RG42
By Prospect Estate Agency
£ 250,000
Reviews
3 out of 5 stars
Prospect Estate Agency says ..
INVESTORS ONLY - BEING SOLD WITH TENANT IN SITU Located within easy reach of Bracknell town centre this modern two bedroom second floor apartment is in the popular development, Blu Bracknell. Blu Bracknell was developed in 2019, so the apartment still has several modern features throug...
Property Oracle says ..
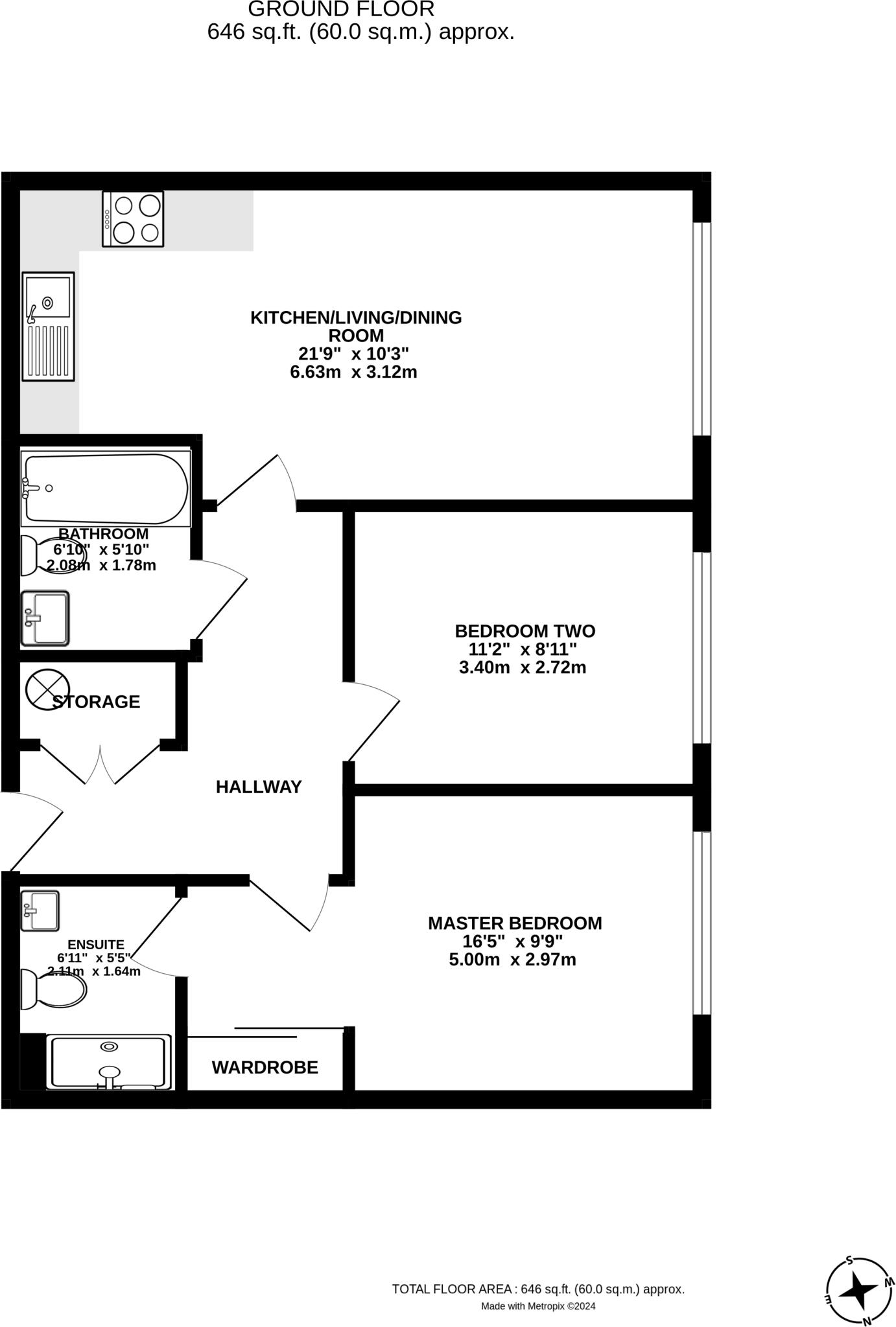
The property is a two-bedroom, two-bathroom apartment situated in the Priestwood And Garth locality of Bracknell. The apartment’s proximity to Bracknell train station (1.70 KM) offers convenient access to commuting routes. Several primary schools are within a reasonable distance, including Meadow Vale Primary School (0.56 KM) which has a ‘Good’ Ofsted rating. The area also benefits from nearby shops and amenities, although specific details are not provided. The images suggest the apartment is in excellent condition, modern, and well-maintained. The kitchen and bathrooms appear recently updated or new. There is no evidence of wear and tear or the need for renovation. The plot size is 646 sqft which is relatively small, more typical of an apartment complex. While there is communal green space visible in the images, the property itself does not appear to have a private garden. The list price of £250,000 is significantly lower than the average price of £440,000 for the area. However, the average price per sqft of £423 cannot be used to assess value due to the lack of sqft information for the subject property and the nearby properties. The nearby apartment listings range from £187,500 to £330,000, suggesting the list price falls within a reasonable range, considering its apparent condition and location. Further investigation into the specific size of the apartment would allow for a more precise price evaluation.
Therefore, we give this property 7 / 10. *Disclaimer: This is our option and does constitute a recommendation or financial advice. Do your own research. *
- Price
- 7
- Condition
- 10
- Location
- 8
- Land
- 3
- Bedrooms
- 2
- Bathrooms
- 2
- Lot (est)
- 646.00
The heatmap indicates the level of crime in the area. The color of the heatmap indicates the crime severity and recency.
Metrics Year-on-Year
- Average area value
- 328,333.00 £Decreased by 18.16 %
- Average area rental value
- 1,438.00 £/moDecreased by 3.68 %
- Est rental Yield
- 5.26 %Increased by 17.67 %
- Crime Rate
- 10.00 %Unchanged by 0.00 %
Agent Activity
Prospect Estate Agency created the listing.
Nearby Schools
| Name | Type | Ofsted | Distance |
|---|---|---|---|
| The Willows And Maples Children'S Centre | Children's Centre | 0.40 KM | |
| Meadow Vale Primary School | Community School | Good | 0.56 KM |
| Wildridings Primary School | Community School | Requires improvement | 1.38 KM |
| King'S Academy Binfield | Free Schools | 1.47 KM | |
| Kennel Lane School | Community Special School | Good | 1.55 KM |
Images
Nearby Streets
| Name | Average Price | Average Sqft | Distance |
|---|---|---|---|
| Windmill Road | £ 0 | 0 | 0.00 KM |
| Priestwood Court Road | £ 0 | 0 | 0.00 KM |
| Manor Close | £ 0 | 0 | 0.00 KM |
| Turnpike Road | £ 0 | 0 | 0.00 KM |
| Western Roundabout | £ 400,000 | 0 | 0.00 KM |
Nearby Transport
| Name | NLC | TLC | Distance |
|---|---|---|---|
| Bracknell | 5693 | BCE | 1.70 KM |
| Martins Heron | 5692 | MAO | 4.78 KM |
| Crowthorne | 5628 | CRN | 8.21 KM |
| Wokingham | 5696 | WKM | 8.48 KM |
| Sandhurst (Berks) | 5646 | SND | 9.01 KM |
Nearby Listings
| Address | Price | Type | Score | Distance |
|---|---|---|---|---|
| Wokingham Road, Bracknell, Berkshire, RG42 | £ 250,000 | BUY | 6 / 10 | 0.00 KM |
| Blu Bracknell, Wokingham Road, Bracknell, RG42 | £ 229,000 | BUY | 6 / 10 | 0.02 KM |
| Blu Bracknell, Wokingham Road, Bracknell, RG42 | £ 283,000 | BUY | 6 / 10 | 0.02 KM |
| Blu Bracknell, Wokingham Road, Bracknell, RG42 | £ 285,000 | BUY | 5 / 10 | 0.02 KM |
| Wokingham Road, Bracknell, Berkshire, RG42 | £ 275,000 | BUY | 6 / 10 | 0.02 KM |
Nearby Properties
| Address | Price | Distance |
|---|---|---|
| 2 Fanes Close | £ 285,000 | 0.08 KM |
| 5 Fanes Close | £ 165,000 | 0.08 KM |
| 10 Fanes Close | £ 115,000 | 0.08 KM |
| 70 Lindenhill Road | £ 249,950 | 0.10 KM |
| 68 Lindenhill Road | £ 345,000 | 0.10 KM |