FI
Garth Street, Hanley , Stoke-on-Trent
By Findahome Online Ltd
£ 70,000
Reviews
3 out of 5 stars
Findahome Online Ltd says ..
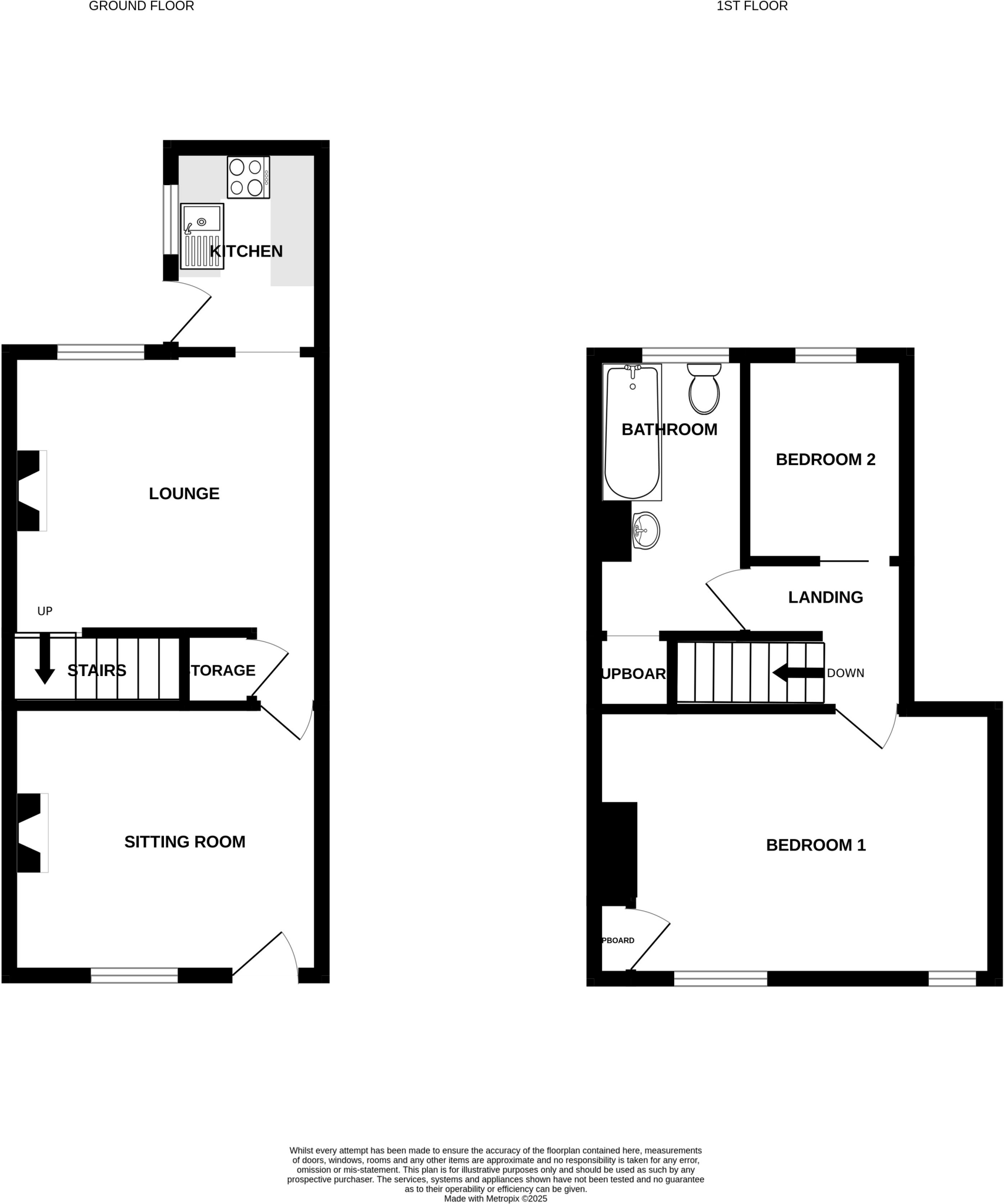
Findahome Online are pleased to present this Two Bedroom Mid Terrace House, ideally located in Hanley within easy walking distance of the city centre shops and amenities. Offered with No Upward Chain, the property offers excellent value for money and is an ideal opportunity for first-time buyers ...
Property Oracle says ..
Therefore, we give this property 6 / 10. *Disclaimer: This is our option and does constitute a recommendation or financial advice. Do your own research. *
- Price
- 8
- Condition
- 5
- Location
- 7
- Land
- 5
- Bedrooms
- 2
- Bathrooms
- 1
The heatmap indicates the level of crime in the area. The color of the heatmap indicates the crime severity and recency.
Metrics Year-on-Year
- Average area value
- 210,000.00 £Increased by 54.67 %
- Average area rental value
- 699.00 £/moDecreased by 31.34 %
- Est rental Yield
- 3.99 %Decreased by 55.67 %
- Crime Rate
- 8.00 %Unchanged by 0.00 %
from 135,772.00 £
from 1,018.00 £/mo
from 9.00 %
from 8.00 %
Agent Activity
Findahome Online Ltd created the listing.
Nearby Schools
| Name | Type | Ofsted | Distance |
|---|---|---|---|
| Hope Children'S Centre | Children's Centre | 0.01 KM | |
| Waterside Primary School | Academy Converter | 0.42 KM | |
| Hanley St Luke'S Cofe Aided Primary School | Voluntary Aided School | Requires improvement | 0.49 KM |
| Grove Academy | Academy Converter | 0.69 KM | |
| Northwood Broom Academy | Academy Converter | 0.81 KM |
Images
Nearby Streets
| Name | Average Price | Average Sqft | Distance |
|---|---|---|---|
| Old Hall Street | £ 0 | 0 | 0.00 KM |
| Birch Terrace | £ 0 | 0 | 0.00 KM |
| Dundas Street | £ 105,000 | 0 | 0.00 KM |
| Picton Street | £ 0 | 0 | 0.00 KM |
| Stubbs Lane | £ 0 | 0 | 0.00 KM |
Nearby Transport
| Name | NLC | TLC | Distance |
|---|---|---|---|
| Stoke-On-Trent | 1314 | SOT | 2.37 KM |
| Longport | 1305 | LPT | 5.36 KM |
| Longton | 1306 | LGN | 5.51 KM |
Nearby Listings
| Address | Price | Type | Score | Distance |
|---|---|---|---|---|
| Garth Street, Hanley , Stoke-on-Trent | £ 70,000 | BUY | 6 / 10 | 0.00 KM |
| Car Park, 18-22 Hillcrest Street, Hanley, Stoke-On-Trent, ST1 2AB | £ 175,000 | BUY | 3 / 10 | 0.06 KM |
| 15-17 Huntbach Street, Stoke-On-Trent, Staffordshire, ST1 2BN | £ 130,000 | BUY | 3 / 10 | 0.07 KM |
| 15 Huntbach Street, Stoke-On-Trent, Staffordshire, ST1 2BN | £ 95,000 | BUY | 3 / 10 | 0.07 KM |
| Dyke Street, Stoke-on-Trent, Staffordshire, ST1 | £ 110,000 | BUY | 6 / 10 | 0.14 KM |
Nearby Properties
| Address | Price | Distance |
|---|---|---|
| 6 Garth Street | £ 64,000 | 0.00 KM |
| 10 Garth Street | £ 85,500 | 0.02 KM |
| 12 Garth Street | £ 42,500 | 0.02 KM |
| 4 Garth Street | £ 48,000 | 0.02 KM |
| 2 Garth Street | £ 64,000 | 0.02 KM |