Teignmouth Road, Willesden Green, NW2
By Ellis & Co
£ 425,000
Reviews
3 out of 5 stars
Ellis & Co says ..
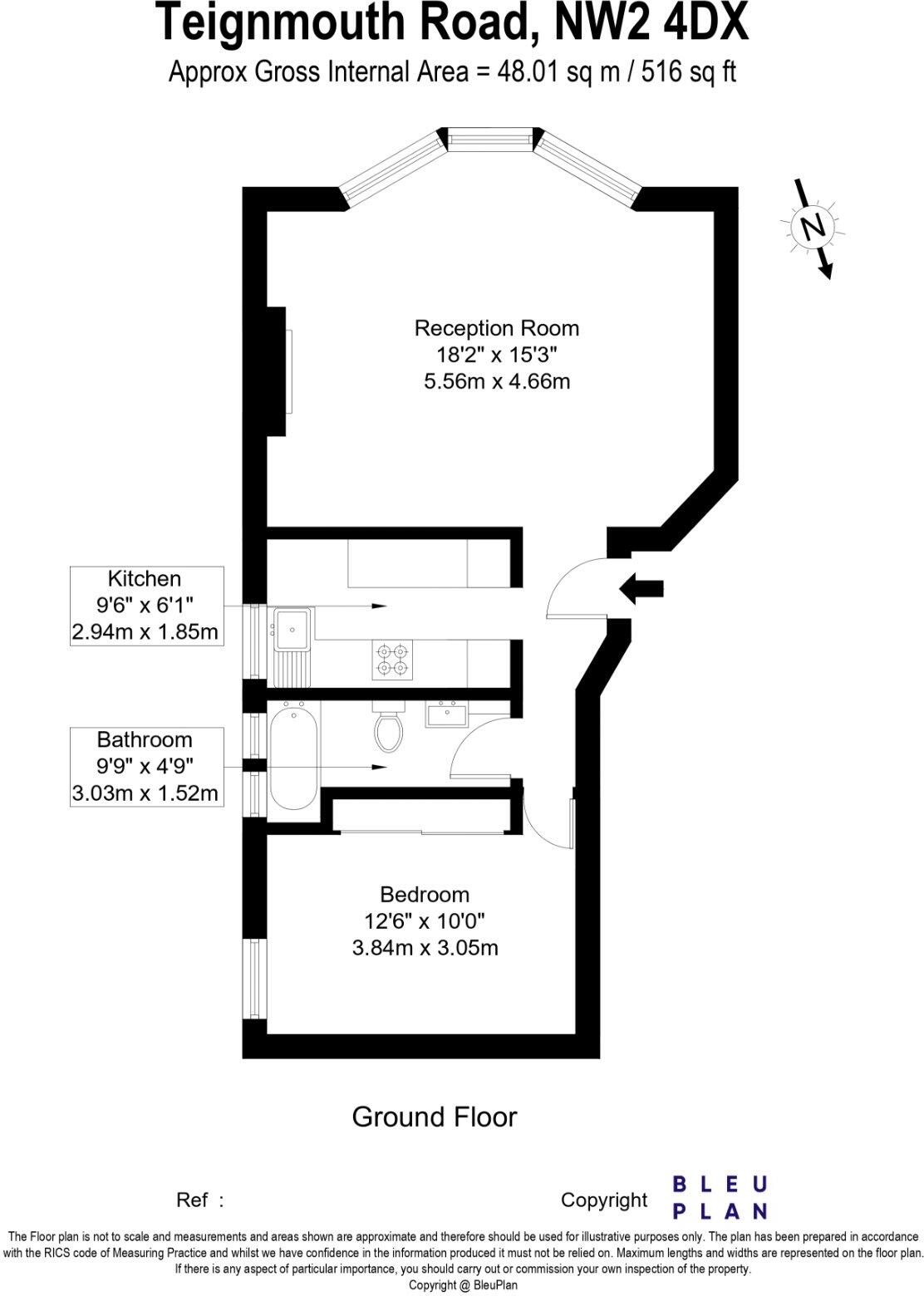
Ellis & Co are delighted to bring to the market this character one double bedroom ground floor converted flat with direct access to a communal garden. Other benefits include a chain free sale and Share of the freehold. In brief the property is spanning 516sq ft on living space and ...
Property Oracle says ..
This property is a one bedroom apartment located on Teignmouth Road in Willesden Green, NW2. The apartment is situated in a desirable area with good transport links and nearby schools. The property benefits from a good-sized garden. While the list price is below the average price for the area, the significantly smaller size of the apartment compared to the average should be considered. More information on the condition of the property would be needed to provide a more complete assessment.
Therefore, we give this property 7 / 10. *Disclaimer: This is our option and does constitute a recommendation or financial advice. Do your own research. *
- Price
- 6
- Condition
- 7
- Location
- 9
- Land
- 8
- Bedrooms
- 1
- Bathrooms
- 1
- Sqft (est)
- 497.00
- Lot (est)
- 516.00
The heatmap indicates the level of crime in the area. The color of the heatmap indicates the crime severity and recency.
Metrics Year-on-Year
- Average area value
- 1,318,000.00 £Increased by 70.66 %
- Est sale value
- 733,075.00 £Increased by 119.49 %
- Average area rental value
- 1,474.00 £/moDecreased by 27.60 %
- Est letting value
- 497.00 £/moUnchanged by 0.00 %
- Est rental Yield
- 1.34 %Decreased by 57.59 %
- Crime Rate
- 2.00 %Unchanged by 0.00 %
Agent Activity
Ellis & Co created the listing.
Nearby Schools
| Name | Type | Ofsted | Distance |
|---|---|---|---|
| Anson Primary School | Community School | Good | 0.67 KM |
| North West London Jewish Day School | Academy Converter | Good | 0.72 KM |
| The Mulberry House School | Other Independent School | 0.79 KM | |
| Brondesbury College London | Other Independent School | Outstanding | 0.90 KM |
| Malorees Junior School | Foundation School | Good | 0.95 KM |
Images
Nearby Streets
| Name | Average Price | Average Sqft | Distance |
|---|---|---|---|
| Sylvan Grove | £ 0 | 0 | 0.00 KM |
| Mapesbury Road | £ 0 | 0 | 0.00 KM |
| Clovelly Court | £ 0 | 0 | 0.00 KM |
| Brondesbury Park | £ 2,583,333 | 0 | 0.00 KM |
| Brondesbury Park | £ 0 | 0 | 0.00 KM |
Nearby Transport
| Name | NLC | TLC | Distance |
|---|---|---|---|
| Cricklewood | 1519 | CRI | 0.93 KM |
| Brondesbury Park | 1438 | BSP | 1.16 KM |
| Brondesbury | 1437 | BSY | 1.45 KM |
| Kensal Rise | 1448 | KNR | 1.86 KM |
| Queens Park (London) | 1419 | QPW | 2.09 KM |
Nearby Listings
| Address | Price | Type | Score | Distance |
|---|---|---|---|---|
| Teignmouth Road, Mapesbury, London, NW2 | £ 575,000 | BUY | 7 / 10 | 0.00 KM |
| Teignmouth Road, Willesden Green, NW2 | £ 425,000 | BUY | 7 / 10 | 0.00 KM |
| Teignmouth Road, Willesden Green, London, NW2 | £ 400,000 | BUY | Unknown | 0.03 KM |
| St Gabriels Road, Mapesbury Estate, London, NW2 | £ 700,000 | BUY | 8 / 10 | 0.11 KM |
| St Gabriels Road, Willesden Green, London, NW2 | £ 1,000,000 | BUY | Unknown | 0.11 KM |
Nearby Properties
| Address | Price | Distance |
|---|---|---|
| 64a Teignmouth Road | £ 880,000 | 0.01 KM |
| 72 Teignmouth Road | £ 1,125,000 | 0.01 KM |
| 82b Teignmouth Road | £ 553,000 | 0.01 KM |
| 82a Teignmouth Road | £ 250,000 | 0.01 KM |
| 82c Teignmouth Road | £ 521,250 | 0.01 KM |