ROWLEY REGIS, Regis Road
By Taylors Estate Agents
£ 220,000
Reviews
2 out of 5 stars
Taylors Estate Agents says ..
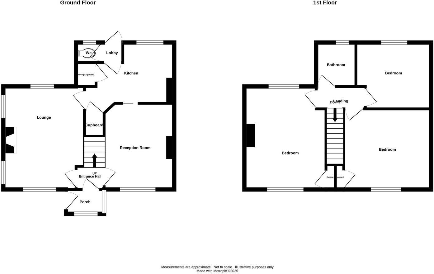
A double fronted semi detached home well positioned for Blackheath shops and the nearby railway station. In need of some modernisation but having gas central heating with a relatively new Worcester boiler and PVC double glazing [some need replacing]. With NO UPWARD CHAIN this property offers c...
Property Oracle says ..
This semi-detached property in Rowley Regis is listed at £220,000. The property requires modernisation and is in need of some repair. The kitchen has recently been updated, however, the rest of the property shows its age. The garden is overgrown and requires attention. While the location is convenient to local schools and transport links, the average house price in the area is significantly higher, suggesting the asking price may be slightly inflated for the condition of the property. More information regarding the square footage would allow for a more accurate assessment of value.
Therefore, we give this property 4 / 10. *Disclaimer: This is our option and does constitute a recommendation or financial advice. Do your own research. *
- Price
- 5
- Condition
- 4
- Location
- 7
- Land
- 3
- Bedrooms
- 3
- Bathrooms
- 1
The heatmap indicates the level of crime in the area. The color of the heatmap indicates the crime severity and recency.
Metrics Year-on-Year
- Average area value
- 513,942.00 £Decreased by 2.28 %
- Average area rental value
- 2,061.00 £/moIncreased by 1.93 %
- Est rental Yield
- 4.81 %Increased by 4.34 %
- Crime Rate
- 11.00 %Unchanged by 0.00 %
Agent Activity
Taylors Estate Agents created the listing.
Nearby Schools
| Name | Type | Ofsted | Distance |
|---|---|---|---|
| Blackheath Primary School | Community School | Good | 0.36 KM |
| Young Parents Sure Start Children'S Centre | Children's Centre | 0.41 KM | |
| Highfields Primary School | Community School | Good | 0.82 KM |
| St Michael'S Church Of England High School | Voluntary Aided School | Good | 1.05 KM |
| Rowley Hall Primary School | Foundation School | Requires improvement | 1.29 KM |
Images
Nearby Streets
| Name | Average Price | Average Sqft | Distance |
|---|---|---|---|
| Carlyle Road | £ 0 | 0 | 0.00 KM |
| Central Avenue | £ 0 | 0 | 0.00 KM |
| Long Lane | £ 0 | 0 | 0.00 KM |
| The Grove | £ 0 | 0 | 0.00 KM |
| Horner Way | £ 0 | 0 | 0.00 KM |
Nearby Transport
| Name | NLC | TLC | Distance |
|---|---|---|---|
| Rowley Regis | 4606 | ROW | 1.09 KM |
| Old Hill | 4641 | OHL | 1.88 KM |
| Langley Green | 4607 | LGG | 4.34 KM |
| Sandwell And Dudley | 1149 | SAD | 4.71 KM |
| Dudley Port | 1212 | DDP | 5.30 KM |
Nearby Listings
| Address | Price | Type | Score | Distance |
|---|---|---|---|---|
| ROWLEY REGIS, Regis Road | £ 220,000 | BUY | 4 / 10 | 0.00 KM |
| Birmingham Road, Rowley Regis, Sandwell, B65 9AY | £ 135,000 | BUY | 6 / 10 | 0.08 KM |
| Limes Avenue, Rowley Regis, West Midlands, B65 | £ 235,000 | BUY | 6 / 10 | 0.09 KM |
| Limes Avenue, ROWLEY REGIS | £ 240,000 | BUY | 6 / 10 | 0.09 KM |
| Birmingham Road, Rowley Regis | £ 285,000 | BUY | 7 / 10 | 0.10 KM |
Nearby Properties
| Address | Price | Distance |
|---|---|---|
| 5 Regis Road | £ 131,000 | 0.01 KM |
| 95 Birmingham Road | £ 137,000 | 0.07 KM |
| 93 Birmingham Road | £ 95,500 | 0.07 KM |
| 7 Limes Avenue | £ 95,000 | 0.09 KM |
| 2 Limes Avenue | £ 122,500 | 0.09 KM |