Hiltons Estates says ..
Hiltons Estates present this larger than average home located in the heart of Southall! The property boasts a spacious lounge, large kitchen, family bathroom and ample storage facilities on the ground floor. Further benefits include a spacious and paved garden with brick build outbuilding perfect...
Property Oracle says ..
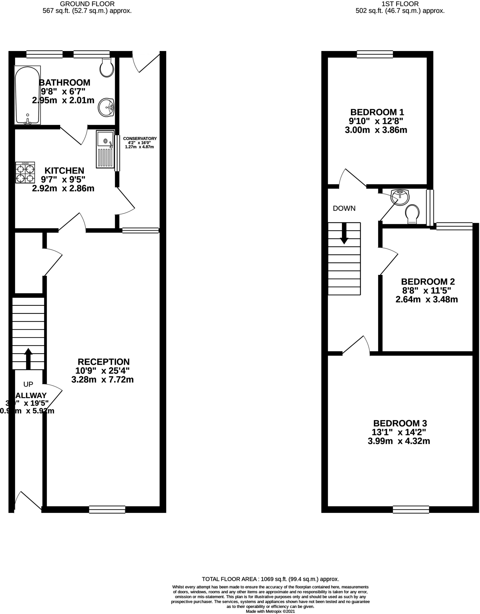
This three-bedroom terraced house located at 54 Florence Road, Southall Green, Ealing, is presented for sale at £495,000. The property offers a reasonably spacious layout with a living room, kitchen, bathroom, and three bedrooms. The location in Southall Green offers relatively good access to transport links via Southall train station and nearby schools with a good and outstanding Ofsted rating. However, the property shows its age and would benefit from extensive modernisation and some minor repairs. The garden, while present, is small and requires considerable work. A potential buyer should factor in the costs associated with improvements. While the price appears relatively competitive considering comparable properties in the local area, the need for renovation needs careful consideration before deciding on a purchase. Further detailed surveys and property inspections are recommended to ascertain the full extent of refurbishment costs and potential risks.
Therefore, we give this property 5 / 10. *Disclaimer: This is our option and does constitute a recommendation or financial advice. Do your own research. *
- Price
- 7
- Condition
- 5
- Location
- 7
- Land
- 3
- Bedrooms
- 3
- Bathrooms
- 1
- Sqft (est)
- 1,069.93
The heatmap indicates the level of crime in the area. The color of the heatmap indicates the crime severity and recency.
Metrics Year-on-Year
- Average area value
- 435,278.00 £Increased by 19.00 %
- Est sale value
- 594,881.08 £Decreased by 1.59 %
- Average area rental value
- 1,959.00 £/moIncreased by 0.67 %
- Est letting value
- 2,139.86 £/moDecreased by 33.33 %
- Est rental Yield
- 5.40 %Decreased by 15.36 %
- Crime Rate
- 4.00 %Unchanged by 0.00 %
Agent Activity
Hiltons Estates created the listing.
Nearby Schools
| Name | Type | Ofsted | Distance |
|---|---|---|---|
| Greenfields Nursery School And Children'S Centre | Local Authority Nursery School | Outstanding | 0.18 KM |
| Greenfields Children'S Centre | Children's Centre | 0.20 KM | |
| Featherstone High School | Academy Converter | Outstanding | 0.21 KM |
| Clifton Primary School | Community School | Good | 0.70 KM |
| Featherstone Primary And Nursery School | Community School | Good | 0.75 KM |
Images
Nearby Streets
| Name | Average Price | Average Sqft | Distance |
|---|---|---|---|
| Leonard Road | £ 0 | 0 | 0.00 KM |
| Belmont Avenue | £ 0 | 0 | 0.00 KM |
| Williams Road | £ 0 | 0 | 0.00 KM |
| King Street | £ 0 | 0 | 0.00 KM |
| Williams Road | £ 0 | 0 | 0.00 KM |
Nearby Transport
| Name | NLC | TLC | Distance |
|---|---|---|---|
| Southall | 3187 | STL | 1.38 KM |
| Hayes And Harlington | 3186 | HAY | 3.56 KM |
| Hounslow | 5563 | HOU | 5.03 KM |
| Hanwell | 3191 | HAN | 5.74 KM |
| Feltham | 5559 | FEL | 6.12 KM |
Nearby Listings
| Address | Price | Type | Score | Distance |
|---|---|---|---|---|
| Florence Road, Southall | £ 550,000 | BUY | 6 / 10 | 0.01 KM |
| Florence Road, Southall | £ 535,000 | BUY | 6 / 10 | 0.01 KM |
| Leonard Road, Southall | £ 500,000 | BUY | 6 / 10 | 0.16 KM |
| Western Road, Southall, UB2 | £ 225,000 | BUY | 5 / 10 | 0.18 KM |
| Tachbrook Road, Southall | £ 540,000 | BUY | 6 / 10 | 0.21 KM |
Nearby Properties
| Address | Price | Distance |
|---|---|---|
| 58 Florence Road | £ 213,000 | 0.00 KM |
| 47 Florence Road | £ 142,500 | 0.00 KM |
| 52 Florence Road | £ 400,000 | 0.00 KM |
| 67 Florence Road | £ 243,000 | 0.00 KM |
| 77 Florence Road | £ 205,000 | 0.00 KM |