Violet Hill Road, Stowmarket
By Tennens Properties Ltd
£ 1,250,000
Reviews
3 out of 5 stars
Tennens Properties Ltd says ..
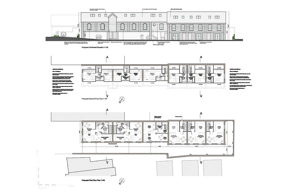
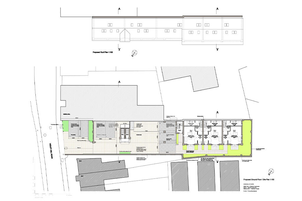
Building plot available in the centre of Stowmarket with full planning permission in place - Childers Court has planning approved for 13 town houses.
Property Oracle says ..
The property is a development opportunity for 13 townhouses on Violet Hill Road in Stowmarket, Suffolk. The location is close to Stowmarket train station (0.83km) and several schools, including Chilton Community Primary School (0.48km). The list price is £1,250,000. Comparable nearby land sales range from £60,000 to £1,200,000, however, these do not provide sufficient information to accurately assess the value of this particular plot. Nearby terraced houses sell for significantly less, ranging from £115,000 to £173,000. The average house price in the area is £530,332, with an average price per sqft of £604. The lack of sqft information for the subject property makes a precise price comparison challenging. More data is needed for a comprehensive valuation.
Therefore, we give this property 7 / 10. *Disclaimer: This is our option and does constitute a recommendation or financial advice. Do your own research. *
- Price
- 0
- Condition
- 0
- Location
- 7
- Land
- 0
- Bedrooms
- 0
- Bathrooms
- 0
The heatmap indicates the level of crime in the area. The color of the heatmap indicates the crime severity and recency.
Metrics Year-on-Year
- Average area value
- 489,766.00 £Increased by 6.36 %
- Average area rental value
- 2,264.00 £/moIncreased by 11.14 %
- Est rental Yield
- 5.55 %Increased by 4.52 %
- Crime Rate
- 9.00 %Unchanged by 0.00 %
Agent Activity
Tennens Properties Ltd created the listing.
Nearby Schools
| Name | Type | Ofsted | Distance |
|---|---|---|---|
| Acorn Cottage The Lodge | Other Independent Special School | Requires improvement | 0.35 KM |
| Gable End | Other Independent Special School | Good | 0.35 KM |
| Chilton Community Primary School | Academy Converter | 0.48 KM | |
| Acorns Children'S Centre | Children's Centre | 0.53 KM | |
| Abbot'S Hall Community Primary School | Academy Converter | 0.56 KM |
Images
Nearby Streets
| Name | Average Price | Average Sqft | Distance |
|---|---|---|---|
| Market Place | £ 0 | 0 | 0.00 KM |
| Alexander Mews | £ 0 | 0 | 0.00 KM |
| Crown Street | £ 232,500 | 0 | 0.00 KM |
| Page's Close | £ 0 | 0 | 0.00 KM |
| Prentice Road | £ 0 | 0 | 0.00 KM |
Nearby Transport
| Name | NLC | TLC | Distance |
|---|---|---|---|
| Stowmarket | 7355 | SMK | 0.83 KM |
| Needham Market | 7354 | NMT | 8.06 KM |
Nearby Listings
| Address | Price | Type | Score | Distance |
|---|---|---|---|---|
| Violet Hill Road, Stowmarket | £ 1,250,000 | BUY | 7 / 10 | 0.00 KM |
| Violet Hill Road, Stowmarket | £ 975,000 | BUY | 8 / 10 | 0.00 KM |
| Violet Hill Road, Stowmarket, Suffolk, IP14 | £ 650,000 | BUY | 7 / 10 | 0.00 KM |
| Violet Hill Road, Stowmarket, Suffolk, IP14 | £ 350,000 | BUY | 7 / 10 | 0.00 KM |
| Violet Hill Road IP14 1NE | £ 975,000 | BUY | 7 / 10 | 0.00 KM |
Nearby Properties
| Address | Price | Distance |
|---|---|---|
| 7 Violet Hill Road | £ 147,000 | 0.02 KM |
| 15 Violet Hill Road | £ 173,000 | 0.02 KM |
| 11 Violet Hill Road | £ 120,000 | 0.02 KM |
| 9 Violet Hill Road | £ 115,000 | 0.02 KM |
| 13 Violet Hill Road | £ 165,000 | 0.02 KM |