CH
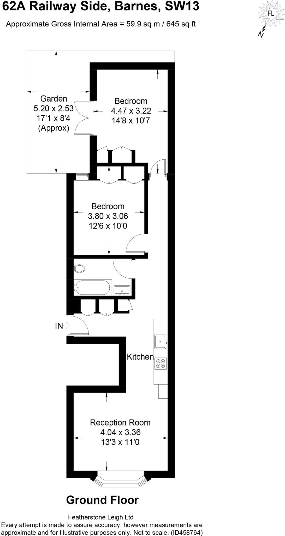
Railway Side, Barnes, SW13
By Chestertons Estate Agents
£ 2,400
Chestertons Estate Agents says ..
A very well-presented ground floor conversion flat in the sought-after 'Little Chelsea' area of Barnes. The property boasts two double bedrooms, a sunny private garden and proximity to Barnes Primary School and Barnes Bridge Station.
- Bedrooms
- 2
- Bathrooms
- 1
The heatmap indicates the level of crime in the area. The color of the heatmap indicates the crime severity and recency.
Metrics Year-on-Year
- Average area value
- 754,167.00 £Decreased by 18.85 %
- Average area rental value
- 3,542.00 £/moIncreased by 18.22 %
- Est rental Yield
- 5.64 %Increased by 45.74 %
- Crime Rate
- 6.00 %Unchanged by 0.00 %
from 929,312.00 £
from 2,996.00 £/mo
from 3.87 %
from 6.00 %
Agent Activity
Chestertons Estate Agents created the listing.
Nearby Schools
| Name | Type | Ofsted | Distance |
|---|---|---|---|
| Barnes Primary School | Community School | Outstanding | 0.18 KM |
| Paddock School | Community Special School | Outstanding | 0.65 KM |
| St Osmund'S Catholic Primary School | Voluntary Aided School | Good | 0.68 KM |
| Roehampton Gate School | Other Independent Special School | Good | 0.81 KM |
| Roehampton Hospital School | Other Independent School | 0.81 KM |
Images
Nearby Streets
| Name | Average Price | Average Sqft | Distance |
|---|---|---|---|
| Brook Gardens | £ 0 | 0 | 0.00 KM |
| St John's Grove | £ 0 | 0 | 0.00 KM |
| Buxton Road | £ 0 | 0 | 0.00 KM |
| Small Profits Dock | £ 0 | 0 | 0.00 KM |
| Dukes Meadows Footbridge | £ 0 | 0 | 0.00 KM |
Nearby Transport
| Name | NLC | TLC | Distance |
|---|---|---|---|
| Barnes Bridge | 5580 | BNI | 0.44 KM |
| Barnes | 5551 | BNS | 0.86 KM |
| Mortlake | 5600 | MTL | 1.96 KM |
| Chiswick | 5583 | CHK | 2.40 KM |
| Putney | 5603 | PUT | 3.77 KM |
Nearby Listings
| Address | Price | Type | Score | Distance |
|---|---|---|---|---|
| Railway Side, Barnes, SW13 | £ 2,400 | RENT | Unknown | 0.00 KM |
| Railway Side, Barnes, SW13 | £ 1,950 | RENT | Unknown | 0.01 KM |
| Railway Side, Barnes, London, SW13 | £ 2,400 | RENT | Unknown | 0.01 KM |
| 69 Railway Side, London, SW13 | £ 1,950 | RENT | Unknown | 0.01 KM |
| Railway Side, Barnes, London, SW13 | £ 2,400 | RENT | Unknown | 0.03 KM |
Nearby Properties
| Address | Price | Distance |
|---|---|---|
| 68 Railway Side | £ 785,000 | 0.01 KM |
| 60 Railway Side | £ 326,000 | 0.01 KM |
| 64 Railway Side | £ 830,000 | 0.02 KM |
| 59 Railway Side | £ 690,000 | 0.02 KM |
| 67 Railway Side | £ 670,000 | 0.02 KM |