Warwick Street, Haslingden, BB4
By The Auction Group Limited
£ 100,000
Reviews
2 out of 5 stars
The Auction Group Limited says ..
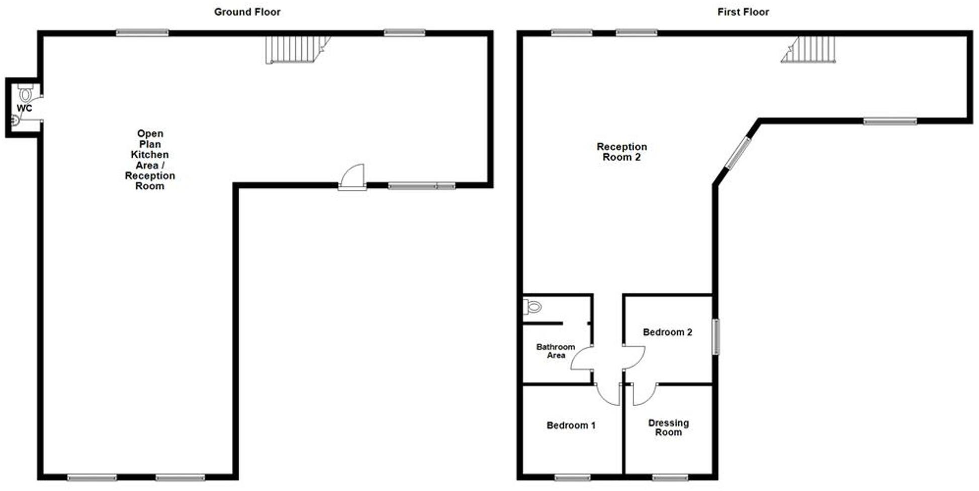
PERFECT INVESTMENT OPPORTUNITYTo be sold via online auction - powered by The Auction GroupWelcome to this perfect investment property located in the picturesque area of Haslingden, Rossendale.
Property Oracle says ..
This is a four-bedroom terraced property in Haslingden, Lancashire, that requires complete renovation. The property’s condition is very poor, with significant work needed both inside and out. While the location offers proximity to schools and local amenities, the state of disrepair is a major drawback. However, the asking price reflects the condition, presenting an opportunity for investors or those willing to undertake a substantial renovation project. The property offers a large square footage compared to other properties in the area.
Therefore, we give this property 4 / 10. *Disclaimer: This is our option and does constitute a recommendation or financial advice. Do your own research. *
- Price
- 8
- Condition
- 1
- Location
- 6
- Land
- 3
- Bedrooms
- 4
- Bathrooms
- 0
- Sqft (est)
- 1,450.00
The heatmap indicates the level of crime in the area. The color of the heatmap indicates the crime severity and recency.
Metrics Year-on-Year
- Average area value
- 219,167.00 £Increased by 35.66 %
- Est sale value
- 352,350.00 £Increased by 52.83 %
- Average area rental value
- 795.00 £/moDecreased by 8.09 %
- Est letting value
- 0.00 £/mo
- Est rental Yield
- 4.35 %Decreased by 32.35 %
- Crime Rate
- 29.00 %Unchanged by 0.00 %
Agent Activity
The Auction Group Limited created the listing.
Nearby Schools
| Name | Type | Ofsted | Distance |
|---|---|---|---|
| Haslingden Community Link & Children'S Centre | Children's Centre | 0.21 KM | |
| Haslingden Primary School | Foundation School | Good | 0.47 KM |
| Haslingden St James Church Of England Primary School | Voluntary Aided School | Good | 0.65 KM |
| Hillside Nursery School | Local Authority Nursery School | Good | 0.68 KM |
| St Mary'S Roman Catholic Primary School, Haslingden | Voluntary Aided School | Outstanding | 0.76 KM |
Images
Nearby Streets
| Name | Average Price | Average Sqft | Distance |
|---|---|---|---|
| Bury Road | £ 0 | 0 | 0.00 KM |
| Maple Avenue | £ 85,000 | 0 | 0.00 KM |
| Back Lee Street | £ 0 | 0 | 0.00 KM |
| Northcote Street | £ 0 | 0 | 0.00 KM |
| Ratcliffe Street | £ 0 | 0 | 0.00 KM |
Nearby Transport
| Name | NLC | TLC | Distance |
|---|---|---|---|
| Accrington | 2552 | ACR | 7.48 KM |
| Huncoat | 2558 | HCT | 7.90 KM |
| Hapton | 2557 | HPN | 8.47 KM |
| Church And Oswaldtwistle | 2556 | CTW | 9.18 KM |
| Rose Grove | 2722 | RSG | 9.94 KM |
Nearby Listings
| Address | Price | Type | Score | Distance |
|---|---|---|---|---|
| Warwick Street, Haslingden, BB4 | £ 100,000 | BUY | 4 / 10 | 0.00 KM |
| Warwick Street, Haslingden, Rossendale, BB4 | £ 169,500 | BUY | Unknown | 0.02 KM |
| Warwick Street, Haslingden | £ 125,000 | BUY | Unknown | 0.05 KM |
| Wells Street, Haslingden, Rossendale | £ 200,000 | BUY | 6 / 10 | 0.06 KM |
| Clegg Street, Haslingden, Rossendale, BB4 | £ 149,950 | BUY | 6 / 10 | 0.07 KM |
Nearby Properties
| Address | Price | Distance |
|---|---|---|
| 38 Warwick Street | £ 137,500 | 0.02 KM |
| 16 Warwick Street | £ 115,000 | 0.02 KM |
| 22 Warwick Street | £ 45,000 | 0.02 KM |
| 42 Warwick Street | £ 85,000 | 0.02 KM |
| 12 Warwick Street | £ 75,000 | 0.02 KM |