Little Bethel, 79 High Street, Coldstream, TD12 4AE
By Edwin Thompson
£ 160,000
Reviews
2 out of 5 stars
Edwin Thompson says ..
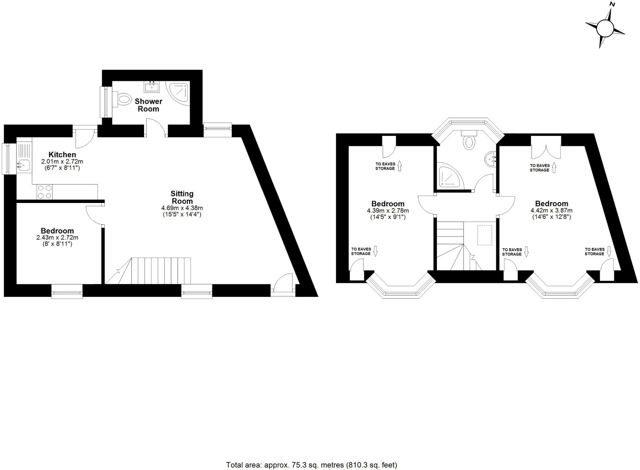
Little Bethel is a three bedroom detached cottage in the heart popular border town of Coldstream. The property is in good order throughout and offers well-appointed, spacious living accommodation.
Property Oracle says ..
Little Bethel, a three-bedroom detached cottage located on High Street in Coldstream, Scottish Borders, is currently listed for £160,000. The property’s location in the town centre offers easy access to local amenities. The interior of the cottage presents a generally well-maintained and presented living space. However, based on the provided photographs, minor modernisation and or upgrades might enhance its appeal. The lack of information regarding nearby schools and transport links prevents a complete assessment of the location’s family-friendliness and ease of commuting. A notable drawback is the absence of a garden, which will likely limit its attractiveness to many potential buyers. The price, considering the market in Coldstream and the property’s features, appears competitive, although detailed square footage information and more comprehensive comparative local sales data would be needed for a conclusive valuation. Overall, the property offers a central location in a desirable town but lacks outdoor space. Potential buyers should carefully weigh the advantages of the location and condition against the absence of land before making an offer.
Therefore, we give this property 5 / 10. *Disclaimer: This is our option and does constitute a recommendation or financial advice. Do your own research. *
- Price
- 7
- Condition
- 6
- Location
- 7
- Land
- 1
- Bedrooms
- 3
- Bathrooms
- 2
- Sqft (est)
- 810.30
The heatmap indicates the level of crime in the area. The color of the heatmap indicates the crime severity and recency.
Metrics Year-on-Year
- Average area value
- 376,133.00 £Increased by 50.19 %
- Est sale value
- 516,971.40 £Increased by 131.16 %
- Average area rental value
- 1,250.00 £/moIncreased by 20.42 %
- Est letting value
- 1,620.60 £/moIncreased by 100.00 %
- Est rental Yield
- 3.99 %Decreased by 19.72 %
- Crime Rate
- 0.00 %
Agent Activity
Edwin Thompson created the listing.
Images
Nearby Streets
| Name | Average Price | Average Sqft | Distance |
|---|---|---|---|
| Tweed Road | £ 185,000 | 0 | 0.00 KM |
| Abbey Road | £ 0 | 0 | 0.00 KM |
| Guards Road | £ 0 | 0 | 0.00 KM |
| Lees Mill Drive | £ 0 | 0 | 0.00 KM |
| Woodlands Park | £ 250,000 | 0 | 0.00 KM |
Nearby Listings
| Address | Price | Type | Score | Distance |
|---|---|---|---|---|
| Little Bethel, 79 High Street, Coldstream, TD12 4AE | £ 160,000 | BUY | 5 / 10 | 0.00 KM |
| Little Bethel, 79 High Street, Coldstream, TD12 4AE | £ 125,000 | BUY | 6 / 10 | 0.06 KM |
| High Street, IVER | £ 250,000 | BUY | 6 / 10 | 0.10 KM |
| 76 & 76a High Street, Coldstream | £ 155,000 | BUY | Unknown | 0.11 KM |
| 59 High Street, Coldstream, TD12 | £ 120,000 | BUY | 5 / 10 | 0.16 KM |