Asquith Boulevard, Leicester
By Readings Property Group
£ 300,000
Reviews
3 out of 5 stars
Readings Property Group says ..
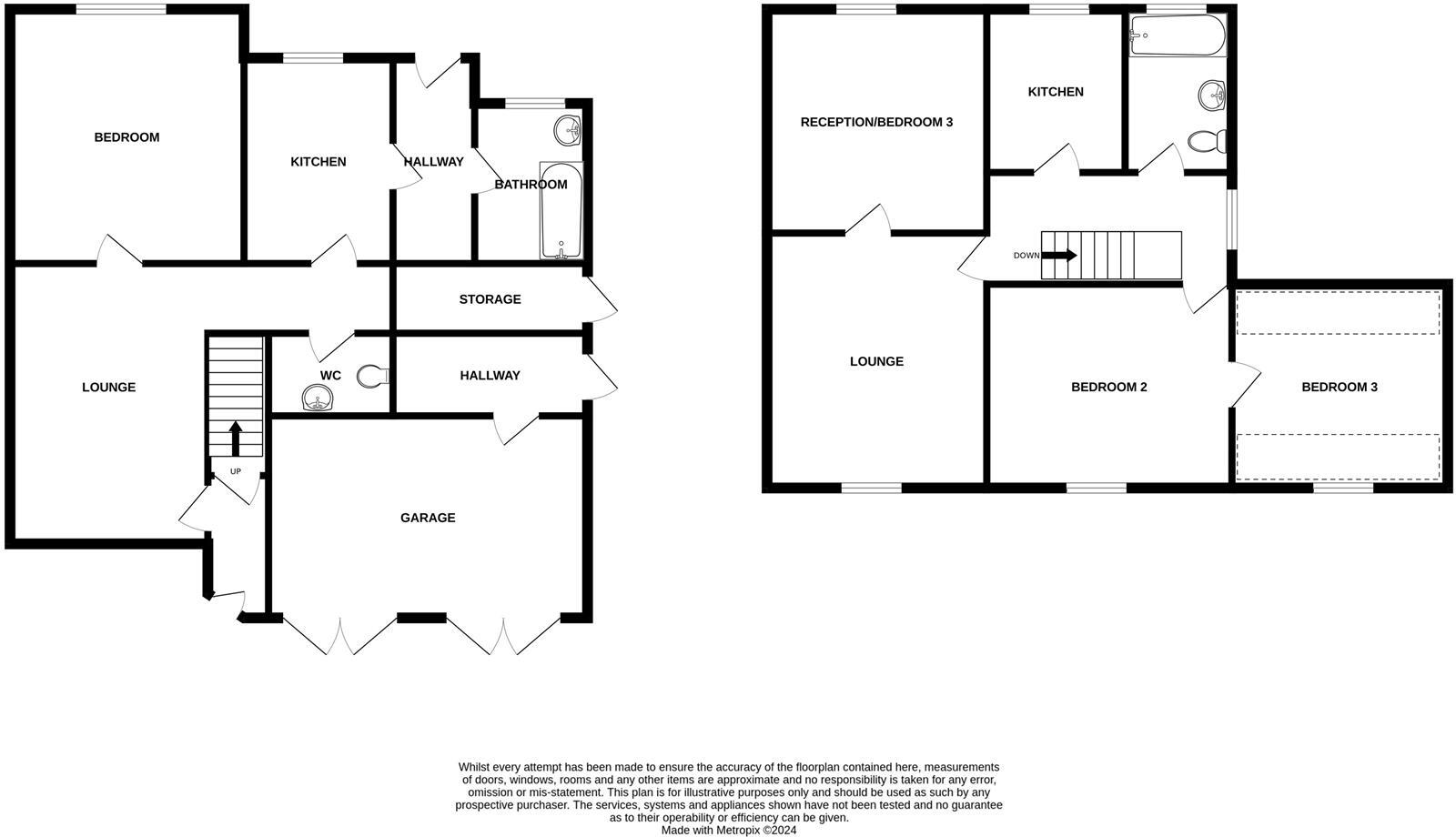
***UNEXPECTEDLY BACK TO THE MARKET*** A substantial detached house in the sought after district of West Knighton, that has been converted to form two self contained apartments. This represents an excellent investment opportunity or potential to convert back to a single dwelling or alter the layou...
Property Oracle says ..
This property is a four-bedroom, two-bathroom house located in Leicester, England. It is listed for £300,000 and has 1,300 square feet of living space. The property has a garden. The average price for a property in the area is £387,240, with an average price per square foot of £335. The property appears to be in need of some renovation and updating, particularly in the bathrooms and some of the living areas. The kitchen appears to have been recently updated. The location is convenient to several schools and transportation options. Given the condition, location, and land, the list price seems reasonable.
Therefore, we give this property 7 / 10. *Disclaimer: This is our option and does constitute a recommendation or financial advice. Do your own research. *
- Price
- 7
- Condition
- 6
- Location
- 8
- Land
- 7
- Bedrooms
- 4
- Bathrooms
- 2
- Sqft (est)
- 1,300.00
The heatmap indicates the level of crime in the area. The color of the heatmap indicates the crime severity and recency.
Metrics Year-on-Year
- Average area value
- 404,688.00 £Increased by 2.85 %
- Est sale value
- 479,700.00 £Increased by 17.52 %
- Average area rental value
- 788.00 £/moDecreased by 23.79 %
- Est letting value
- 0.00 £/mo
- Est rental Yield
- 2.34 %Decreased by 25.71 %
- Crime Rate
- 8.00 %Unchanged by 0.00 %
Agent Activity
Readings Property Group created the listing.
Nearby Schools
| Name | Type | Ofsted | Distance |
|---|---|---|---|
| Water Leys Primary School | Community School | Good | 0.54 KM |
| Lancaster Academy | Academy Sponsor Led | Requires improvement | 0.96 KM |
| Sir Jonathan North Girls College | Academy Converter | 1.10 KM | |
| Overdale Infant School | Academy Converter | 1.13 KM | |
| Overdale Junior School | Academy Converter | 1.17 KM |
Images
Nearby Streets
| Name | Average Price | Average Sqft | Distance |
|---|---|---|---|
| Kenneth Gamble Court | £ 250,000 | 0 | 0.00 KM |
| Elizabeth Crescent | £ 0 | 0 | 0.00 KM |
| The Crescent | £ 0 | 0 | 0.00 KM |
| Fir Tree Crescent | £ 0 | 0 | 0.00 KM |
| The Cedars | £ 400,000 | 0 | 0.00 KM |
Nearby Transport
| Name | NLC | TLC | Distance |
|---|---|---|---|
| South Wigston | 1949 | SWS | 2.24 KM |
| Leicester | 1947 | LEI | 3.79 KM |
| Narborough | 1881 | NBR | 9.55 KM |
Nearby Listings
| Address | Price | Type | Score | Distance |
|---|---|---|---|---|
| Asquith Boulevard, Leicester | £ 300,000 | BUY | 7 / 10 | 0.00 KM |
| Roehampton Drive, Wigston | £ 320,000 | BUY | 5 / 10 | 0.08 KM |
| Asquith Boulevard, Leicester, LE2 | £ 300,000 | BUY | Unknown | 0.16 KM |
| Asquith Boulevard, Leicester | £ 260,000 | BUY | 6 / 10 | 0.16 KM |
| Bradgate Drive, Wigston | £ 170,000 | BUY | 6 / 10 | 0.18 KM |
Nearby Properties
| Address | Price | Distance |
|---|---|---|
| 72 Shackerdale Road | £ 152,050 | 0.12 KM |
| 102 Shackerdale Road | £ 75,000 | 0.12 KM |
| 78 Shackerdale Road | £ 170,000 | 0.12 KM |
| 80 Shackerdale Road | £ 140,000 | 0.12 KM |
| 76 Shackerdale Road | £ 155,000 | 0.12 KM |