SY
The Academy, George Street, Hull
By Symonds & Greenham
£ 155,000
Symonds & Greenham says ..
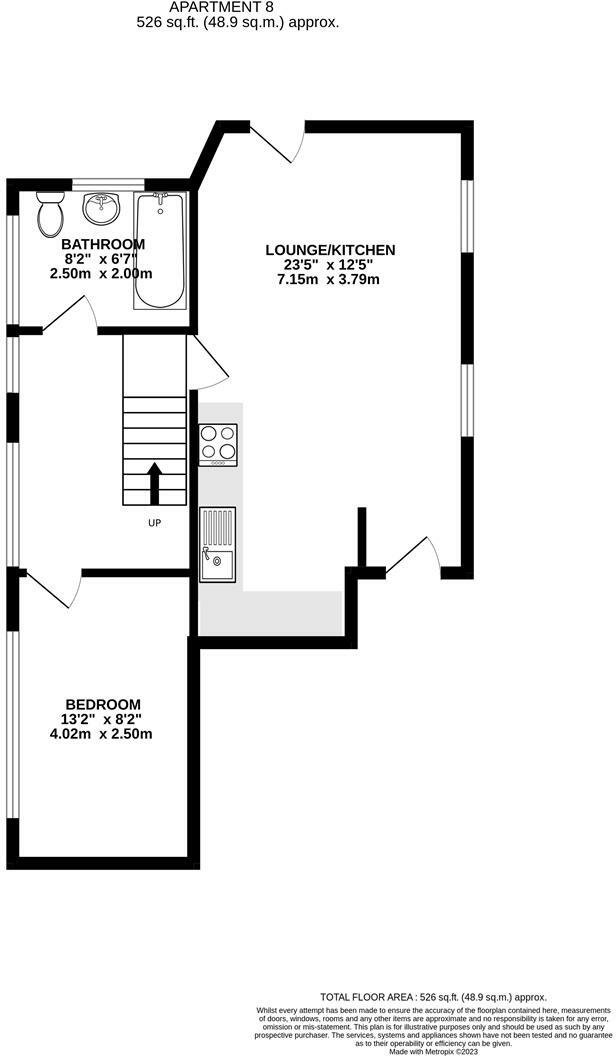
OUTSTANDING DEVELOPMENT - MIXTURE OF ONE AND TWO BED APARTMENTS - FINISHED TO THE HIGHEST STANDARD - STUNNING ROOF GARDEN - EXCLUSIVE CITY CENTRE LIVING Symonds and Greenham are delighted to bring to the market this outstanding, city centre development. Situated on George Street, these e...
- Bedrooms
- 1
- Bathrooms
- 1
The heatmap indicates the level of crime in the area. The color of the heatmap indicates the crime severity and recency.
Metrics Year-on-Year
- Average area value
- 57,866.00 £Decreased by 59.73 %
- Average area rental value
- 750.00 £/moDecreased by 8.98 %
- Est rental Yield
- 15.55 %Increased by 126.02 %
- Crime Rate
- 6.00 %Unchanged by 0.00 %
from 143,712.00 £
from 824.00 £/mo
from 6.88 %
from 6.00 %
Agent Activity
Symonds & Greenham created the listing.
Nearby Schools
| Name | Type | Ofsted | Distance |
|---|---|---|---|
| Hull Trinity House Academy | Academy Converter | Good | 0.18 KM |
| Ron Dearing Utc | University Technical College | Outstanding | 0.21 KM |
| Tlg Hull | Other Independent School | 0.45 KM | |
| Hull College | Further Education | Requires improvement | 0.53 KM |
| Clifton Children'S Centre | Children's Centre Linked Site | 0.98 KM |
Images
Nearby Streets
| Name | Average Price | Average Sqft | Distance |
|---|---|---|---|
| Sylvester Square | £ 217,500 | 0 | 0.00 KM |
| Worship Street | £ 0 | 0 | 0.00 KM |
| Hanover Square | £ 0 | 0 | 0.00 KM |
| Savile Court | £ 0 | 0 | 0.00 KM |
| Charles Street | £ 0 | 0 | 0.00 KM |
Nearby Transport
| Name | NLC | TLC | Distance |
|---|---|---|---|
| Hull | 8126 | HUL | 1.00 KM |
| New Holland | 6209 | NHL | 5.56 KM |
| Goxhill | 6206 | GOX | 7.73 KM |
| Barrow Haven | 6212 | BAV | 8.24 KM |
| Cottingham | 8056 | CGM | 8.65 KM |
Nearby Listings
| Address | Price | Type | Score | Distance |
|---|---|---|---|---|
| George Street, Hull | £ 165,000 | BUY | 6 / 10 | 0.00 KM |
| The Academy, George Street, Hull | £ 155,000 | BUY | 6 / 10 | 0.00 KM |
| Criterion House, George St, Hull | £ 165,000 | BUY | 5 / 10 | 0.02 KM |
| George Street, Hull, HU1 | £ 290,000 | BUY | 3 / 10 | 0.02 KM |
| George Street, Hull, HU1 | £ 80,000 | BUY | 7 / 10 | 0.02 KM |
Nearby Properties
| Address | Price | Distance |
|---|---|---|
| 62a George Street | £ 100,000 | 0.03 KM |
| 70a George Street | £ 155,000 | 0.03 KM |
| 66a George Street | £ 100,000 | 0.03 KM |
| 2 Jarratt Street | £ 85,000 | 0.11 KM |
| 10 John Street | £ 60,000 | 0.28 KM |