IA
The Ridgeway, Enfield, Middlesex, EN2
By Ian Gibbs
£ 615,000
Reviews
3 out of 5 stars
Ian Gibbs says ..
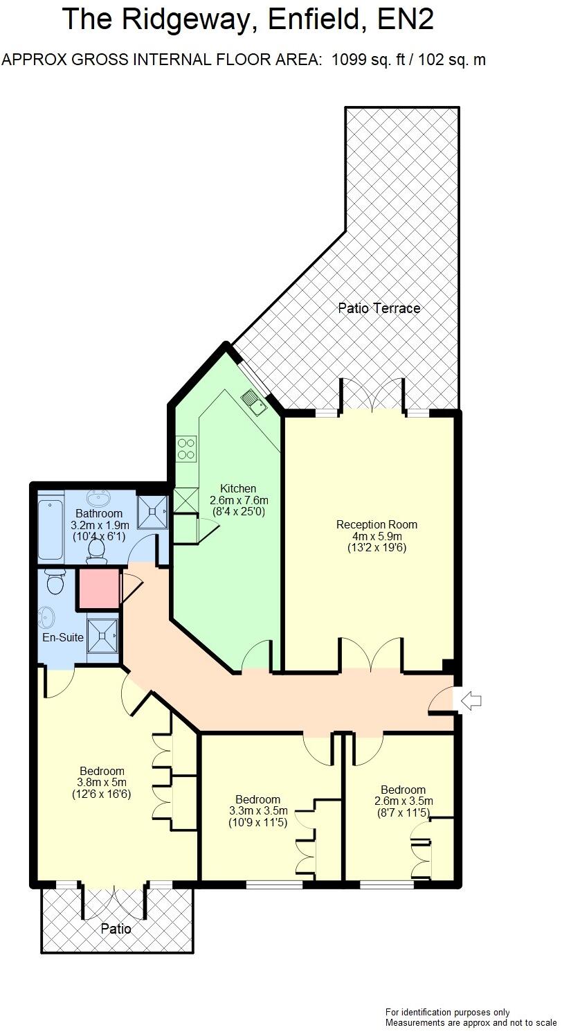
This spacious three bedroom ground floor apartment has many features including a 25' Integrated Kitchen/Diner and also has a balcony off the main bedroom and a large south facing terrace off the lounge. There is underground parking, over 100 square metres of accommodation and a 163 year lease.
Property Oracle says ..
Therefore, we give this property 6 / 10. *Disclaimer: This is our option and does constitute a recommendation or financial advice. Do your own research. *
- Price
- 6
- Condition
- 7
- Location
- 7
- Land
- 5
- Bedrooms
- 3
- Bathrooms
- 2
- Sqft (est)
- 958.96
The heatmap indicates the level of crime in the area. The color of the heatmap indicates the crime severity and recency.
Metrics Year-on-Year
- Average area value
- 780,333.00 £Increased by 28.74 %
- Est sale value
- 637,708.40 £Increased by 31.68 %
- Average area rental value
- 2,100.00 £/moIncreased by 7.91 %
- Est letting value
- 958.96 £/moUnchanged by 0.00 %
- Est rental Yield
- 3.23 %Decreased by 16.10 %
- Crime Rate
- 5.00 %Unchanged by 0.00 %
from 606,119.00 £
from 484,274.80 £
from 1,946.00 £/mo
from 958.96 £/mo
from 3.85 %
from 5.00 %
Agent Activity
Ian Gibbs created the listing.
Nearby Schools
| Name | Type | Ofsted | Distance |
|---|---|---|---|
| Chase Side Children'S Centre | Children's Centre | 1.14 KM | |
| Chase Side Primary School | Community School | Requires improvement | 1.14 KM |
| Merryhills Primary School | Community School | Good | 1.31 KM |
| Highlands School | Community School | Outstanding | 1.32 KM |
| Grange Park Primary School | Academy Converter | 1.43 KM |
Images
Nearby Streets
| Name | Average Price | Average Sqft | Distance |
|---|---|---|---|
| Cranmere Court | £ 0 | 0 | 0.00 KM |
| Woodridge Close | £ 0 | 0 | 0.00 KM |
| Lavender Gardens | £ 512,250 | 0 | 0.00 KM |
| Ripley Road | £ 0 | 0 | 0.00 KM |
| Borrowdale Court | £ 174,998 | 0 | 0.00 KM |
Nearby Transport
| Name | NLC | TLC | Distance |
|---|---|---|---|
| Gordon Hill | 6028 | GDH | 0.90 KM |
| Enfield Chase | 6010 | ENC | 1.06 KM |
| Grange Park | 6029 | GPK | 1.61 KM |
| Enfield Town | 6959 | ENF | 2.30 KM |
| Winchmore Hill | 6024 | WIH | 2.56 KM |
Nearby Listings
| Address | Price | Type | Score | Distance |
|---|---|---|---|---|
| The Ridgeway, Enfield, Middlesex, EN2 | £ 685,000 | BUY | 6 / 10 | 0.00 KM |
| The Ridgeway, Enfield, Middlesex, EN2 | £ 615,000 | BUY | 6 / 10 | 0.00 KM |
| The Ridgeway, Enfield | £ 650,000 | BUY | 7 / 10 | 0.06 KM |
| The Ridgeway, Enfield, EN2 | £ 399,950 | BUY | 7 / 10 | 0.06 KM |
| Ridgemount Gardens, Enfield | £ 1,025,000 | BUY | 7 / 10 | 0.07 KM |
Nearby Properties
| Address | Price | Distance |
|---|---|---|
| 5 Newminster Court | £ 67,000 | 0.06 KM |
| 1 Newminster Court | £ 115,000 | 0.06 KM |
| 4 Newminster Court | £ 327,000 | 0.06 KM |
| 3 Newminster Court | £ 112,500 | 0.07 KM |
| 7 Ridgemount Gardens | £ 1,410,000 | 0.09 KM |