Barnard Marcus says ..
Spacious Two-Bedroom First-Floor Flat - Friern Barnet Road, N11
Property Oracle says ..
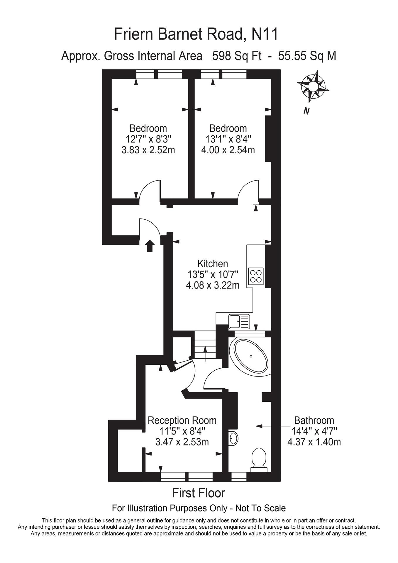
This property is a two-bedroom flat located on Friern Barnet Road in Southgate Green, Enfield. The flat is situated close to New Southgate station, providing convenient access to public transport. Several primary schools with good Ofsted ratings are within a short distance. The area has a mix of property types, with prices varying significantly. The list price of £280,000 is lower than the average house price in the area (£716,959), but this is likely due to the size of the property (506 sqft) and the fact that it is a flat. The average price per sqft in the area is £570, while this property is listed at approximately £553 per sqft. Based on the images, the property appears to be in reasonable condition, although some minor cosmetic updates could enhance its appeal. The lack of outdoor space is a notable factor.
Therefore, we give this property 5 / 10. *Disclaimer: This is our option and does constitute a recommendation or financial advice. Do your own research. *
- Price
- 6
- Condition
- 6
- Location
- 7
- Land
- 1
- Bedrooms
- 2
- Bathrooms
- 1
- Sqft (est)
- 506.38
The heatmap indicates the level of crime in the area. The color of the heatmap indicates the crime severity and recency.
Metrics Year-on-Year
- Average area value
- 793,750.00 £Decreased by 0.58 %
- Est sale value
- 128,620.52 £Decreased by 55.44 %
- Average area rental value
- 1,954.00 £/moIncreased by 5.97 %
- Est letting value
- 0.00 £/moDecreased by 100.00 %
- Est rental Yield
- 2.95 %Increased by 6.50 %
- Crime Rate
- 20.00 %Unchanged by 0.00 %
Agent Activity
Barnard Marcus created the listing.
Nearby Schools
| Name | Type | Ofsted | Distance |
|---|---|---|---|
| St Paul'S Cofe Primary School N11 | Voluntary Aided School | Good | 0.12 KM |
| Bowes And Garfield Children'S Centre | Children's Centre | 0.72 KM | |
| Our Lady Of Lourdes Catholic Primary School | Voluntary Aided School | Good | 0.78 KM |
| Garfield Primary School | Community School | Good | 0.80 KM |
| Holly Park Primary School | Community School | Good | 0.87 KM |
Images
Nearby Streets
| Name | Average Price | Average Sqft | Distance |
|---|---|---|---|
| Regal Drive | £ 0 | 0 | 0.00 KM |
| Beaconsfield Close | £ 0 | 0 | 0.00 KM |
| Cross Road | £ 0 | 0 | 0.00 KM |
| Alexandra Road | £ 0 | 0 | 0.00 KM |
| Silver Birch Close | £ 0 | 0 | 0.00 KM |
Nearby Transport
| Name | NLC | TLC | Distance |
|---|---|---|---|
| New Southgate | 6019 | NSG | 0.18 KM |
| Bowes Park | 6027 | BOP | 2.69 KM |
| Alexandra Palace | 6025 | AAP | 3.23 KM |
| Oakleigh Park | 6020 | OKL | 3.52 KM |
| Palmers Green | 6021 | PAL | 3.64 KM |
Nearby Listings
| Address | Price | Type | Score | Distance |
|---|---|---|---|---|
| Friern Barnet Road, London | £ 280,000 | BUY | 5 / 10 | 0.00 KM |
| 18-20 Friern Barnet Road, London, N11 | £ 220,000 | BUY | 5 / 10 | 0.03 KM |
| Station Road, New Southgate, London, N11 | £ 365,000 | BUY | Unknown | 0.04 KM |
| Station Road, LONDON, London, N11 | £ 550,000 | BUY | 7 / 10 | 0.07 KM |
| Station Road, London - shared ownership | £ 170,000 | BUY | 5 / 10 | 0.08 KM |
Nearby Properties
| Address | Price | Distance |
|---|---|---|
| 26b Friern Barnet Road | £ 239,000 | 0.00 KM |
| 28 Friern Barnet Road | £ 150,000 | 0.00 KM |
| 110 Station Road | £ 20,000 | 0.05 KM |
| 181 High Road | £ 178,000 | 0.10 KM |
| 153 High Road | £ 203,000 | 0.10 KM |