Sherwin Crescent, Farnborough, Hampshire, GU14
BR

Sherwin Crescent, Farnborough, Hampshire, GU14

By Bridges Estate Agents

£ 575,000

Reviews

4 out of 5 stars

Bridges Estate Agents says ..

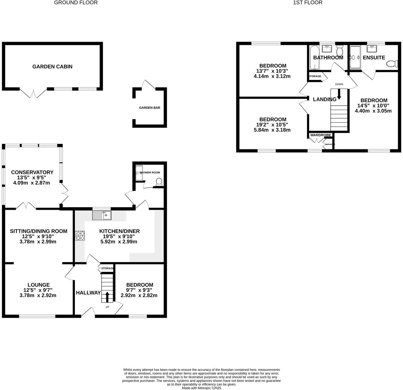
Situated in the sought after Sherwin Crescent sits this spacious four bedroom family home offering a generous amount of living accommodation, a modern, sophisticated finish throughout and potential for further extension (STPP). To the ground floor the property offers a bedroom/reception room...

Property Oracle says ..

This property is a 4-bedroom, 3-bathroom semi-detached house located in Sherwin Crescent, Farnborough, Hampshire. The area benefits from relatively close proximity to several railway stations (Frimley, Farnborough North, Farnborough (Main), Camberley and Blackwater) and a number of schools including The Sixth Form College Farnborough and Henry Tyndale School, both rated as Outstanding by Ofsted. The house itself appears to be in good condition, having undergone some modernisation, and benefits from a sizeable rear garden which includes a purpose built bar and additional outbuilding. The list price of £575,000 is significantly higher than the average price for the area (£349,600), however, the property is larger than average (1111.83 sqft vs 952 sqft average) and the quality of the finish and the addition of the garden bar and outbuilding could justify the higher price. More information on plot size would be needed to fully assess the value.

Therefore, we give this property 8 / 10. *Disclaimer: This is our option and does constitute a recommendation or financial advice. Do your own research. *

Price
7
Condition
9
Location
8
Land
8
Bedrooms
4
Bathrooms
3
Sqft (est)
1,111.83

The heatmap indicates the level of crime in the area. The color of the heatmap indicates the crime severity and recency.

Metrics Year-on-Year

Average area value
315,000.00 £
Decreased by 12.74 %
from 361,000.00 £
Est sale value
588,158.07 £
Increased by 52.01 %
from 386,916.84 £
Average area rental value
1,150.00 £/mo
Decreased by 38.86 %
from 1,881.00 £/mo
Est letting value
1,111.83 £/mo
Unchanged by 0.00 %
from 1,111.83 £/mo
Est rental Yield
4.38 %
Decreased by 29.92 %
from 6.25 %
Crime Rate
4.00 %
Unchanged by 0.00 %
from 4.00 %

Agent Activity

  • Bridges Estate Agents created the listing.

Nearby Schools

NameTypeOfstedDistance
The Sixth Form College FarnboroughAcademy 16-19 ConverterOutstanding0.67 KM
Farnborough HillOther Independent School1.07 KM
Cherrywood Community Primary SchoolCommunity SchoolGood1.13 KM
Owls Children'S CentreChildren's Centre1.16 KM
Henry Tyndale SchoolCommunity Special SchoolOutstanding1.27 KM

Images

Picture No. 25 Picture No. 06 Picture No. 10 Picture No. 15 Picture No. 07 Picture No. 09 Picture No. 19 Picture No. 20 Picture No. 23 Picture No. 12 Picture No. 14 Picture No. 21 Picture No. 03 Picture No. 04 Picture No. 02 Picture No. 05 Picture No. 08 Picture No. 11 Picture No. 13 Picture No. 16 Picture No. 17 Picture No. 18 Picture No. 26

Nearby Streets

NameAverage PriceAverage SqftDistance
Woodside £ 000.00 KM
Worcester Close £ 375,00000.00 KM
Sandhill Court £ 000.00 KM
West Road £ 400,00000.00 KM
Willow Crescent £ 000.00 KM

Nearby Transport

NameNLCTLCDistance
Frimley5683FML0.68 KM
Farnborough North5688FNN1.40 KM
Farnborough (Main)5521FNB1.52 KM
Camberley5682CAM3.08 KM
Blackwater5625BAW3.57 KM

Nearby Listings

AddressPriceTypeScoreDistance
Sherwin Crescent, Farnborough, Hampshire, GU14 £ 575,000BUY8 / 100.00 KM
Burnsall Close, Farnborough, Hampshire, GU14 £ 625,000BUY6 / 100.04 KM
Sherwin Crescent, Farnborough, Hampshire, GU14 £ 400,000BUY6 / 100.10 KM
Hawley Lane, Farnborough, Hampshire, GU14 £ 265,000BUY7 / 100.11 KM
Prince Charles Crescent, Farnborough, GU14 £ 425,000BUY6 / 100.16 KM

Nearby Properties

AddressPriceDistance
11 Sherwin Crescent £ 71,0000.01 KM
14 Sherwin Crescent £ 209,0000.01 KM
23 Sherwin Crescent £ 234,0000.01 KM
17 Sherwin Crescent £ 270,0000.05 KM
8 Sherwin Crescent £ 230,0000.05 KM