CO
mckenzie Road, London, BR3 4
By Cornerstone Estate Agents
£ 825,000
Reviews
3 out of 5 stars
Cornerstone Estate Agents says ..
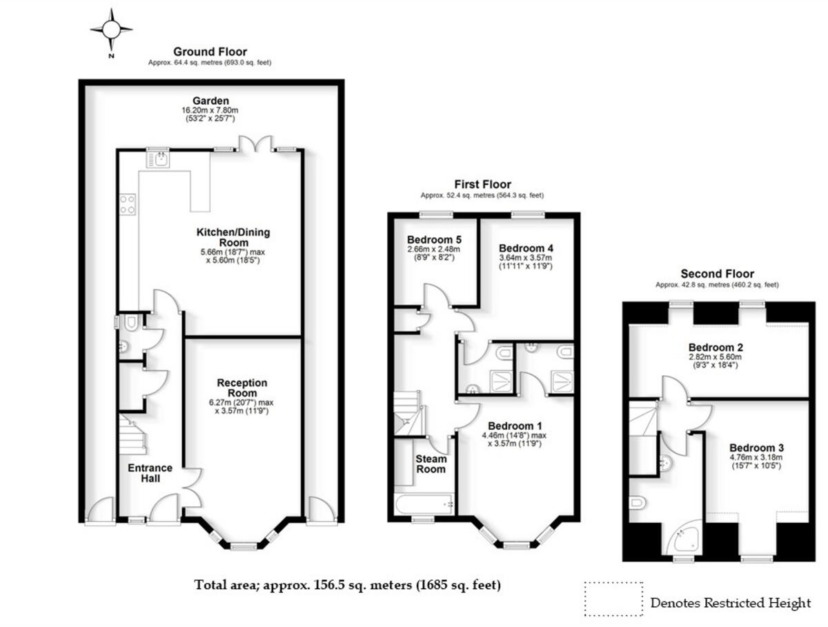
Discover a spacious five-bedroom detached house on McKenzie Road, London. With ample space, this property offers modern living for families seeking comfort and style. Contact us today to explore this exceptional opportunity
Property Oracle says ..
Therefore, we give this property 6 / 10. *Disclaimer: This is our option and does constitute a recommendation or financial advice. Do your own research. *
- Price
- 6
- Condition
- 6
- Location
- 8
- Land
- 7
- Bedrooms
- 5
- Bathrooms
- 2
The heatmap indicates the level of crime in the area. The color of the heatmap indicates the crime severity and recency.
Metrics Year-on-Year
- Average area value
- 666,950.00 £Increased by 20.68 %
- Average area rental value
- 1,565.00 £/moDecreased by 5.89 %
- Est rental Yield
- 2.82 %Decreased by 21.88 %
- Crime Rate
- 6.00 %Unchanged by 0.00 %
from 552,678.00 £
from 1,663.00 £/mo
from 3.61 %
from 6.00 %
Agent Activity
Cornerstone Estate Agents created the listing.
Nearby Schools
| Name | Type | Ofsted | Distance |
|---|---|---|---|
| Churchfields Primary School | Academy Converter | 0.46 KM | |
| Harris Primary Academy Kent House | Academy Sponsor Led | Outstanding | 0.66 KM |
| Alexandra Infant School | Academy Converter | Good | 0.87 KM |
| Stewart Fleming Primary School | Academy Converter | Outstanding | 0.97 KM |
| St Anthony'S Roman Catholic Primary School | Academy Converter | Good | 1.03 KM |
Images
Nearby Streets
| Name | Average Price | Average Sqft | Distance |
|---|---|---|---|
| Garden Road | £ 750,000 | 0 | 0.00 KM |
| Grace Mews | £ 0 | 0 | 0.00 KM |
| Trinity Mews | £ 0 | 0 | 0.00 KM |
| High Street | £ 0 | 0 | 0.00 KM |
| Hawthorn Grove | £ 0 | 0 | 0.00 KM |
Nearby Transport
| Name | NLC | TLC | Distance |
|---|---|---|---|
| Birkbeck | 5401 | BIK | 0.66 KM |
| Kent House | 5080 | KTH | 0.85 KM |
| Elmers End | 5049 | ELE | 0.92 KM |
| Clock House | 5048 | CLK | 1.11 KM |
| Penge East | 5072 | PNE | 1.47 KM |
Nearby Listings
| Address | Price | Type | Score | Distance |
|---|---|---|---|---|
| mckenzie Road, London, BR3 4 | £ 825,000 | BUY | 6 / 10 | 0.00 KM |
| Mackenzie Road, Beckenham | £ 900,000 | BUY | 7 / 10 | 0.03 KM |
| Blandford Road, Beckenham, BR3 | £ 425,000 | BUY | 6 / 10 | 0.08 KM |
| Blandford Road, Beckenham, BR3 | £ 400,000 | BUY | 7 / 10 | 0.09 KM |
| Birkbeck Road, Beckenham, BR3 | £ 450,000 | BUY | 7 / 10 | 0.09 KM |
Nearby Properties
| Address | Price | Distance |
|---|---|---|
| 131a Mackenzie Road | £ 450,000 | 0.02 KM |
| 139 Mackenzie Road | £ 810,000 | 0.02 KM |
| 121 Mackenzie Road | £ 835,000 | 0.02 KM |
| 153 Mackenzie Road | £ 325,000 | 0.02 KM |
| 141 Mackenzie Road | £ 178,000 | 0.02 KM |