Petersmead Close, Tadworth
Kennedys logo

Petersmead Close, Tadworth

By Kennedys

£ 435,000

Reviews

3 out of 5 stars

Kennedys says ..

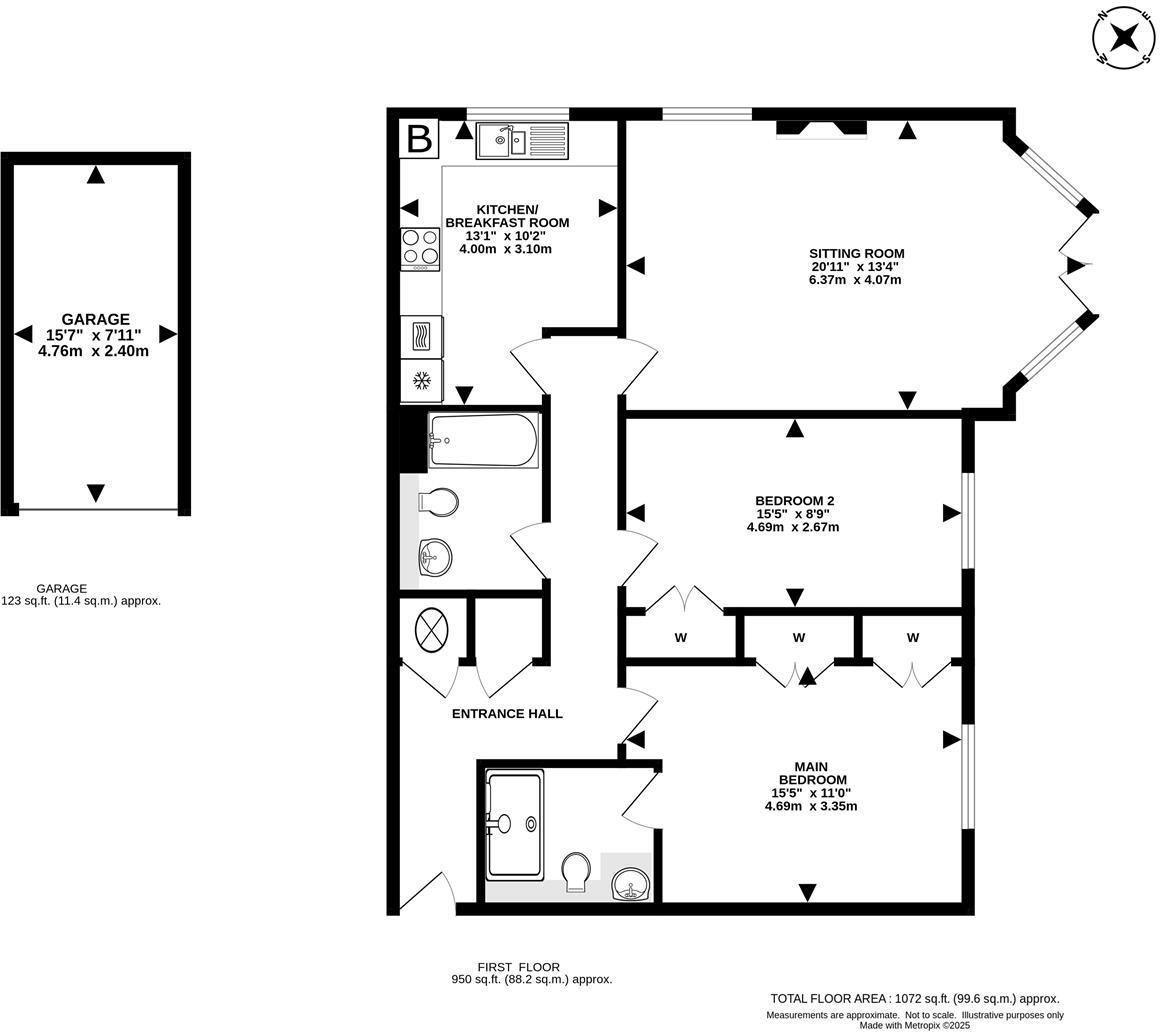
When it comes to downsizing, Kirsty and Phil have a point; Location really is everything. This generously proportioned 2 bedroom apartment sits on the highly sought after Petermead Close, just off the Avenue in Tadworth, providing a central village location whilst being peaceful and quiet.

Property Oracle says ..

Therefore, we give this property 7 / 10. *Disclaimer: This is our option and does constitute a recommendation or financial advice. Do your own research. *

Price
8
Condition
6
Location
7
Land
7
Bedrooms
2
Bathrooms
2
Sqft (est)
1,072.09

The heatmap indicates the level of crime in the area. The color of the heatmap indicates the crime severity and recency.

Metrics Year-on-Year

Average area value
702,673.00 £
Decreased by 10.61 %
from 786,063.00 £
Est sale value
582,144.87 £
Decreased by 6.06 %
from 619,668.02 £
Average area rental value
2,025.00 £/mo
Decreased by 26.82 %
from 2,767.00 £/mo
Est letting value
1,072.09 £/mo
Decreased by 50.00 %
from 2,144.18 £/mo
Est rental Yield
3.46 %
Decreased by 18.01 %
from 4.22 %
Crime Rate
11.00 %
Unchanged by 0.00 %
from 11.00 %

Agent Activity

  • Kennedys created the listing.

Nearby Schools

NameTypeOfstedDistance
Chinthurst SchoolOther Independent School0.28 KM
Walton-On-The-Hill Primary SchoolCommunity SchoolGood1.02 KM
Tadworth Primary SchoolFoundation SchoolGood1.10 KM
The Children'S Trust SchoolNon-maintained Special SchoolGood1.40 KM
The Surrey Teaching CentrePupil Referral UnitOutstanding1.40 KM

Images

PETERSMEAD CLOSE, 16 (10).jpg PETERSMEAD CLOSE, 16 (14).jpg PETERSMEAD CLOSE, 16 (3).jpg PETERSMEAD CLOSE, 16 (5).jpg PETERSMEAD CLOSE, 16 (8).jpg PETERSMEAD CLOSE, 16 (13).jpg PETERSMEAD CLOSE, 16 (9).jpg PETERSMEAD CLOSE, 16 (12).jpg PETERSMEAD CLOSE, 16 (1).jpg PETERSMEAD CLOSE, 16 (4).jpg PETERSMEAD CLOSE, 16 (2).jpg PETERSMEAD CLOSE, 16 (6).jpg PETERSMEAD CLOSE, 16 (7).jpg PETERSMEAD CLOSE, 16 (16).jpg PETERSMEAD CLOSE, 16 (11).jpg PETERSMEAD CLOSE, 16 (15).jpg PETERSMEAD CLOSE, 16 (17).jpg

Nearby Streets

NameAverage PriceAverage SqftDistance
White Lodge Close £ 835,00000.00 KM
The Oaks £ 000.00 KM
Watt's Mead £ 595,00000.00 KM
Troy Close £ 000.00 KM
Mallow Close £ 000.00 KM

Nearby Transport

NameNLCTLCDistance
Tadworth5386TAD0.27 KM
Tattenham Corner5387TAT2.26 KM
Kingswood5366KND2.94 KM
Epsom Downs5361EPD3.80 KM
Banstead5348BAD5.17 KM

Nearby Listings

AddressPriceTypeScoreDistance
Petersmead Close, Tadworth £ 435,000BUY7 / 100.00 KM
Petersmead Close, Tadworth £ 500,000BUY8 / 100.00 KM
The Avenue, Tadworth £ 950,000BUY7 / 100.05 KM
Petersmead Close, Tadworth £ 425,000BUY7 / 100.09 KM
Milstead Close, Tadworth £ 995,000BUY6 / 100.14 KM

Nearby Properties

AddressPriceDistance
5 Petersmead Close £ 335,0000.01 KM
12 Petersmead Close £ 420,0000.01 KM
7 Petersmead Close £ 452,5000.01 KM
8 Petersmead Close £ 461,0000.01 KM
4 Petersmead Close £ 425,0000.01 KM