Compstall Road, Marple Bridge, Stockport
By Gascoigne Halman
£ 350,000
Reviews
3 out of 5 stars
Gascoigne Halman says ..
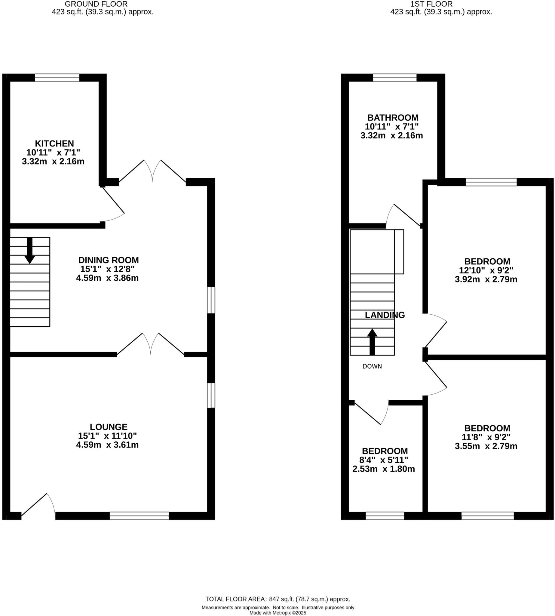
Three bedroom Stone cottage with a good sized private garden and driveway to the rear positioned close to excellent schools and amenities. Two spacious reception rooms and a modern kitchen and bathroom. Useful storage cellar.
Property Oracle says ..
This property is a 3-bedroom, 1-bathroom terraced house located in Marple Bridge, Stockport. The property benefits from being close to local schools such as Ludworth Primary School (0.41km) and St Mary’s Catholic Voluntary Academy (0.53km), both within easy walking distance. Marple train station is also conveniently located just 0.89km away, providing good transport links. The property itself appears to be well-maintained and in good condition, with a modern kitchen and bathroom. There is a private enclosed rear garden, which is a desirable feature. The list price is £350,000, which is lower than the average price for the area (£541,104) and significantly lower than the average price per sqft (£366). However, it is important to note that the property is smaller than average at 847.12 sqft compared to the area average of 1,476 sqft. Considering its location, condition, and the presence of a garden, the price seems reasonable, although further analysis of comparable properties in the immediate vicinity would be needed to make a definitive statement.
Therefore, we give this property 7 / 10. *Disclaimer: This is our option and does constitute a recommendation or financial advice. Do your own research. *
- Price
- 7
- Condition
- 8
- Location
- 9
- Land
- 7
- Bedrooms
- 3
- Bathrooms
- 1
- Sqft (est)
- 847.12
The heatmap indicates the level of crime in the area. The color of the heatmap indicates the crime severity and recency.
Metrics Year-on-Year
- Average area value
- 583,125.00 £Increased by 22.07 %
- Est sale value
- 386,286.72 £Increased by 21.93 %
- Average area rental value
- 1,406.00 £/moIncreased by 16.39 %
- Est letting value
- 847.12 £/mo
- Est rental Yield
- 2.89 %Decreased by 4.62 %
- Crime Rate
- 0.00 %
Agent Activity
Gascoigne Halman marked this listing as sold.
Gascoigne Halman created the listing.
Nearby Schools
| Name | Type | Ofsted | Distance |
|---|---|---|---|
| Ludworth Primary School | Community School | Outstanding | 0.41 KM |
| St Mary'S Catholic Voluntary Academy | Academy Converter | 0.53 KM | |
| Brabyns Preparatory School | Other Independent School | 1.10 KM | |
| All Saints Church Of England Primary School Marple | Voluntary Controlled School | Good | 1.94 KM |
| Mellor Primary School | Academy Converter | Good | 1.98 KM |
Images
Nearby Streets
| Name | Average Price | Average Sqft | Distance |
|---|---|---|---|
| The Close | £ 0 | 0 | 0.00 KM |
| Pear Tree Close | £ 380,000 | 0 | 0.00 KM |
| Homer Drive | £ 0 | 0 | 0.00 KM |
| Thomas Street | £ 320,000 | 0 | 0.00 KM |
| Catterwood Way | £ 0 | 0 | 0.00 KM |
Nearby Transport
| Name | NLC | TLC | Distance |
|---|---|---|---|
| Marple | 2830 | MPL | 0.89 KM |
| Rose Hill Marple | 2873 | RSH | 2.89 KM |
| Romiley | 2833 | RML | 4.09 KM |
| Strines | 2834 | SRN | 4.17 KM |
| Hattersley | 2604 | HTY | 4.44 KM |
Nearby Listings
| Address | Price | Type | Score | Distance |
|---|---|---|---|---|
| Compstall Road, Marple Bridge, Stockport | £ 350,000 | BUY | 7 / 10 | 0.00 KM |
| Compstall Road, Stockport, SK6 5HD | £ 325,000 | BUY | 7 / 10 | 0.06 KM |
| Compstall Road, Marple Bridge, Stockport SK6 | £ 375,000 | BUY | 7 / 10 | 0.06 KM |
| Compstall Road, Marple Bridge | £ 370,000 | BUY | 7 / 10 | 0.07 KM |
| Compstall Road, Marple Bridge, Stockport, Cheshire, SK6 | £ 260,000 | BUY | 7 / 10 | 0.08 KM |
Nearby Properties
| Address | Price | Distance |
|---|---|---|
| 177 Compstall Road | £ 390,000 | 0.07 KM |
| 164 Compstall Road | £ 210,000 | 0.07 KM |
| 156 Compstall Road | £ 193,500 | 0.07 KM |
| 147 Compstall Road | £ 225,000 | 0.07 KM |
| 175 Compstall Road | £ 350,000 | 0.07 KM |