Earlham Street, Covent Garden
EX

Earlham Street, Covent Garden

By eXp UK

£ 2,700,000

Reviews

3 out of 5 stars

eXp UK says ..

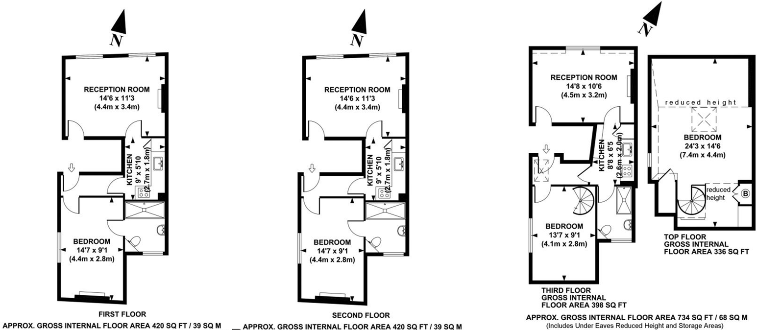
24 Earlham street is a freehold Georgian building that has been completely refurbished to an excellent standard in 2018 and comprises 3 unique apartments, (two x 1 beds and a 2 bed duplex on the top floor) Each apartment benefits from bespoke interior design including oak wooden floors,...

Property Oracle says ..

This property is a 4 bedroom, 3 bathroom house located in Earlham Street, Covent Garden, London. The property is in excellent condition and has been recently renovated to a high standard. The location is superb, being in the heart of Covent Garden with easy access to transport links, shops, restaurants and cultural attractions. However, the property has a very small plot size of 0.00 sqft. Given the prime location, excellent condition and the high average price per sqft in the area (£1,598), the list price of £2,700,000 seems reasonable, although potentially on the higher end of the market. The average price for properties in the area is £1,352,088 and the average sqft is 846 sqft. This property is significantly smaller than average, but its central location and high-quality renovation justify the higher price per sqft.

Therefore, we give this property 6 / 10. *Disclaimer: This is our option and does constitute a recommendation or financial advice. Do your own research. *

Price
7
Condition
9
Location
10
Land
1
Bedrooms
4
Bathrooms
3
Sqft (est)
316.00

The heatmap indicates the level of crime in the area. The color of the heatmap indicates the crime severity and recency.

Metrics Year-on-Year

Average area value
1,154,000.00 £
Decreased by 22.25 %
from 1,484,333.00 £
Est sale value
480,952.00 £
Decreased by 9.35 %
from 530,564.00 £
Average area rental value
2,781.00 £/mo
Increased by 3.65 %
from 2,683.00 £/mo
Est letting value
948.00 £/mo
Unchanged by 0.00 %
from 948.00 £/mo
Est rental Yield
2.89 %
Increased by 33.18 %
from 2.17 %
Crime Rate
11.00 %
Unchanged by 0.00 %
from 11.00 %

Agent Activity

  • eXp UK created the listing.

Nearby Schools

NameTypeOfstedDistance
The Royal Ballet SchoolOther Independent School0.46 KM
Ecole Jeannine ManuelOther Independent School0.58 KM
St Josephs Catholic Primary SchoolVoluntary Aided SchoolGood0.69 KM
West End Children'S CentreChildren's Centre Linked Site0.72 KM
Cats College LondonOther Independent School0.75 KM

Images

Nearby Streets

NameAverage PriceAverage SqftDistance
St Martin's Courtyard £ 000.00 KM
Gerrard Place £ 550,00000.00 KM
Garrick Yard £ 000.00 KM
St Martin's Lane £ 000.00 KM
Saint Martin's Court £ 000.00 KM

Nearby Transport

NameNLCTLCDistance
Charing Cross5143CHX0.69 KM
Euston1444EUS1.77 KM
Waterloo5598WAT1.97 KM
King'S Cross6121KGX1.99 KM
St Pancras1555STP2.10 KM

Nearby Listings

AddressPriceTypeScoreDistance
Earlham Street, Covent Garden £ 2,700,000BUY6 / 100.00 KM
Earlham Street, WC2H £ 750,000BUY6 / 100.01 KM
Earlham Street, Covent Garden, WC2H £ 1,125,000BUY6 / 100.01 KM
Earlham Street, Covent Garden, WC2H £ 725,000BUY6 / 100.01 KM
Earlham Street, Covent Garden, London, WC2H £ 1,150,000BUYUnknown0.03 KM

Nearby Properties

AddressPriceDistance
7 Tower Court £ 2,735,0000.04 KM
78a Neal Street £ 610,0000.20 KM
29a Neal Street £ 1,825,0000.21 KM
59 Endell Street £ 535,0000.24 KM
25 Garrick Street £ 1,000,0000.25 KM