HA
Hill Drive, Llantwit Fardre, Pontypridd
By Harris & Birt
£ 579,000
Reviews
4 out of 5 stars
Harris & Birt says ..
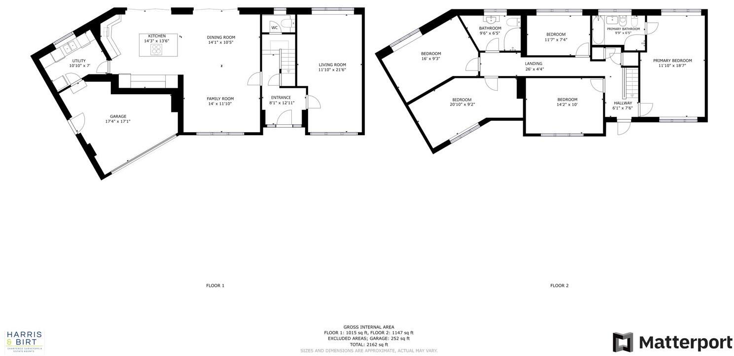
An imposing detached property occupying a large corner plot in an elevated position just a stones throw from all local amenities within Llantwit Fardre. The spacious accommodation has been fully renovated and stylishly modernised by the current owners in recent years and briefly comprises: entra...
Property Oracle says ..
Therefore, we give this property 8 / 10. *Disclaimer: This is our option and does constitute a recommendation or financial advice. Do your own research. *
- Price
- 9
- Condition
- 8
- Location
- 7
- Land
- 8
- Bedrooms
- 5
- Bathrooms
- 2
- Sqft (est)
- 2,126.34
The heatmap indicates the level of crime in the area. The color of the heatmap indicates the crime severity and recency.
Metrics Year-on-Year
- Average area value
- 327,499.00 £Increased by 6.26 %
- Est sale value
- 825,019.92 £Increased by 2.92 %
- Average area rental value
- 1,050.00 £/moIncreased by 2.44 %
- Est letting value
- 2,126.34 £/moUnchanged by 0.00 %
- Est rental Yield
- 3.85 %Decreased by 3.51 %
- Crime Rate
- 14.00 %Unchanged by 0.00 %
from 308,216.00 £
from 801,630.18 £
from 1,025.00 £/mo
from 2,126.34 £/mo
from 3.99 %
from 14.00 %
Agent Activity
Harris & Birt created the listing.
Nearby Schools
| Name | Type | Ofsted | Distance |
|---|---|---|---|
| Maesybryn Primary School | Welsh Establishment | 0.32 KM | |
| Ysgol Garth Olwg | Welsh Establishment | 1.28 KM | |
| Llanilltud Faerdref Primary | Welsh Establishment | 1.71 KM | |
| Gwaunmeisgyn Primary School | Welsh Establishment | 2.06 KM | |
| Gwauncelyn Primary | Welsh Establishment | 2.31 KM |
Images
Nearby Streets
| Name | Average Price | Average Sqft | Distance |
|---|---|---|---|
| Station House | £ 0 | 0 | 0.00 KM |
| Public Right of Way | £ 279,950 | 0 | 0.00 KM |
| Saint Annes Drive | £ 234,950 | 0 | 0.00 KM |
| Mulberry Close | £ 0 | 0 | 0.00 KM |
| Greenwood Drive | £ 0 | 0 | 0.00 KM |
Nearby Transport
| Name | NLC | TLC | Distance |
|---|---|---|---|
| Trefforest | 3887 | TRF | 3.71 KM |
| Pontypridd | 3904 | PPD | 4.55 KM |
| Trefforest Estate | 3886 | TRE | 4.89 KM |
| Pontyclun | 3850 | PYC | 7.66 KM |
| Trehafod | 3888 | TRH | 7.73 KM |
Nearby Listings
| Address | Price | Type | Score | Distance |
|---|---|---|---|---|
| Hill Drive, Llantwit Fardre, Pontypridd | £ 579,000 | BUY | 8 / 10 | 0.00 KM |
| Dehewydd Lane, Llantwit Fardre, Pontypridd, Rhondda Cynon Taff. CF38 2EN | £ 600,000 | BUY | 7 / 10 | 0.05 KM |
| Dehewydd Lane, Llantwit Fardre, Pontypridd, Rhondda Cynon Taff. CF38 2EN | £ 450,000 | BUY | 7 / 10 | 0.05 KM |
| Cleveleys, Llantrisant Road, Llantwit Fardre, Pontypridd, CF38 2HA | £ 82,000 | BUY | 5 / 10 | 0.13 KM |
| Station Terrace, Llantwit Fardre, PONTYPRIDD | £ 190,000 | BUY | 7 / 10 | 0.18 KM |
Nearby Properties
| Address | Price | Distance |
|---|---|---|
| Coppins | £ 353,000 | 0.04 KM |
| Oakfield House | £ 250,000 | 0.04 KM |
| Brynawel | £ 227,000 | 0.04 KM |
| Mount Pleasant | £ 315,000 | 0.04 KM |
| Parklands | £ 303,000 | 0.04 KM |