CL
Clifford Road, Stirling, FK8
By Clyde Property
£ 525,000
Reviews
3 out of 5 stars
Clyde Property says ..
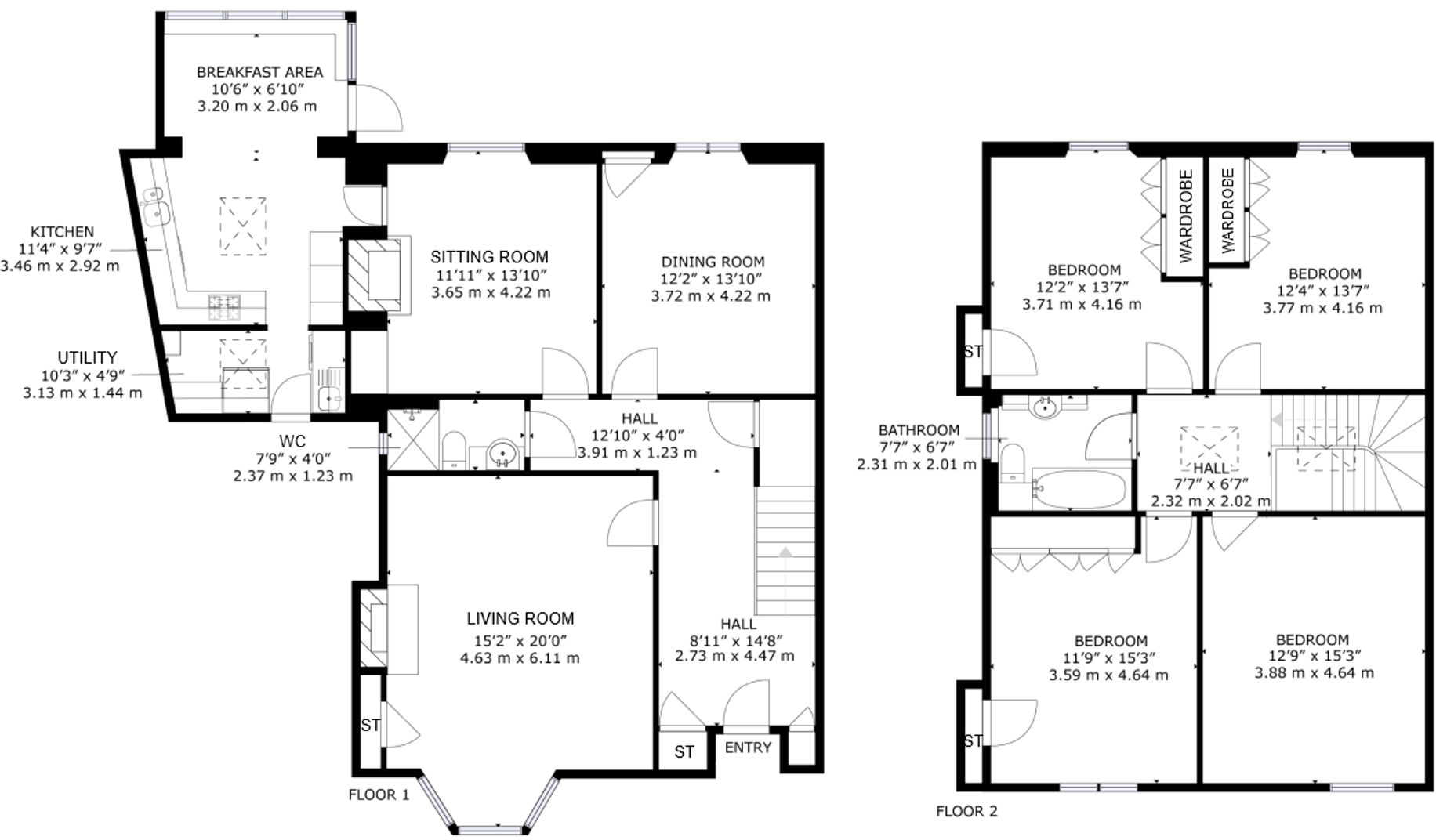
This immaculately presented two-storey semi-detached villa is situated in a highly regarded residential area on the outskirts of Stirling city centre.
Property Oracle says ..
Therefore, we give this property 7 / 10. *Disclaimer: This is our option and does constitute a recommendation or financial advice. Do your own research. *
- Price
- 7
- Condition
- 7
- Location
- 7
- Land
- 7
- Bedrooms
- 4
- Bathrooms
- 2
The heatmap indicates the level of crime in the area. The color of the heatmap indicates the crime severity and recency.
Metrics Year-on-Year
- Average area value
- 534,995.00 £Increased by 15.67 %
- Average area rental value
- 911.00 £/moIncreased by 2.02 %
- Est rental Yield
- 2.04 %Decreased by 12.07 %
- Crime Rate
- 0.00 %
from 462,536.00 £
from 893.00 £/mo
from 2.32 %
from 0.00 %
Agent Activity
Clyde Property created the listing.
Images
Nearby Streets
| Name | Average Price | Average Sqft | Distance |
|---|---|---|---|
| Clifford Road | £ 0 | 0 | 0.00 KM |
| Ogilvie Road | £ 120,000 | 0 | 0.00 KM |
| Brentham Avenue | £ 0 | 0 | 0.00 KM |
| Livilands Lane | £ 137,000 | 0 | 0.00 KM |
| Randolph Terrace | £ 0 | 0 | 0.00 KM |
Nearby Transport
| Name | NLC | TLC | Distance |
|---|---|---|---|
| Stirling | 9888 | STG | 1.31 KM |
| Bridge Of Allan | 9889 | BEA | 5.69 KM |
| Dunblane | 8713 | DBL | 9.05 KM |
Nearby Listings
| Address | Price | Type | Score | Distance |
|---|---|---|---|---|
| Clifford Road, Stirling, FK8 | £ 525,000 | BUY | 7 / 10 | 0.00 KM |
| Newhouse, Stirling | £ 82,500 | BUY | 6 / 10 | 0.12 KM |
| Clifford Road, Stirling, FK8 | £ 320,000 | BUY | 7 / 10 | 0.16 KM |
| Randolph Court, Stirling, FK8 | £ 245,000 | BUY | Unknown | 0.17 KM |
| The Woodlands, Stirling, Stirlingshire, FK8 | £ 190,000 | BUY | 5 / 10 | 0.21 KM |