Milner Road, Heswall, Wirral, CH60
By Bradshaw Farnham & Lea
£ 88,000
Reviews
4 out of 5 stars
Bradshaw Farnham & Lea says ..
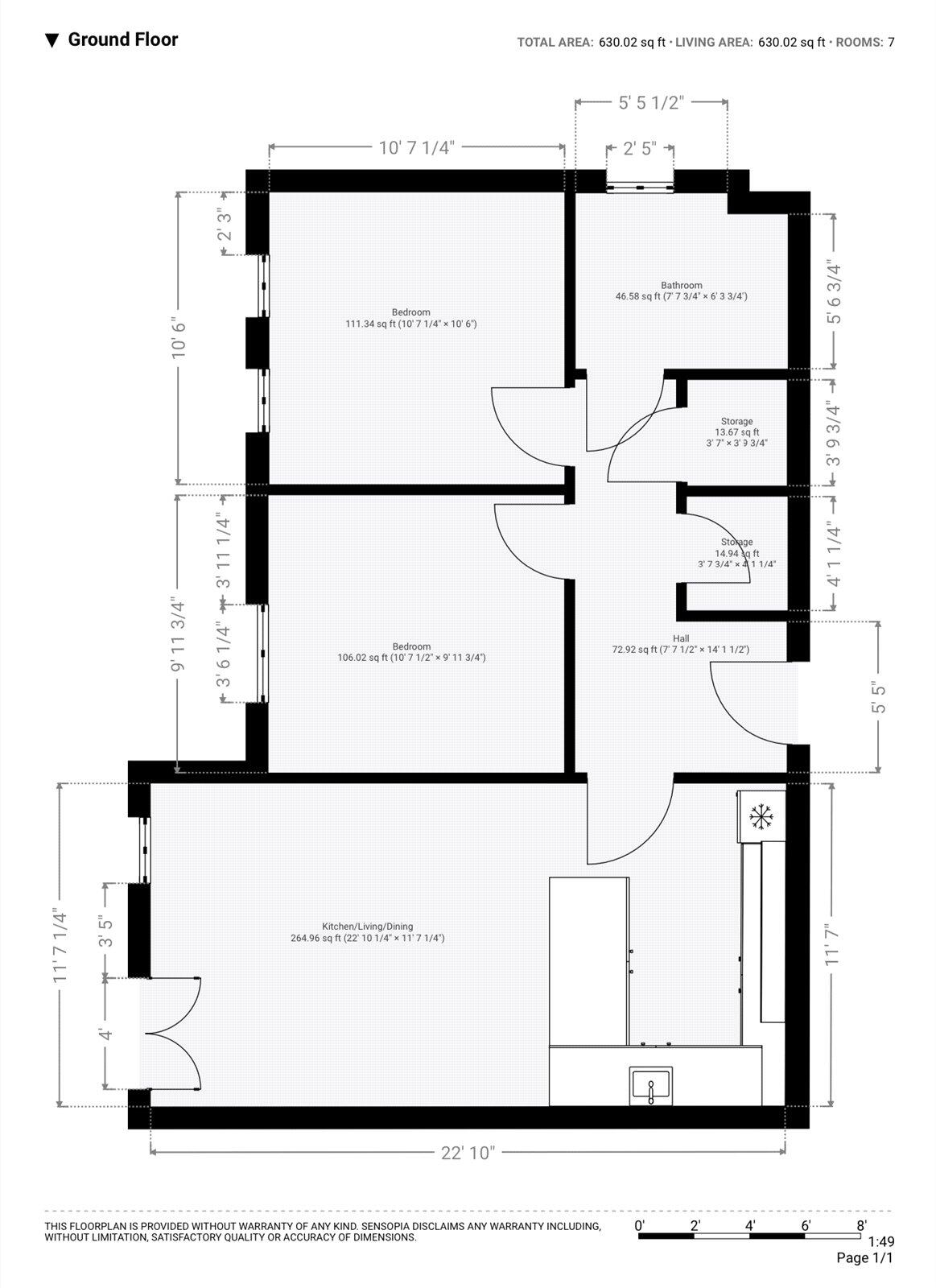
Contemporary two double bedroom ground floor apartment with access to communal gardens and allocated parking. Amazing Heswall Location!
Property Oracle says ..
This property is a two bedroom apartment located in Heswall, Wirral. Heswall is a desirable area known for its good schools and proximity to transport links. The apartment itself appears to be modern and well-maintained, based on the provided images. It benefits from a private garden, which is a valuable asset. While the list price of £88,000 is significantly lower than the average house price in the area (£614,428), it aligns more closely with other smaller properties in the immediate vicinity. The average price per square foot in the area is £388, but this is skewed by larger properties; this apartment is priced competitively at approximately £139 per sqft. Considering its condition, location, and included garden, the list price appears reasonable.
Therefore, we give this property 8 / 10. *Disclaimer: This is our option and does constitute a recommendation or financial advice. Do your own research. *
- Price
- 8
- Condition
- 9
- Location
- 9
- Land
- 7
- Bedrooms
- 2
- Bathrooms
- 1
- Sqft (est)
- 630.43
- Lot (est)
- 630.02
The heatmap indicates the level of crime in the area. The color of the heatmap indicates the crime severity and recency.
Metrics Year-on-Year
- Average area value
- 476,574.00 £Decreased by 12.58 %
- Est sale value
- 247,758.99 £Decreased by 7.75 %
- Average area rental value
- 1,200.00 £/moDecreased by 11.24 %
- Est letting value
- 0.00 £/moDecreased by 100.00 %
- Est rental Yield
- 3.02 %Increased by 1.34 %
- Crime Rate
- 17.00 %Unchanged by 0.00 %
Agent Activity
Bradshaw Farnham & Lea created the listing.
Nearby Schools
| Name | Type | Ofsted | Distance |
|---|---|---|---|
| Heswall Primary School | Community School | Good | 0.67 KM |
| Gayton Primary School | Community School | Good | 1.05 KM |
| Heswall St Peter'S Cofe Primary School | Voluntary Aided School | Good | 1.06 KM |
| Stanley School | Community Special School | Good | 1.56 KM |
| Pensby Primary School | Community School | Good | 1.72 KM |
Images
Nearby Streets
| Name | Average Price | Average Sqft | Distance |
|---|---|---|---|
| Telegraph Road | £ 106,950 | 0 | 0.00 KM |
| Constantine Avenue | £ 0 | 0 | 0.00 KM |
| Hill Top Lane | £ 0 | 0 | 0.00 KM |
| Brow Lane | £ 1,200,000 | 0 | 0.00 KM |
| Hessle Drive | £ 0 | 0 | 0.00 KM |
Nearby Transport
| Name | NLC | TLC | Distance |
|---|---|---|---|
| Heswall | 2138 | HSW | 2.17 KM |
| Neston | 2139 | NES | 5.20 KM |
| Upton (Merseyside) | 2141 | UPT | 6.61 KM |
| Leasowe | 2237 | LSW | 8.96 KM |
| Moreton (Merseyside) | 2151 | MRT | 9.12 KM |
Nearby Listings
| Address | Price | Type | Score | Distance |
|---|---|---|---|---|
| Milner Road, Heswall, Wirral, CH60 | £ 88,000 | BUY | 8 / 10 | 0.00 KM |
| Briar Drive, Heswall, Wirral | £ 400,000 | BUY | 6 / 10 | 0.05 KM |
| Milner Road, Heswall, Wirral | £ 315,000 | BUY | 8 / 10 | 0.07 KM |
| Downham Drive, Heswall, Wirral | £ 350,000 | BUY | 7 / 10 | 0.09 KM |
| Downham Drive, Heswall, Wirral, CH60 | £ 280,000 | BUY | 7 / 10 | 0.09 KM |
Nearby Properties
| Address | Price | Distance |
|---|---|---|
| 75 Milner Road | £ 80,000 | 0.01 KM |
| 61 Milner Road | £ 129,000 | 0.01 KM |
| 57 Milner Street | £ 172,500 | 0.02 KM |
| 81 Milner Road | £ 132,000 | 0.02 KM |
| 55 Milner Road | £ 160,000 | 0.02 KM |