West Homes says ..
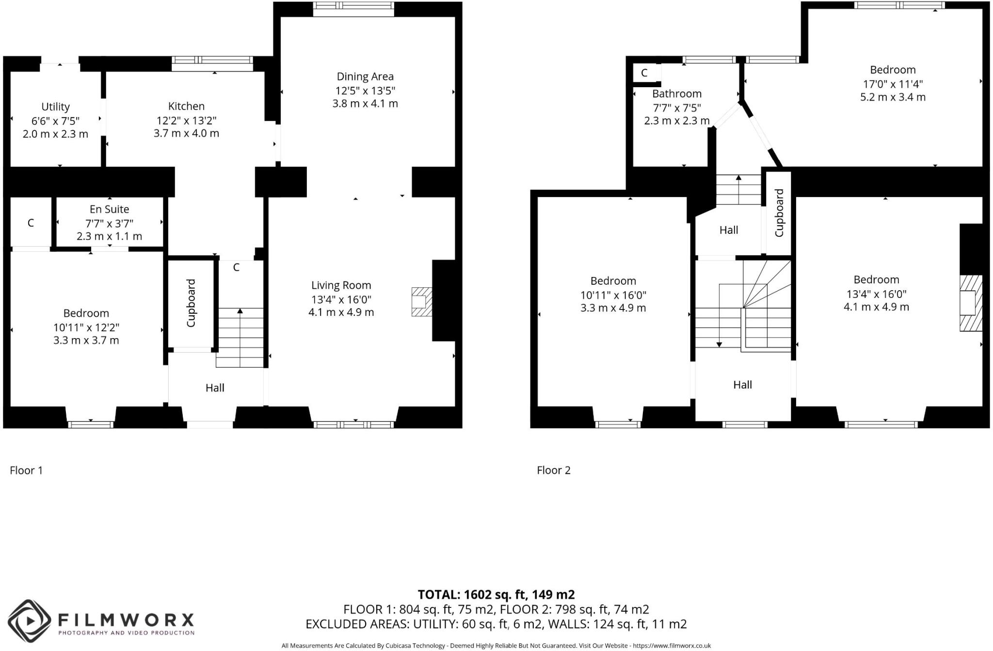
West Homes Callander is pleased to present this immaculate 4 bed semi detached property in the beautiful town of Callander. This stunning period-style home effortlessly blends timeless character with modern luxury, offering beautifully presented living spaces throughout.
Property Oracle says ..
This is a well-presented terraced property located on Main Street, Callander. The interior has been modernised, particularly in the kitchen and bathrooms, while retaining some traditional features. The property includes a garden, adding to its appeal. The listing price appears to be in line with the local market, making it an attractive option for potential buyers.
Therefore, we give this property 7 / 10. *Disclaimer: This is our option and does constitute a recommendation or financial advice. Do your own research. *
- Price
- 7
- Condition
- 8
- Location
- 7
- Land
- 7
- Bedrooms
- 4
- Bathrooms
- 2
The heatmap indicates the level of crime in the area. The color of the heatmap indicates the crime severity and recency.
Metrics Year-on-Year
- Average area value
- 534,995.00 £Increased by 15.67 %
- Average area rental value
- 911.00 £/moIncreased by 2.02 %
- Est rental Yield
- 2.04 %Decreased by 12.07 %
- Crime Rate
- 0.00 %
Agent Activity
West Homes created the listing.
Images
Nearby Streets
| Name | Average Price | Average Sqft | Distance |
|---|---|---|---|
| Buchanan Place | £ 154,995 | 0 | 0.00 KM |
| Riverside | £ 0 | 0 | 0.00 KM |
| Pearl Street | £ 130,000 | 0 | 0.00 KM |
| North Church Street | £ 146,000 | 0 | 0.00 KM |
| Craigard Road | £ 232,400 | 0 | 0.00 KM |
Nearby Listings
| Address | Price | Type | Score | Distance |
|---|---|---|---|---|
| Main Street, Callander, FK17 | £ 295,000 | BUY | 7 / 10 | 0.00 KM |
| 144 Main Street, Callander, FK17 8BG | £ 325,000 | BUY | 7 / 10 | 0.08 KM |
| Craigard Road, Callander, FK17 | £ 137,000 | BUY | 7 / 10 | 0.10 KM |
| Craigard Road, Callander | £ 120,000 | BUY | 5 / 10 | 0.10 KM |
| Craigard Road, Callander | £ 164,995 | BUY | 7 / 10 | 0.16 KM |