TU
Milton Road, Hanwell, London, W7 1LG
By Tuffin & Wren
£ 1,200,000
Reviews
3 out of 5 stars
Tuffin & Wren says ..
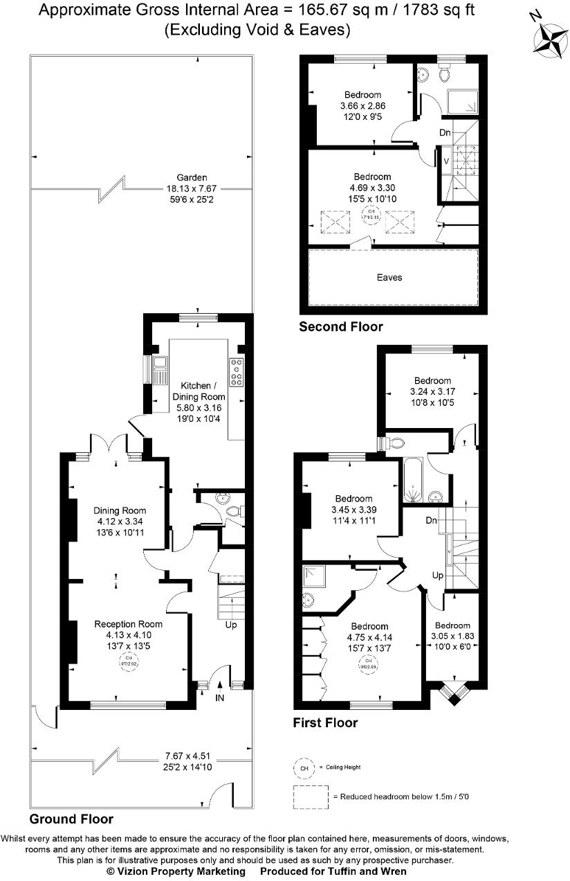
Situated in the desirable 'Poets Corner' enclave, Tuffin & Wren are privileged to offer for sale this most impressive period family home within a friendly and vibrant community. Just a sho...
Property Oracle says ..
Therefore, we give this property 7 / 10. *Disclaimer: This is our option and does constitute a recommendation or financial advice. Do your own research. *
- Price
- 8
- Condition
- 7
- Location
- 8
- Land
- 8
- Bedrooms
- 6
- Bathrooms
- 3
- Sqft (est)
- 1,783.00
The heatmap indicates the level of crime in the area. The color of the heatmap indicates the crime severity and recency.
Metrics Year-on-Year
- Average area value
- 488,738.00 £Decreased by 13.43 %
- Est sale value
- 1,914,942.00 £Increased by 78.11 %
- Average area rental value
- 2,037.00 £/moIncreased by 29.66 %
- Est letting value
- 7,132.00 £/moIncreased by 300.00 %
- Est rental Yield
- 5.00 %Increased by 49.70 %
- Crime Rate
- 4.00 %Unchanged by 0.00 %
from 564,581.00 £
from 1,075,149.00 £
from 1,571.00 £/mo
from 1,783.00 £/mo
from 3.34 %
from 4.00 %
Agent Activity
Tuffin & Wren marked this listing as sold.
Tuffin & Wren created the listing.
Nearby Schools
| Name | Type | Ofsted | Distance |
|---|---|---|---|
| Drayton Manor High School | Academy Converter | Outstanding | 0.49 KM |
| Springhallow School | Community Special School | Good | 0.54 KM |
| Hobbayne Primary School | Community School | Requires improvement | 0.66 KM |
| Jubilee Hall Children'S Centre | Children's Centre Linked Site | 0.66 KM | |
| St Joseph'S Catholic Primary School | Voluntary Aided School | Good | 0.77 KM |
Images
Nearby Streets
| Name | Average Price | Average Sqft | Distance |
|---|---|---|---|
| Park Road | £ 812,500 | 0 | 0.00 KM |
| Aria Mews | £ 0 | 0 | 0.00 KM |
| York Avenue | £ 0 | 0 | 0.00 KM |
| Filanco Court | £ 600,000 | 0 | 0.00 KM |
| Spring Meadows | £ 0 | 0 | 0.00 KM |
Nearby Transport
| Name | NLC | TLC | Distance |
|---|---|---|---|
| Drayton Green | 3099 | DRG | 0.34 KM |
| Hanwell | 3191 | HAN | 0.79 KM |
| Castle Bar Park | 3098 | CBP | 0.99 KM |
| West Ealing | 3188 | WEA | 1.29 KM |
| South Greenford | 3138 | SGN | 2.26 KM |
Nearby Listings
| Address | Price | Type | Score | Distance |
|---|---|---|---|---|
| Milton Road, Hanwell, London, W7 1LG | £ 1,200,000 | BUY | 7 / 10 | 0.00 KM |
| Milton Road, Hanwell, London, W7 1LE | £ 849,950 | BUY | 6 / 10 | 0.07 KM |
| Shakespeare Road, Hanwell | £ 450,000 | BUY | 7 / 10 | 0.07 KM |
| Allingham Close, London, W7 | £ 650,000 | BUY | 7 / 10 | 0.08 KM |
| Allingham Close, Hanwell, Ealing, W7 | £ 630,000 | BUY | Unknown | 0.08 KM |
Nearby Properties
| Address | Price | Distance |
|---|---|---|
| 54 Milton Road | £ 425,000 | 0.04 KM |
| 116 Milton Road | £ 177,000 | 0.04 KM |
| 94 Milton Road | £ 495,000 | 0.04 KM |
| 112 Milton Road | £ 474,000 | 0.04 KM |
| 74 Milton Road | £ 380,000 | 0.04 KM |