MA
Browning Road, Milehouse
By Mayer Estate Agents
£ 280,000
Reviews
4 out of 5 stars
Mayer Estate Agents says ..
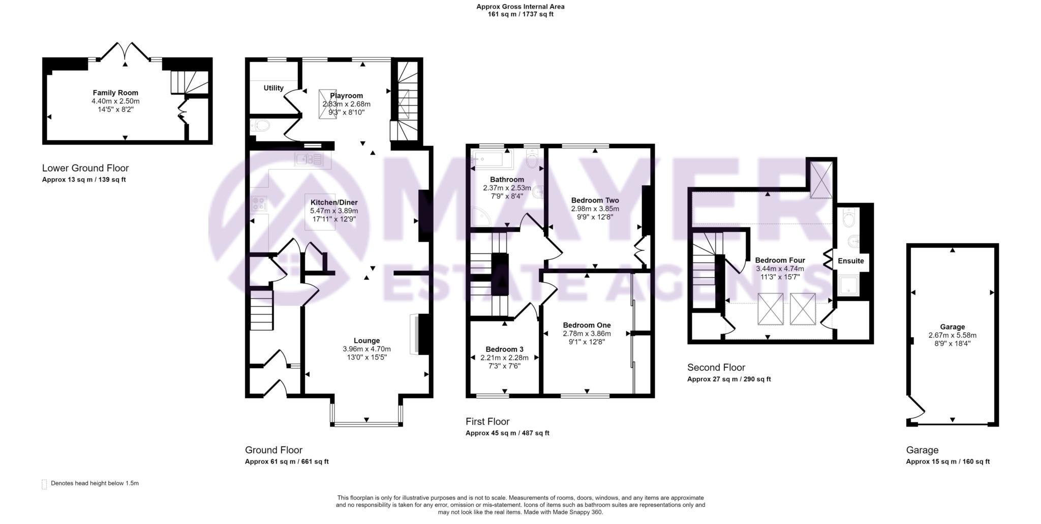
STUNNING FOUR BEDROOM CHARACTER PROPERTY - BEAUTIFUL FEATURES - OPEN PLAN KITCHEN/DINER - FAMILY ROOM - WC UTILITY - FAMILY ROOM - LOADS OF STORAGE - ENSUITE - LEVEL REAR GARDEN - GARAGE - LOVELY SPOT CLOSE TO AMENITIES
Property Oracle says ..
Therefore, we give this property 8 / 10. *Disclaimer: This is our option and does constitute a recommendation or financial advice. Do your own research. *
- Price
- 9
- Condition
- 8
- Location
- 8
- Land
- 7
- Bedrooms
- 4
- Bathrooms
- 2
- Sqft (est)
- 1,387.47
The heatmap indicates the level of crime in the area. The color of the heatmap indicates the crime severity and recency.
Metrics Year-on-Year
- Average area value
- 308,693.00 £Increased by 9.77 %
- Est sale value
- 423,178.35 £Increased by 25.51 %
- Average area rental value
- 1,292.00 £/moIncreased by 17.03 %
- Est letting value
- 1,387.47 £/mo
- Est rental Yield
- 5.02 %Increased by 6.58 %
- Crime Rate
- 3.00 %Unchanged by 0.00 %
from 281,218.00 £
from 337,155.21 £
from 1,104.00 £/mo
from 0.00 £/mo
from 4.71 %
from 3.00 %
Agent Activity
Mayer Estate Agents created the listing.
Nearby Schools
| Name | Type | Ofsted | Distance |
|---|---|---|---|
| Scott Medical And Healthcare College | Studio Schools | Good | 0.56 KM |
| Stoke Damerel Community College | Academy Converter | Requires improvement | 0.56 KM |
| Ford Primary School | Academy Converter | 0.87 KM | |
| Montpelier Primary School | Academy Converter | Good | 0.90 KM |
| Sure Start Lark Children'S Centre | Children's Centre | 1.01 KM |
Images
Nearby Streets
| Name | Average Price | Average Sqft | Distance |
|---|---|---|---|
| Allenby Road | £ 175,000 | 0 | 0.00 KM |
| Elmcroft | £ 0 | 0 | 0.00 KM |
| Dingle Road | £ 0 | 0 | 0.00 KM |
| Church Street | £ 280,000 | 0 | 0.00 KM |
| The Elms | £ 0 | 0 | 0.00 KM |
Nearby Transport
| Name | NLC | TLC | Distance |
|---|---|---|---|
| Devonport | 3579 | DPT | 1.48 KM |
| Dockyard (Devonport) | 3588 | DOC | 1.83 KM |
| Plymouth | 3580 | PLY | 2.06 KM |
| Keyham | 3571 | KEY | 2.22 KM |
| St Budeaux Ferry Road | 3590 | SBF | 3.42 KM |
Nearby Listings
| Address | Price | Type | Score | Distance |
|---|---|---|---|---|
| Browning Road, Milehouse | £ 280,000 | BUY | 8 / 10 | 0.00 KM |
| Browning Road, Milehouse | £ 240,000 | BUY | 6 / 10 | 0.05 KM |
| Browning Road, Milehouse, Plymouth. Charming 1930s/40s Family Home with Loft Conversion, sunny southerly garden, GARAGE | £ 250,000 | BUY | 7 / 10 | 0.05 KM |
| Browning Road, Plymouth Beautifully Presented Period Mid-Terrace Home with Garage – A True Gem! | £ 240,000 | BUY | 7 / 10 | 0.05 KM |
| Browning Road, Milehouse | £ 265,000 | BUY | 7 / 10 | 0.07 KM |
Nearby Properties
| Address | Price | Distance |
|---|---|---|
| 149 Browning Road | £ 158,000 | 0.04 KM |
| 173 Browning Road | £ 167,000 | 0.04 KM |
| 179 Browning Road | £ 45,000 | 0.04 KM |
| 177 Browning Road | £ 59,950 | 0.04 KM |
| 116 Browning Road | £ 166,000 | 0.04 KM |