Eco-home plot in Compton Dundon, Somerton
By Sandersons
£ 500,000
Reviews
3 out of 5 stars
Sandersons says ..
Guide Price - £500,000. to £550,000. Exceptional opportunity for a single storey, new-build four bed eco-home with stone outbuildings, garden, orchard & paddock set in approx. 1.4 acres. Located in the popular village of Compton Dundon
Property Oracle says ..
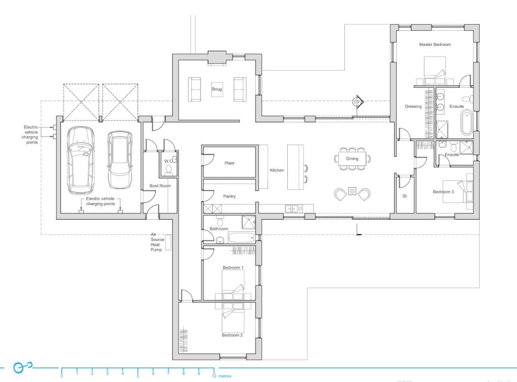
Based on the provided information, this property presents a unique opportunity. The location in Compton Dundon, Somerset offers a tranquil setting with proximity to Compton Dundon School (1.45km) and other schools within a 3km radius. The images reveal a substantial plot of land, suggesting ample space and potential for various uses. However, the lack of square footage data for the house itself prevents a definitive assessment of its size and value per square foot. The list price of £500,000 is slightly higher than the average price of £492,127 for the area, but considering the potential of the land and the apparent quality of the build (as shown in the architectural drawings), it may be justifiable. A full assessment requires more details on the house’s internal layout and finishes.
Therefore, we give this property 7 / 10. *Disclaimer: This is our option and does constitute a recommendation or financial advice. Do your own research. *
- Price
- 7
- Condition
- 8
- Location
- 7
- Land
- 9
- Bedrooms
- 4
- Bathrooms
- 3
The heatmap indicates the level of crime in the area. The color of the heatmap indicates the crime severity and recency.
Metrics Year-on-Year
- Average area value
- 1,000,000.00 £Increased by 113.64 %
- Average area rental value
- 1,063.00 £/moDecreased by 28.32 %
- Est rental Yield
- 1.28 %Decreased by 66.32 %
- Crime Rate
- 0.00 %
Agent Activity
Sandersons created the listing.
Nearby Schools
| Name | Type | Ofsted | Distance |
|---|---|---|---|
| Compton Dundon School | Other Independent Special School | Good | 1.45 KM |
| Avalon School | Community Special School | Good | 3.15 KM |
| Street Building | Children's Centre Linked Site | 3.23 KM | |
| Millfield School | Other Independent School | 3.24 KM | |
| Brookside Community Primary School | Academy Converter | Good | 3.29 KM |
Images
Nearby Streets
| Name | Average Price | Average Sqft | Distance |
|---|---|---|---|
| Home Field Close | £ 0 | 0 | 0.00 KM |
Nearby Listings
| Address | Price | Type | Score | Distance |
|---|---|---|---|---|
| Eco-home plot in Compton Dundon, Somerton | £ 300,000 | BUY | 6 / 10 | 0.00 KM |
| Eco-home plot in Compton Dundon, Somerton | £ 500,000 | BUY | 7 / 10 | 0.00 KM |
| Castlebrook, Compton Dundon, Somerton | £ 400,000 | BUY | 7 / 10 | 0.09 KM |
| Compton Dundon, Somerton | £ 450,000 | BUY | 6 / 10 | 0.09 KM |
| Compton Dundon, Somerton | £ 625,000 | BUY | 8 / 10 | 0.10 KM |
Nearby Properties
| Address | Price | Distance |
|---|---|---|
| Crosslands | £ 350,000 | 0.10 KM |
| Compton House | £ 320,000 | 0.10 KM |
| Metcalfe House | £ 435,000 | 0.10 KM |
| Castlebrook House | £ 1,082,500 | 0.23 KM |
| Brook Barn Cottage | £ 266,500 | 0.23 KM |