Brighton Road, Lancing, BN15 8RH
By Jacobs Steel
£ 1,500,000
Reviews
3 out of 5 stars
Jacobs Steel says ..
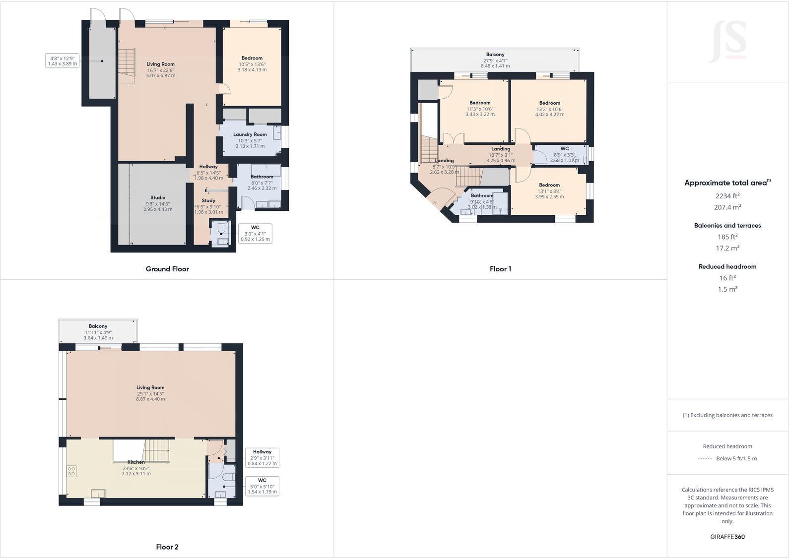
We are delighted to offer to market this unique and modern beach house property with picturesque views over the spectacular coastline. Boasting in excess of 2,345 sq ft and arranged over three floors, this fantastic home is the perfect seaside retreat.
Property Oracle says ..
This is a modern detached property located on Brighton Road in Lancing, West Sussex. The house features four bedrooms and two bathrooms. The property benefits from its proximity to the beach, Lancing railway station, and nearby schools. The interiors are modern and well-maintained, with a high-quality finish throughout, including a sauna. The property offers multiple terraces with sea views and a garden. The list price of £1,500,000 is considerably higher than the average property price in the area, but may be justified by the unique features, modern amenities, and desirable waterfront location.
Therefore, we give this property 7 / 10. *Disclaimer: This is our option and does constitute a recommendation or financial advice. Do your own research. *
- Price
- 6
- Condition
- 9
- Location
- 8
- Land
- 7
- Bedrooms
- 4
- Bathrooms
- 2
The heatmap indicates the level of crime in the area. The color of the heatmap indicates the crime severity and recency.
Metrics Year-on-Year
- Average area value
- 827,000.00 £Decreased by 61.77 %
- Average area rental value
- 2,642.00 £/moIncreased by 25.21 %
- Est rental Yield
- 3.83 %Increased by 227.35 %
- Crime Rate
- 10.00 %Unchanged by 0.00 %
Agent Activity
Jacobs Steel created the listing.
Nearby Schools
| Name | Type | Ofsted | Distance |
|---|---|---|---|
| Springboard Education | Other Independent Special School | Requires improvement | 0.85 KM |
| Lancing Children & Family Centre | Children's Centre | 1.15 KM | |
| The Globe Primary Academy | Academy Sponsor Led | Good | 1.55 KM |
| Boundstone Nursery School | Local Authority Nursery School | Outstanding | 1.59 KM |
| Boundstone Children & Family Centre | Children's Centre | 1.69 KM |
Images
Nearby Streets
| Name | Average Price | Average Sqft | Distance |
|---|---|---|---|
| Kimber Close | £ 450,000 | 0 | 0.00 KM |
| Grinstead Lane | £ 168,750 | 0 | 0.00 KM |
| Penhill Mews | £ 180,000 | 0 | 0.00 KM |
| Freshbrook Road | £ 0 | 0 | 0.00 KM |
| Field Close | £ 0 | 0 | 0.00 KM |
Nearby Transport
| Name | NLC | TLC | Distance |
|---|---|---|---|
| Lancing | 5275 | LAC | 1.02 KM |
| East Worthing | 5283 | EWR | 2.96 KM |
| Worthing | 5279 | WRH | 5.30 KM |
| Shoreham-By-Sea | 5277 | SSE | 6.47 KM |
| West Worthing | 5278 | WWO | 7.16 KM |
Nearby Listings
| Address | Price | Type | Score | Distance |
|---|---|---|---|---|
| Brighton Road, Lancing | £ 290,000 | BUY | 5 / 10 | 0.00 KM |
| Brighton Road, Lancing, BN15 8RH | £ 1,500,000 | BUY | 7 / 10 | 0.00 KM |
| Beach Green, Lancing, West Sussex, BN15 | £ 25,000 | BUY | 6 / 10 | 0.05 KM |
| Bessborough Terrace, Lancing | £ 350,000 | BUY | 7 / 10 | 0.07 KM |
| Admiral Court 14-16, Brighton Road, Lancing, BN15 8SN | £ 265,000 | BUY | Unknown | 0.07 KM |
Nearby Properties
| Address | Price | Distance |
|---|---|---|
| 1 Bessborough Terrace | £ 325,000 | 0.06 KM |
| 6 Bessborough Terrace | £ 295,000 | 0.06 KM |
| 10 Bessborough Terrace | £ 172,500 | 0.06 KM |
| 9 Bessborough Terrace | £ 285,000 | 0.06 KM |
| 7 Bessborough Terrace | £ 275,000 | 0.06 KM |