Chancellors says ..
Being sold via Secure Sale online bidding. Terms & Conditions apply. Starting Bid £340,000
Property Oracle says ..
Therefore, we give this property 7 / 10. *Disclaimer: This is our option and does constitute a recommendation or financial advice. Do your own research. *
- Price
- 8
- Condition
- 8
- Location
- 7
- Land
- 6
- Bedrooms
- 3
- Bathrooms
- 2
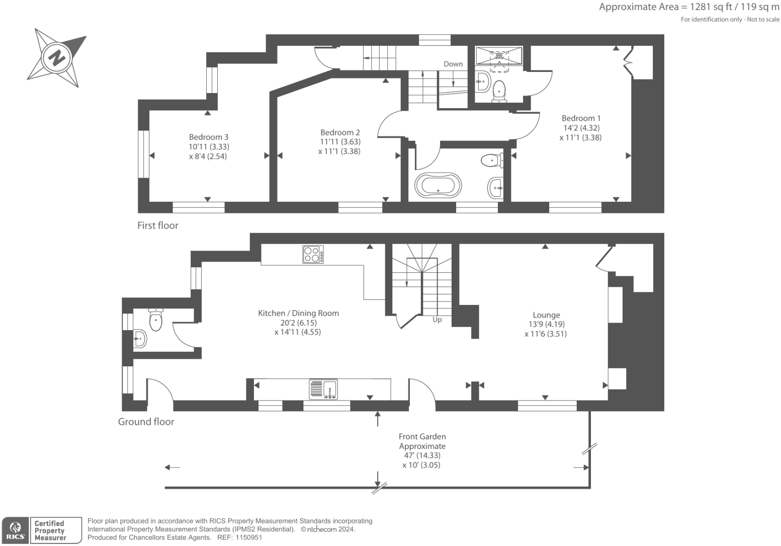
- Sqft (est)
- 838.61
The heatmap indicates the level of crime in the area. The color of the heatmap indicates the crime severity and recency.
Metrics Year-on-Year
- Average area value
- 990,500.00 £Increased by 38.01 %
- Est sale value
- 402,532.80 £Increased by 12.94 %
- Average area rental value
- 1,536.00 £/moDecreased by 9.43 %
- Est letting value
- 0.00 £/moDecreased by 100.00 %
- Est rental Yield
- 1.86 %Decreased by 34.51 %
- Crime Rate
- 429.00 %Unchanged by 0.00 %
from 717,723.00 £
from 356,409.25 £
from 1,696.00 £/mo
from 838.61 £/mo
from 2.84 %
from 429.00 %
Agent Activity
Chancellors created the listing.
Nearby Schools
| Name | Type | Ofsted | Distance |
|---|---|---|---|
| Swalcliffe Park School Cio | Non-maintained Special School | Outstanding | 0.17 KM |
| Sibford School | Other Independent School | 3.35 KM | |
| Sibford Gower Endowed Primary School | Academy Converter | Good | 3.95 KM |
| Hook Norton Church Of England Primary School | Voluntary Controlled School | Good | 5.36 KM |
| Shenington Church Of England Primary School | Voluntary Aided School | Good | 5.42 KM |
Images
Nearby Streets
| Name | Average Price | Average Sqft | Distance |
|---|---|---|---|
| Bakers Lane | £ 0 | 0 | 0.00 KM |
| Swalcliffe Lea | £ 1,750,000 | 0 | 0.00 KM |
Nearby Listings
| Address | Price | Type | Score | Distance |
|---|---|---|---|---|
| Swalcliffe, Oxfordshire, OX15 | £ 340,000 | BUY | 7 / 10 | 0.00 KM |
| Swalcliffe, Oxfordshire, OX15 | £ 385,000 | BUY | 7 / 10 | 0.00 KM |
| Bakers Lane, Swalcliffe, Banbury, Oxfordshire, OX15 5EN | £ 340,000 | BUY | 7 / 10 | 0.09 KM |
| Wisteria Cottage, The Bank, Main Road, Swalcliffe | £ 375,000 | BUY | 7 / 10 | 0.18 KM |
| Main Road, Swalcliffe, Banbury, Oxfordshire, OX15 | £ 650,000 | BUY | 7 / 10 | 0.19 KM |
Nearby Properties
| Address | Price | Distance |
|---|---|---|
| 4 Bakers Lane | £ 155,000 | 0.06 KM |
| 5 Bakers Lane | £ 310,000 | 0.06 KM |
| 2 The Square | £ 425,000 | 0.09 KM |
| 1 The Square | £ 580,000 | 0.09 KM |
| Sparrow Hall | £ 1,200,000 | 0.09 KM |