Whittley Parish says ..
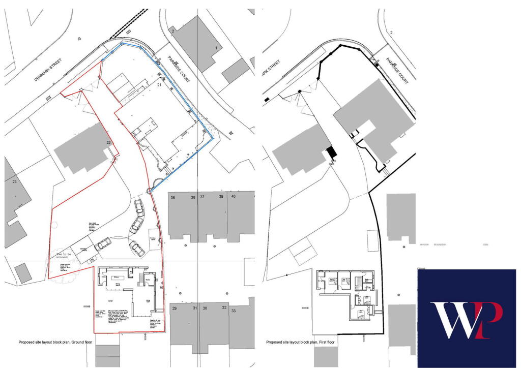
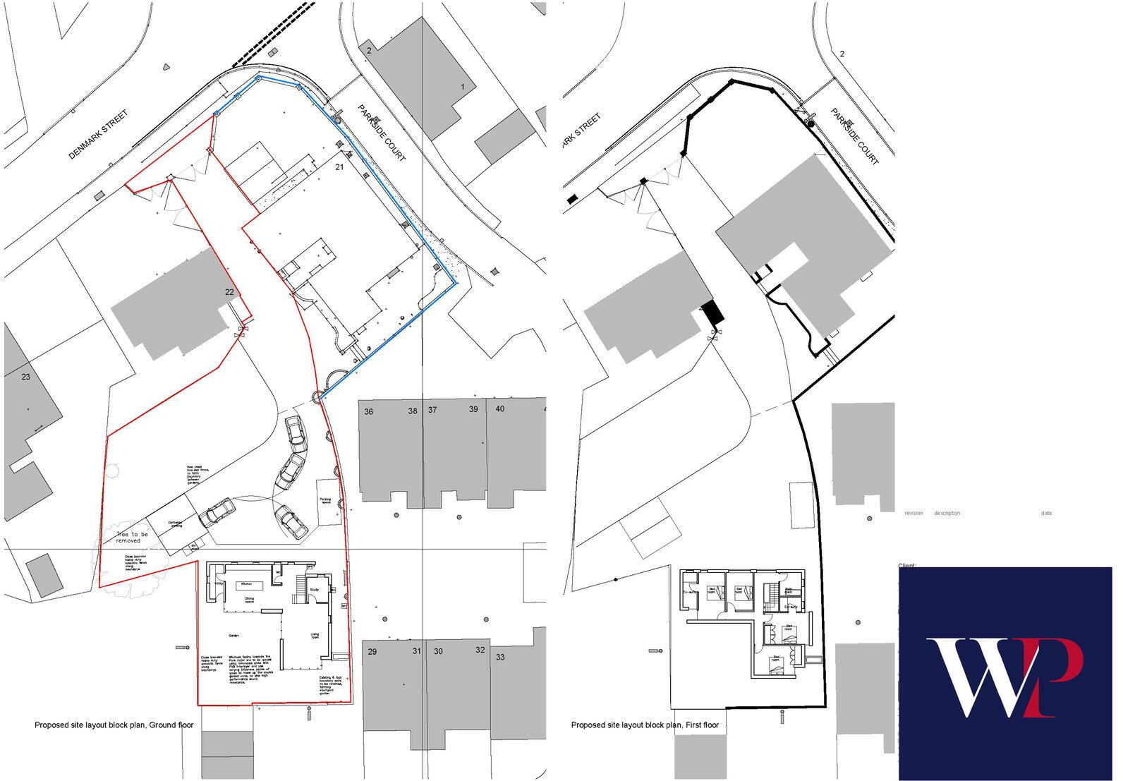
*Development Opportunity* A rare opportunity to acquire a individual building plot, complete with planning consent for a large, four-bedroom detached property within the town centre
Property Oracle says ..
Therefore, we give this property 6 / 10. *Disclaimer: This is our option and does constitute a recommendation or financial advice. Do your own research. *
- Price
- 8
- Condition
- 3
- Location
- 7
- Land
- 7
- Bedrooms
- 4
- Bathrooms
- 3
- Sqft (est)
- 839.59
- Lot (est)
- 2,109.73
The heatmap indicates the level of crime in the area. The color of the heatmap indicates the crime severity and recency.
Metrics Year-on-Year
- Average area value
- 223,333.00 £Decreased by 25.65 %
- Est sale value
- 248,518.64 £Decreased by 1.99 %
- Average area rental value
- 1,067.00 £/moIncreased by 8.66 %
- Est letting value
- 839.59 £/mo
- Est rental Yield
- 5.73 %Increased by 46.17 %
- Crime Rate
- 10.00 %Unchanged by 0.00 %
from 300,393.00 £
from 253,556.18 £
from 982.00 £/mo
from 0.00 £/mo
from 3.92 %
from 10.00 %
Agent Activity
Whittley Parish created the listing.
Nearby Schools
| Name | Type | Ofsted | Distance |
|---|---|---|---|
| Diss Church Of England Junior Academy | Academy Sponsor Led | 0.72 KM | |
| Diss High School | Academy Converter | Good | 1.16 KM |
| Diss Children'S Centre | Children's Centre | 1.16 KM | |
| Palgrave Church Of England Primary School | Academy Converter | Good | 1.31 KM |
| Diss Infant Academy And Nursery | Academy Converter | 1.35 KM |
Images
Nearby Streets
| Name | Average Price | Average Sqft | Distance |
|---|---|---|---|
| Manor Gardens | £ 0 | 0 | 0.00 KM |
| Market Place | £ 0 | 0 | 0.00 KM |
| Cotman Close | £ 0 | 0 | 0.00 KM |
| Saint Mary's Court | £ 115,000 | 0 | 0.00 KM |
| Williamson Close | £ 0 | 0 | 0.00 KM |
Nearby Transport
| Name | NLC | TLC | Distance |
|---|---|---|---|
| Diss | 7348 | DIS | 2.03 KM |
Nearby Listings
| Address | Price | Type | Score | Distance |
|---|---|---|---|---|
| Denmark Street, Diss | £ 625,000 | BUY | 6 / 10 | 0.00 KM |
| Denmark Street, Diss | £ 400,000 | BUY | 5 / 10 | 0.00 KM |
| Denmark Street, Diss | £ 300,000 | BUY | 5 / 10 | 0.00 KM |
| Denmark Street, Diss | £ 170,000 | BUY | 6 / 10 | 0.00 KM |
| Denmark Street, Diss | £ 290,000 | BUY | Unknown | 0.00 KM |
Nearby Properties
| Address | Price | Distance |
|---|---|---|
| 14a Denmark Street | £ 350,000 | 0.01 KM |
| 8a Denmark Street | £ 92,000 | 0.01 KM |
| 17 Denmark Street | £ 350,000 | 0.01 KM |
| 27 Denmark Street | £ 210,000 | 0.01 KM |
| 12 Denmark Street | £ 175,000 | 0.01 KM |