3 Thickett Close, Walsall, WS2 9RG
By Bond Wolfe
£ 55,000
Reviews
2 out of 5 stars
Bond Wolfe says ..
For Sale By Public Auction 10 December 2025 A vacant freehold double fronted end terraced property
Property Oracle says ..
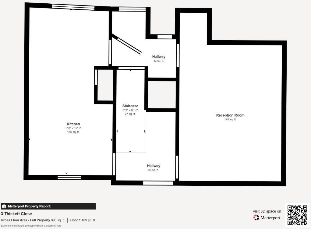
This is a 3-bedroom terraced property in Pleck, Walsall, presented by Bond Wolfe. The property requires significant renovation throughout. It features a garden with a shed and greenhouse. The location offers proximity to schools and transportation links. The asking price of £55,000 represents a potential investment opportunity for those willing to undertake a comprehensive refurbishment project.
Therefore, we give this property 5 / 10. *Disclaimer: This is our option and does constitute a recommendation or financial advice. Do your own research. *
- Price
- 9
- Condition
- 2
- Location
- 6
- Land
- 6
- Bedrooms
- 3
- Bathrooms
- 0
- Sqft (est)
- 413.00
The heatmap indicates the level of crime in the area. The color of the heatmap indicates the crime severity and recency.
Metrics Year-on-Year
- Average area value
- 214,356.00 £Increased by 35.63 %
- Est sale value
- 90,860.00 £Increased by 6.80 %
- Average area rental value
- 988.00 £/moIncreased by 25.22 %
- Est letting value
- 413.00 £/moUnchanged by 0.00 %
- Est rental Yield
- 5.53 %Decreased by 7.68 %
- Crime Rate
- 8.00 %Unchanged by 0.00 %
Agent Activity
Bond Wolfe created the listing.
Nearby Schools
| Name | Type | Ofsted | Distance |
|---|---|---|---|
| Hillary Primary School | Community School | Good | 0.63 KM |
| Alumwell Pleck Sure Start Children'S Centre | Children's Centre | 0.89 KM | |
| West Walsall E-Act Academy | Academy Sponsor Led | Good | 0.98 KM |
| Alumwell Nursery School | Local Authority Nursery School | Outstanding | 1.16 KM |
| Alumwell Junior School | Community School | Good | 1.21 KM |
Images
Nearby Streets
| Name | Average Price | Average Sqft | Distance |
|---|---|---|---|
| St Johns Road | £ 0 | 0 | 0.00 KM |
| Somers Road | £ 0 | 0 | 0.00 KM |
| Ford Street | £ 0 | 0 | 0.00 KM |
| Checketts Street | £ 140,000 | 0 | 0.00 KM |
| Alder Road | £ 150,000 | 0 | 0.00 KM |
Nearby Transport
| Name | NLC | TLC | Distance |
|---|---|---|---|
| Bescot Stadium | 1003 | BSC | 1.98 KM |
| Walsall | 1216 | WSL | 2.31 KM |
| Tame Bridge Parkway | 1010 | TAB | 3.96 KM |
| Bloxwich | 1141 | BLX | 4.80 KM |
| Bloxwich North | 1018 | BWN | 5.74 KM |
Nearby Listings
| Address | Price | Type | Score | Distance |
|---|---|---|---|---|
| 3 Thickett Close, Walsall, WS2 9RG | £ 55,000 | BUY | 5 / 10 | 0.00 KM |
| Thickett Close, Walsall, West Midlands, WS2 | £ 100,000 | BUY | 5 / 10 | 0.04 KM |
| Scarborough Road, Walsall, West Midlands, WS2 | £ 130,000 | BUY | 5 / 10 | 0.12 KM |
| Woodwards Place, Walsall | £ 249,950 | BUY | 6 / 10 | 0.24 KM |
| Kingsley Street, Walsall | £ 200,000 | BUY | 5 / 10 | 0.28 KM |
Nearby Properties
| Address | Price | Distance |
|---|---|---|
| 19 Thickett Close | £ 73,000 | 0.04 KM |
| 28 Thickett Close | £ 60,000 | 0.04 KM |
| 20 Woodwards Road | £ 117,500 | 0.05 KM |
| 19 Scarborough Road | £ 95,000 | 0.12 KM |
| 41 Scarborough Road | £ 89,750 | 0.12 KM |