Nelson Road, Dartmouth, Devon, TQ6
By Fulfords
£ 400,000
Reviews
3 out of 5 stars
Fulfords says ..
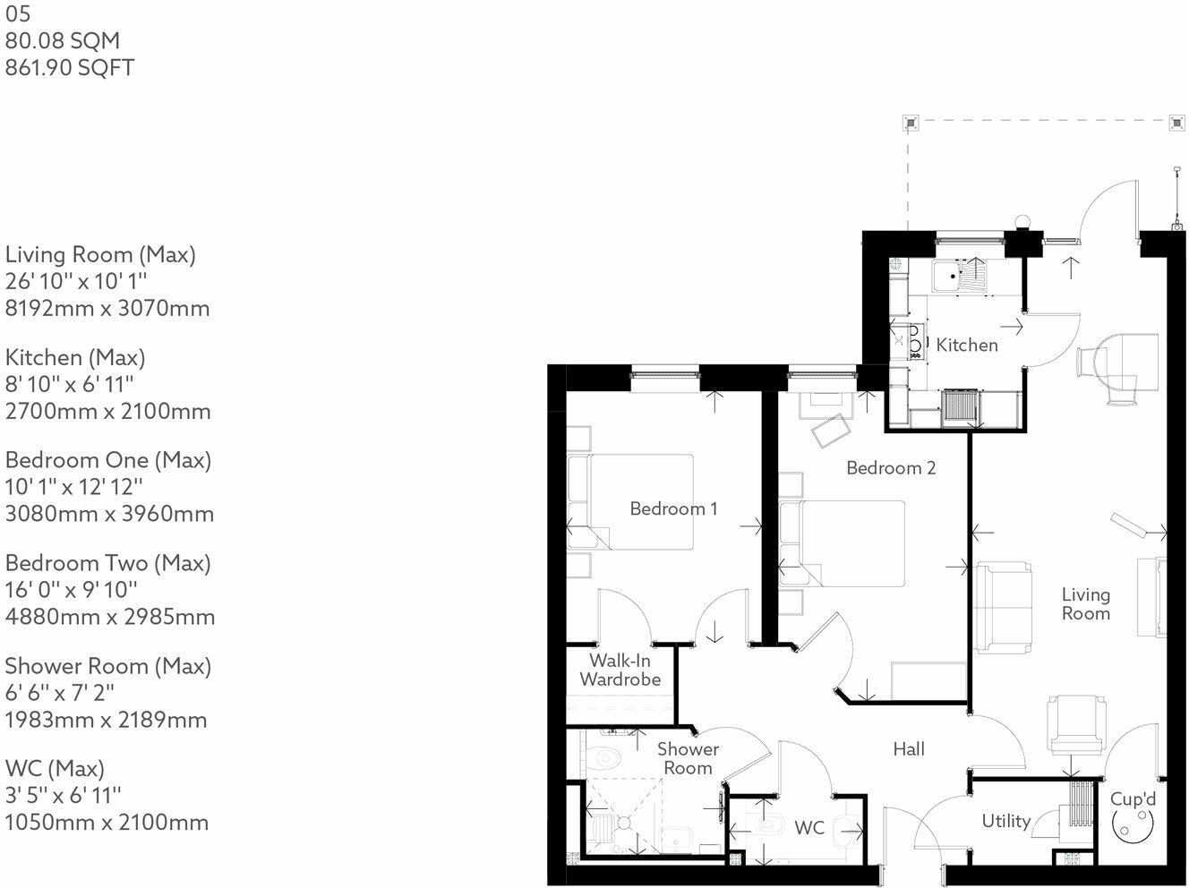
*REGISTER YOUR INTEREST IN THESE SIMPLY STUNNING RETIREMENT LIVING PLUS DEVELOPMENT - RETIRE TO DARTMOUTH* PRICES FROM £400,000 Coming soon, Mewstone Place, this Retirement Living PLUS development will offer one and two bedroom properties for sale in Dartmouth. All apa...
Property Oracle says ..
This property is a modern two-bedroom flat located in the desirable coastal town of Dartmouth, Devon. The photos suggest a high-quality finish and modern amenities. The interior boasts a contemporary design with a well-equipped kitchen, spacious living area, and well-presented bedrooms and bathrooms. The property’s location in Dartmouth provides access to good schools, and the nearby streets suggest a strong local market. The lack of provided external space is standard for flats. Overall, while specific pricing per sqft for comparable properties is lacking, the property represents a contemporary apartment in a sought-after location. Further investigation into local transportation specifics and a detailed property survey would provide a more complete assessment.
Therefore, we give this property 6 / 10. *Disclaimer: This is our option and does constitute a recommendation or financial advice. Do your own research. *
- Price
- 7
- Condition
- 9
- Location
- 7
- Land
- 1
- Bedrooms
- 2
- Bathrooms
- 0
- Sqft (est)
- 861.90
The heatmap indicates the level of crime in the area. The color of the heatmap indicates the crime severity and recency.
Metrics Year-on-Year
- Average area value
- 831,571.00 £Increased by 59.88 %
- Est sale value
- 702,448.50 £Increased by 115.04 %
- Average area rental value
- 1,217.00 £/moDecreased by 4.92 %
- Est letting value
- 861.90 £/mo
- Est rental Yield
- 1.76 %Decreased by 40.34 %
- Crime Rate
- 33.00 %Unchanged by 0.00 %
Agent Activity
Fulfords created the listing.
Nearby Schools
| Name | Type | Ofsted | Distance |
|---|---|---|---|
| St John The Baptist Roman Catholic Primary School, Dartmouth | Academy Converter | Good | 0.67 KM |
| Dartmouth & District Children'S Centre | Children's Centre | 0.83 KM | |
| Dartmouth Academy | Academy Sponsor Led | Good | 0.92 KM |
| Stoke Fleming Community Primary School | Academy Converter | 2.43 KM | |
| Kingswear Community Primary School | Academy Converter | Good | 3.85 KM |
Images
Nearby Streets
| Name | Average Price | Average Sqft | Distance |
|---|---|---|---|
| Cotton Road | £ 452,667 | 0 | 0.00 KM |
| Barton Way | £ 318,019 | 0 | 0.00 KM |
| Poplar Road | £ 0 | 0 | 0.00 KM |
| Collingwood Road | £ 0 | 0 | 0.00 KM |
| Laburnum Avenue | £ 0 | 0 | 0.00 KM |
Nearby Listings
| Address | Price | Type | Score | Distance |
|---|---|---|---|---|
| Nelson Road, Dartmouth, Devon, TQ6 | £ 300,000 | BUY | 6 / 10 | 0.00 KM |
| Nelson Road, Dartmouth, Devon, TQ6 | £ 400,000 | BUY | 6 / 10 | 0.00 KM |
| Norton View, Dartmouth | £ 350,000 | BUY | 7 / 10 | 0.15 KM |
| Dartmouth | £ 499,995 | BUY | 6 / 10 | 0.18 KM |
| Dartmouth | £ 934,995 | BUY | 6 / 10 | 0.18 KM |
Nearby Properties
| Address | Price | Distance |
|---|---|---|
| 14 Norton View | £ 267,500 | 0.15 KM |
| 15 Norton View | £ 250,000 | 0.15 KM |
| 3 Norton View | £ 198,000 | 0.15 KM |
| 10 Norton View | £ 265,000 | 0.15 KM |
| 8 Norton View | £ 169,950 | 0.15 KM |