Richard Kendall says ..
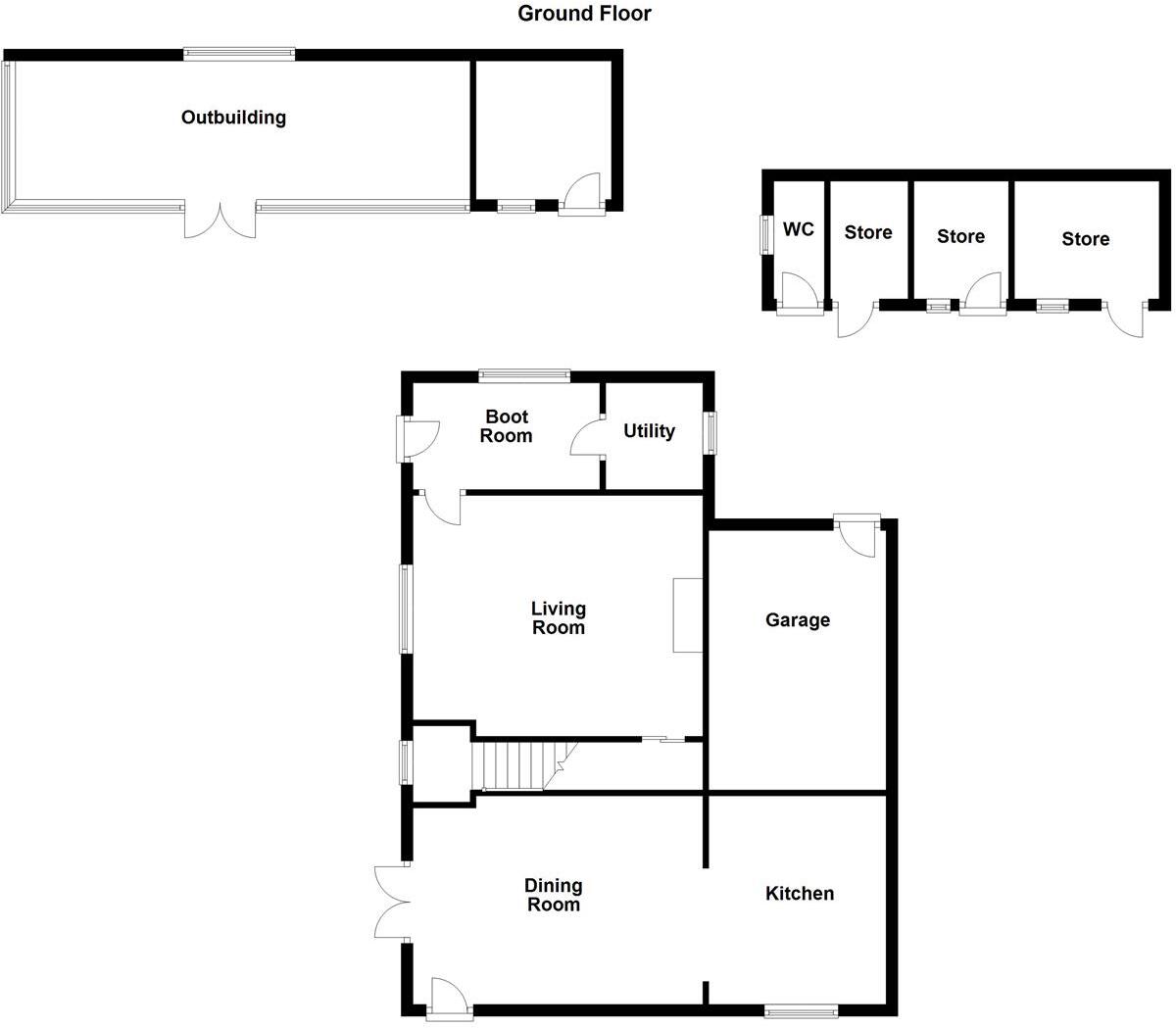
A beautifully REFURBISHED three bedroom end terrace home, offering stunning RURAL VIEWS, off road parking with an electric car charging port and an EXPANSIVE garden. VIEWING ESSENTIAL. EPC rating D65.
Property Oracle says ..
This three-bedroom property in Wakefield South, West Yorkshire presents a compelling opportunity for prospective buyers. The property boasts a recently updated kitchen and bathroom, creating a modern and functional living space. The inclusion of a large, well-maintained garden is a considerable asset, providing ample space for outdoor activities and relaxation. The location offers convenient access to local amenities, including the nearby Sandal and Agbrigg train station, and several well-regarded schools are within walking distance. While the immediate surrounding area displays a range of property values, this property’s features and updates suggest a competitive price point within the market. The absence of plot size information in the provided data limits a complete assessment of land value, but the garden’s size is clearly a positive aspect. Overall, this property offers a good balance of modern amenities, family-friendly features, and convenient location, making it an attractive option for a variety of buyers.
Therefore, we give this property 6 / 10. *Disclaimer: This is our option and does constitute a recommendation or financial advice. Do your own research. *
- Price
- 7
- Condition
- 7
- Location
- 7
- Land
- 6
- Bedrooms
- 3
- Bathrooms
- 1
- Sqft (est)
- 1,600.00
The heatmap indicates the level of crime in the area. The color of the heatmap indicates the crime severity and recency.
Metrics Year-on-Year
- Average area value
- 324,158.00 £Decreased by 18.47 %
- Est sale value
- 497,600.00 £Decreased by 11.65 %
- Average area rental value
- 1,159.00 £/moIncreased by 34.61 %
- Est letting value
- 1,600.00 £/mo
- Est rental Yield
- 4.29 %Increased by 65.00 %
- Crime Rate
- 24.00 %Unchanged by 0.00 %
Agent Activity
Richard Kendall created the listing.
Nearby Schools
| Name | Type | Ofsted | Distance |
|---|---|---|---|
| Sandal Magna Community Academy | Academy Sponsor Led | Good | 0.81 KM |
| The Castle Nursery School | Local Authority Nursery School | Good | 1.02 KM |
| St Thomas � Becket Catholic Secondary School, A Voluntary Academy | Academy Converter | Good | 1.09 KM |
| The Castle Children'S Centre | Children's Centre | 1.22 KM | |
| Sandal Castle Va Community Primary School | Voluntary Aided School | Good | 1.70 KM |
Images
Nearby Streets
| Name | Average Price | Average Sqft | Distance |
|---|---|---|---|
| Littlewood Ct | £ 300,000 | 0 | 0.00 KM |
| Holt Avenue | £ 290,000 | 0 | 0.00 KM |
| St John's View | £ 355,000 | 0 | 0.00 KM |
| Birch Street | £ 0 | 0 | 0.00 KM |
| Park Hill Close | £ 234,995 | 0 | 0.00 KM |
Nearby Transport
| Name | NLC | TLC | Distance |
|---|---|---|---|
| Sandal And Agbrigg | 8358 | SNA | 0.81 KM |
| Wakefield Kirkgate | 8584 | WKK | 1.91 KM |
| Wakefield Westgate | 8591 | WKF | 3.81 KM |
| Outwood | 8309 | OUT | 6.58 KM |
| Normanton | 8528 | NOR | 6.84 KM |
Nearby Listings
| Address | Price | Type | Score | Distance |
|---|---|---|---|---|
| Warwick Street, Wakefield | £ 200,000 | BUY | 6 / 10 | 0.00 KM |
| Warwick Street, Agbrigg, WF1 | £ 120,000 | BUY | Unknown | 0.03 KM |
| Warwick Street, Agbrigg, Wakefield | £ 125,000 | BUY | 6 / 10 | 0.05 KM |
| Agbrigg Road, Agbrigg, Wakefield, WF1 | £ 142,950 | BUY | 6 / 10 | 0.19 KM |
| Agbrigg Road, Wakefield, West Yorkshire, WF1 | £ 200,000 | BUY | 5 / 10 | 0.19 KM |
Nearby Properties
| Address | Price | Distance |
|---|---|---|
| 1 Warwick Street | £ 45,000 | 0.03 KM |
| 14 Warwick Street | £ 76,500 | 0.03 KM |
| 20 Warwick Street | £ 63,000 | 0.03 KM |
| 22 Warwick Street | £ 55,000 | 0.03 KM |
| 21 Warwick Street | £ 96,000 | 0.03 KM |