Claret Close, Aigburth, Liverpool, L17
By Move Residential
£ 449,950
Reviews
3 out of 5 stars
Move Residential says ..
Enjoying a prime location on Claret Close in the sought-after suburb of Aigburth, L17, is this impressive four bedroom detached residence, proudly presented to the sales market by appointed agents Move Residential. Boasting an attractive modern frontage, this property boasts generous and beautifu...
Property Oracle says ..
This is a detached property in Aigburth, Liverpool, offering four bedrooms and two bathrooms. While the property benefits from a well-maintained garden and off-street parking, the interior is somewhat dated and would likely benefit from modernization. The location is convenient for families, with several schools and transportation links nearby. The asking price of £449,950 seems reasonable given the property’s size and location, but potential buyers should factor in the cost of renovations.
Therefore, we give this property 6 / 10. *Disclaimer: This is our option and does constitute a recommendation or financial advice. Do your own research. *
- Price
- 7
- Condition
- 6
- Location
- 7
- Land
- 7
- Bedrooms
- 4
- Bathrooms
- 2
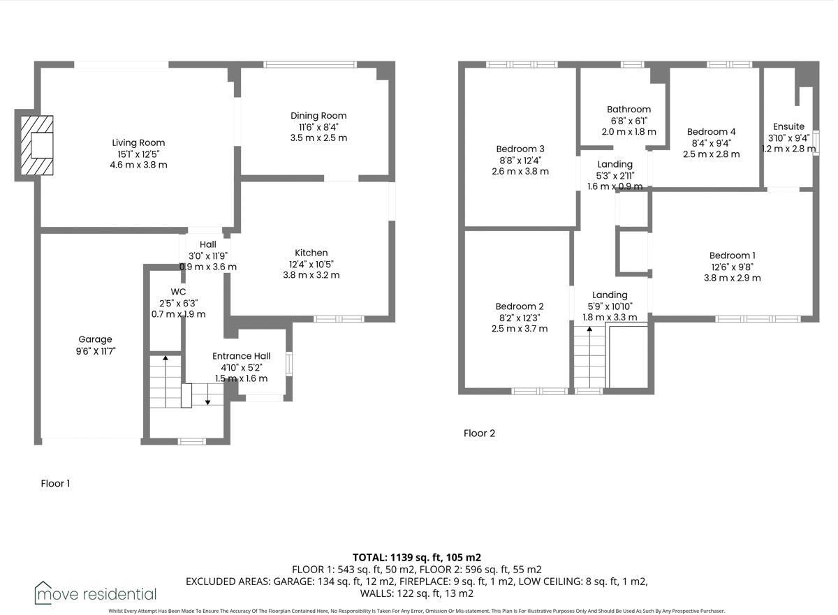
- Sqft (est)
- 1,139.00
The heatmap indicates the level of crime in the area. The color of the heatmap indicates the crime severity and recency.
Metrics Year-on-Year
- Average area value
- 234,977.00 £Increased by 10.88 %
- Est sale value
- 334,866.00 £Increased by 28.95 %
- Average area rental value
- 1,065.00 £/moDecreased by 1.11 %
- Est letting value
- 1,139.00 £/moUnchanged by 0.00 %
- Est rental Yield
- 5.44 %Decreased by 10.82 %
- Crime Rate
- 2.00 %Unchanged by 0.00 %
Agent Activity
Move Residential created the listing.
Nearby Schools
| Name | Type | Ofsted | Distance |
|---|---|---|---|
| St Charles' Catholic Primary School | Voluntary Aided School | Good | 0.53 KM |
| St Michael-In-The-Hamlet Community Primary School | Community School | Good | 0.64 KM |
| Auckland College | Other Independent School | Outstanding | 0.96 KM |
| King'S Leadership Academy, Liverpool | Academy Sponsor Led | Good | 1.47 KM |
| Aspire Centre, Kings Leadership Academy Liverpool | Free Schools Alternative Provision | 1.57 KM |
Images
Nearby Streets
| Name | Average Price | Average Sqft | Distance |
|---|---|---|---|
| Larkfield Grove | £ 350,000 | 0 | 0.00 KM |
| Amherst Road | £ 130,000 | 0 | 0.00 KM |
| St Michaels Road | £ 186,667 | 0 | 0.00 KM |
| Melly Road | £ 390,000 | 0 | 0.00 KM |
| Eastfield Drive | £ 375,000 | 0 | 0.00 KM |
Nearby Transport
| Name | NLC | TLC | Distance |
|---|---|---|---|
| St Michaels | 2248 | STM | 0.85 KM |
| Aigburth | 2255 | AIG | 2.26 KM |
| Edge Hill | 2169 | EDG | 3.50 KM |
| Brunswick | 3623 | BRW | 3.53 KM |
| Mossley Hill | 2171 | MSH | 3.55 KM |
Nearby Listings
| Address | Price | Type | Score | Distance |
|---|---|---|---|---|
| Claret Close, Aigburth, Liverpool, L17 | £ 449,950 | BUY | 6 / 10 | 0.00 KM |
| Savoylands Close, Aigburth, Liverpool, L17 | £ 699,950 | BUY | Unknown | 0.17 KM |
| Burgundy Close, Aigburth, Liverpool. | £ 425,000 | BUY | 7 / 10 | 0.17 KM |
| Westbury Close, Liverpool, L17 | £ 490,000 | BUY | 7 / 10 | 0.23 KM |
| Barchester Drive, Aigburth, Liverpool, L17 | £ 875,000 | BUY | 7 / 10 | 0.28 KM |
Nearby Properties
| Address | Price | Distance |
|---|---|---|
| 11 Claret Close | £ 390,000 | 0.01 KM |
| 7 Claret Close | £ 210,000 | 0.01 KM |
| 1 Claret Close | £ 437,000 | 0.01 KM |
| 40 Bempton Road | £ 235,000 | 0.13 KM |
| 4 Bempton Road | £ 229,950 | 0.13 KM |